
Chinar Textile Studio
ARCHITECTS
Juhi Mehta Architects
LEAD ARCHITECTS
Juhi Mehta
YEAR
2021
LOCATION
Jaipur, India
CATEGORY
Workshop
Text description provided by architect.
Studio Chinar is a garment and home furnishing manufacturing unit situated on an 800 sqm piece of land amidst a plotted industrial area on the outskirts of Jaipur, Rajasthan.
The client, an alumnus of the National Institute of Design, Ahmedabad, India desired a functional and climatically comfortable built environment integrating a workplace along with a studio and other ancillary facilities for a team of around 100 people including 80 craftsmen (tailors and weavers) who combine to produce hand -woven and hand-crafted contemporary textile products.
Hence, the project was imagined and conceptualized as a naturally lit comfortable working environment that would uplift the worker's ability to focus and be more creative. The building has been based on the idea of celebrating the artistic work of the designer by creating neutral spaces brought to life by providing internal courtyards and bringing in natural light at all levels.
As the project is located in the Pink City – Jaipur, the inspiration was mainly the old havelis of Jaipur walled city. The internal courtyards and the solid façade of the havelis have been reimagined to respond to the extreme climate of the region.
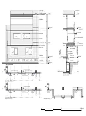
The construct is an exposed brick envelope supported by an RCC framed structure consisting of a basement and ground plus two floors. The brick used for construction is a locally sourced clay block (Class A).
The west and south side walls are cavity walls, which helped in creating a sustainable built environment highlighted by a backdrop of brick patterns and brick jalis.
The internal spaces have neutral hues which include exposed brick walls, concrete finished slabs, and Kota stone floors laid out in simple geometries highlighted by abundant sunlight pouring in through courtyards.
The building has mainly two entrances. One takes care of the arrival and dispatch of material, movement of staff and workers, and others for the buyers. All the working areas of the building are planned around the internal courtyards so that they get ample natural light.
The services are planned in the rear part of the building. The ground being the most valuable resource is occupied by the weavers, craftsmen, head designer, and her team.
The basement is used for the storage of raw materials and as a sampling studio. The first floor is occupied by all the tailors and production units. The second floor is created as a small display space for the products which opens out to terraces on two sides.
The overall layout of the building incorporates seamless transition of various spaces flowing into each other respecting the functional relationship between the various activities of the textile manufacturing process from weaving to dispatch.
The entrance from the north side opens into a central court having a skylight creating a feeling of a large voluminous space. Fenestrations have been provided on the south and north sides so as to bring natural light into the internal spaces.
The rectilinear court on the north side brings in diffused indirect sunlight. This makes it suitable for workspace and the head designer's room also opens onto this court. The basement workspaces borrow natural light from large ventilators on the south side.
Considering the cardinal directions of the site, the front façade on the West has been predominantly kept solid with bricks laid out in a pattern inspired by the client's designs.
The brick pattern further helps break the monotony by creating a rhythm achieved by the play of natural light and shadow at different angles.
Also, this solid wall provides thermal comfort as the brick projecting out shades the façade from the harsh West sun. This wall has been built as a cavity wall to further serve its purpose as an insulator.
Ample natural light inside the building results in increasing the energy efficiency of the building. Rainwater harvesting has been done by collecting the rainwater in a large underground tank and this stored water is reused in the building.
Solar panels have been installed to generate energy using the natural resources available in abundance in Rajasthan.



















