Bonlad Residence
MANUFACTURERS
Hisense, Nemachin Brick Company, Tabriz Tile
CONSTRUCTION & PROJECT MANAGER
Mansour Bahadori
HVAC CONSULTANT
Hisense Company
PROJECT ARCHITECT & SUPERVISION
Reza Mansouri
YEAR
2023
LOCATION
Ilam, Iran
CATEGORY
Houses
Text description provided by architect.
The main challenges of the Bonlad project were to adopt a strategy to address the issue of "context" on a large scale and overcome the limitations imposed by the project's western neighborhood (prohibition of the direct view towards a government building).
From a physical point of view, we encountered a lot of low-quality constructed buildings in the city of "Ilam" with minimal semi-open spaces.
Our critical approach to the typical low-quality apartments in the city, with nearly "100 percent" lot coverage without any livable space, led us to make this project as a platform for the realization of the idea of extensive and active semi-open spaces using the concept of "Spatial Border".
Therefore, the design process began with this question: How can we take the advantages of the "corrosive grid" to address a "Spatial Border" in order to resolve the contextual issues?
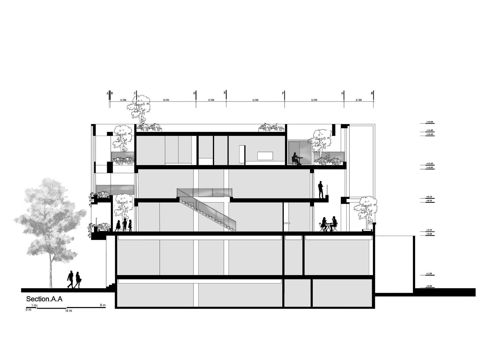
The spatial organization of the project follows a "dual" and "contradictory" (discrete - continuous) form, aiming to address contextual issues, client needs and reach the economic efficiency. In the basement and ground floor, dedicated to the public or profitable uses (commercial spaces and offices), there is a dense arrangement of functions in various directions, with independent accesses and spatial separation.
However, on the upper floors, planned for two brothers to live independently, this internal separation turns into a horizontal-vertical continuity. Even separate residential levels are connected through multiple voids, essentially revealing the project's family nature.
On the top level (roof), this connectivity opens up to the sky, simultaneously providing both units with this natural potential while emphasizing the project's pixel-like role in a larger structure called the city, which is actually a statement about our urban future.
By creating sudden changes in the scale of terraces and using unusual dimensions (depths up to nearly 7 meters), as well as applying repeated vertical porosities in the peripheral grid, we were able to make the green, "non-center" yards around the residential core.
If we accept that a Persian House has a "spatial" concept, these semi-open spaces, derived from a "border" tension between inside and outside, seek the same "spatiality.
" These spaces are seeking to change the behavior of residents by creating vitality in apartment life, moving towards the concept of "Hedonistic Sustainability".

Also, the use of vertical louvres, despite the use of large windows, adds a sense of "visual privacy" into the project, which is a social need in the city of Ilam. In this project, in addition to addressing the formal, spatial and contextual problems, we also focused on tectonic issues.
Achieving the elegant detailing of the brick facade and vertical louvres was provided through accurate measuring tools to minimize errors in drilling as well as creating grooved pattern on bricks.
We did these things in order to create the "duality" and perceptual "disturbance" in the material identity of the brick.
This encouraged the residents or viewers to touch the walls of the building and stimulate the sense of touch alongside the visual perception of the project.


































