
the Breeze Hall
ARCHITECTS
SHISUO design office
CLIENTS
Shanghai Changyuan Culture Communication Co., Ltd.
LEAD ARCHITECTS
Sanif, Chang Shan
MANUFACTURERS
CEMIMAX赛迈发科技
LANDSCAPE CONSULTANT
Jin Yinyin - Jian Ding Landscape Design
STRUCTURE CONSULTANT
Yang Xiaotian, Wu Kunying - iStructure
LIGHTING CONSULTANT
Hung Shenglin, Liu Jingyi - Arlit Design
DESIGN TEAM
Lin Zihan,Zhang Han
LOCATION
Hongkou District, China
CATEGORY
Chapel, Pavilion, Town & City Hall
Text description provided by architect.
The Breeze Hall is located in Lu Xun Park, the most important memorial park in Shanghai.
It originated from a patch of mixed woods on the south side of the Lu Xun Memorial Museum, which was fenced off and designated as a dead corner left by urban development.
In 2023, SHISUO Design Office was commissioned to reorganize this site—some trees were transplanted to the south, creating a walkway together with the existing trees in front of the Lu Xun Memorial Museum, and also providing a soft boundary for the new building.
Other trees were moved to the flanks of the site, forming a large enclosed open space. Large trees and bamboo within the site were retained, and the newly placed pathways harmoniously interacted with them——All these adjustments endow the site with greater publicness.
The design needs to address two issues—how to achieve high-quality construction within a limited budget and construction timeline, and how to create a landmark spiritual building that harmonizes with the chaotic surroundings.
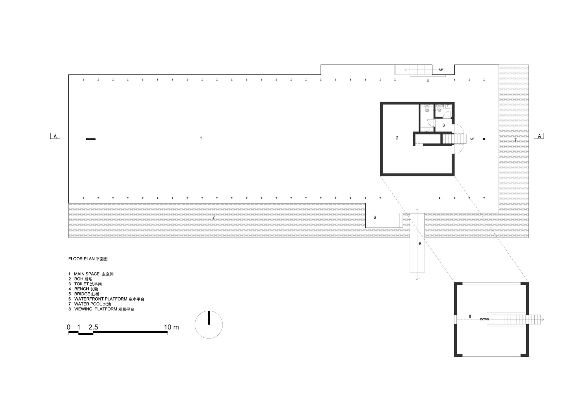
The main building consists of a wing-like steel structure and a landscape-like base. The slender steel structure is arranged to be lightweight and transparent while achieving high structural efficiency.
Steel columns of only 100*150mm support an open space measuring 42m in length, 15m in span, and 12m in height, catering to the needs of weddings, events, exhibitions, and gatherings. The roof is made of prefabricated perforated panels, and the modular assembly ensures quick construction on-site.
This porous material provides varying visual experiences at different scales, appearing simple at first glance but revealing intricate details upon closer inspection.
The double-layer perforated panels also act as a filter between the interior and the exterior—calm on cloudy days and warm on sunny days. The roof's shape transforms at the entrance, inviting people to come in. The interior space is lofty and expansive, resembling a blank canvas that allows users to add color later.
The low eaves filter out the noise from the commercial street across the way, only revealing the reflections in the water pool and the rolling grassland. Here, air currents, light, and birdsong pass through, while the chaotic world outside is kept at bay.
The landscape-like base interacts diversely with the site, serving as steps leading upward, viewing benches, a rainbow bridge connecting the building and the grass, or transforming into a waterside platform. Inside, the base rises upward and solidifies into an abstract house, reminiscent of a silent monument or tower.
Behind it, a canyon-like staircase guides people to a higher platform, offering the framed views within the changing light and shadows; the narrow windows on both sides allow light to enter, enabling visitors to look back at the entrance. Every morning, the sun rises behind it, casting a halo that imbues it with a mysterious and sacred quality.
We intentionally depict its sacred aspect because sacred spaces are meant to celebrate the poetic moments of ordinary daily life. In the distinction and juxtaposition of the secular and the sacred, people can discover that life is not homogeneous.
Crying and laughing, losing and gaining, the secular and the sacred... all are essential parts that make up a human being. All of this exists within each individual, and the divine always appears alongside the everyday.
Upon entering from the city streets and stepping onto the ancient stone steps, you pass through a bamboo grove, the gravel crunching underfoot.
Gripping the sliding door with your hand may leave a few rust marks. As it moves, you enter the pathway, where a gentle slope gradually rises.
Throughout this journey, there are no traces of the hall to be seen, only the dappled shadows of the trees and the long pathway.
Sunlight pours in through the opening at the end of the corridor, guiding you into a gravel courtyard, where you finally gaze upon the facade hidden behind the branches.
As you step closer, entering the shade of the eaves, your footsteps ascend the steps, and the marks of the outside world are further stripped away... The winding path, with its twists and turns, detaching the main space from the exterior, and after a continuous cycle of "concealment and revelation," the desire to arrive becomes prolonged.
The Breeze Hall is regarded as a sanctuary that carries the collective memory of the city. It not only has a stunning, breath-taking, and oversized ritual space but is also filled with details and materials that are human-scaled.
The low eaves intentionally channel rainwater into a pool for collection, relying as little as possible on artificial supply; the double-layer perforated panels utilize the profile of the roof structure to achieve wind extraction, while the gaps left at the ridge interact with the evaporation of the pool, creating a local microclimate with gentle breezes that flow through even in the sweltering summer.
Inside the second-floor platform, the beige plaster has a soft touch, imparting a skin-like texture to the space. The handrails of the ribbon windows transform into arcs, making it easier for palms to rest, allowing for longer stay.
Throughout the space, the tectonic details are clearly showcased to make the architecture itself detailed in human scale instead of using excessive ornaments.
The attention to detail goes beyond this—during construction, we discovered that small animals would come here to drink water, so we persuaded the owners not to add algaecides to the pool.
After it was completed, this place became a water source for many small animals in the park, nurturing birds, lizards, cats and dogs. On rainy nights, the hall also became their refuge. From the city to people, from nature to animals, this building opens its arms to embrace and nourish all forms of life.
Thus, amidst the trees, historical memorials, and commercial buildings, a modern hall has been completed that is open to the city, seamlessly integrated with its surroundings, and presents a light, transparent, and ceremonial atmosphere.
In the short span of just six months after its opening, the Breeze Hall has become a catalyst for public activities in the city, hosting a series of socially impactful cultural events, such as the Cherry Blossom Market in Luxun Park (feat.YINYAN SPACE)、the Happy Home Exhibition (feat.RED)、International Yoga Day activities (feat.PURE YOGA) 、the Healing Poetry Gallery (feat.SOUL APP & Shanghai Mental Health Center) 、Autumn/Winter Fashion Show(LOEWE)and so on.
Not only has it generated significant economic benefits, but it has also enhanced the quality of urban space, garnering popularity among citizens.
Through these public events, the Breeze Hall has achieved over 30 million views on social media, swiftly becoming a new cultural landmark in Shanghai.
We look forward to the day when this building will create even more opportunities for happiness for people, becoming an indispensable piece of the collective memory amid the flow of time.
Buildings will eventually disappear, but their meaning points to the eternal. Every day at sunset, when the sun filters through the branches of the trees to illuminate the Breeze Hall, enchanting light and shadow dance across its solid and enduring triangular facade.


































