Vestiaires and Club House Sport Facilities
ARCHITECTS
Anthony Laffargue
LEAD ARCHITECT
Anthony Laffargue
MEP ENGINEERS
Cetralp
STRUCTURE ENGINEERS
Annecy Structures
YEAR
2024
LOCATION
Dingy-saint-clair, France
CATEGORY
Sports Architecture
Text description provided by architect.
ARCHITECTURAL EXPRESSION
This "Port" building is located at the entrance of the center of Dingy-Saint-Clair, between Parmelan and the Dents de Lanfon.
It is situated on a 9-meter strip of land, constrained by the cemetery wall on one side and a property on the other.
The architecture takes advantage of this situation and extends over approximately sixty meters, with the programs for locker rooms, Club House, and Grenette succeeding one another. The regular structure is composed of 25 trusses with laminated columns and maximized cross-sections for the simple rhythm of the building.
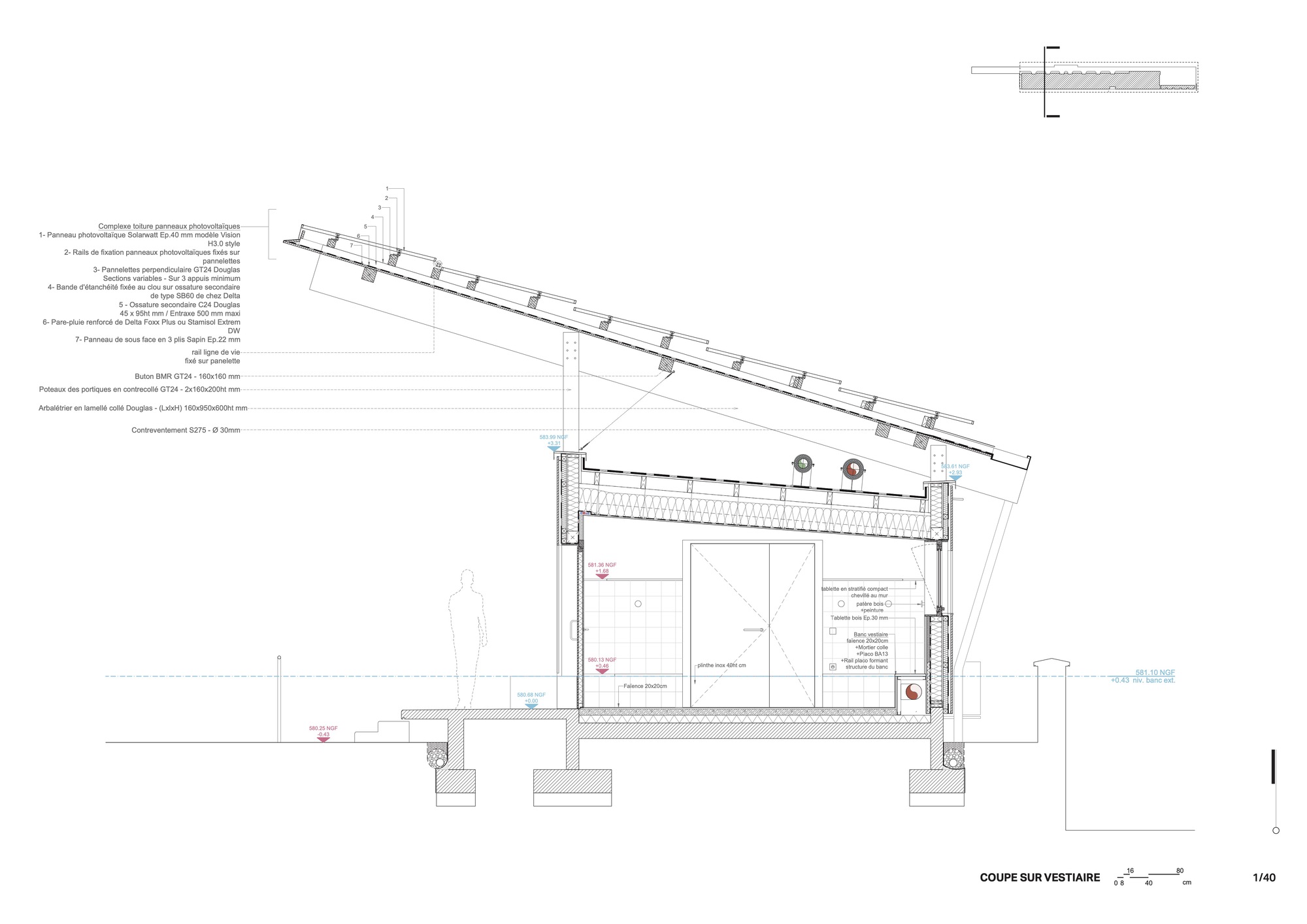
Entirely designed in Bois des Alpes and spruce to highlight the most virtuous supply chains, the framework emerges from the insulated envelope to support a secondary roof housing a photovoltaic panel installation.
These panels are implemented as architectural elements rather than mere technical components; their black color gives the impression of being simply placed on wooden panels that extend at each end, suggesting that the building and its structure can be extensible.
The height of the façade is minimized to highlight the framework, so all the building's technical aspects are concealed between the two roofs. The entire structure rests on a concrete table and a long prefabricated bench that accommodates circulation and spectators. The arrangement of materials continues the design language of the buildings that make up the town center.
During the construction, the old locker rooms are rehabilitated into a youth space, and a path is created that connects the Club House with the town center, linking the various spaces related to sports and youth in the municipality. The building features a simple and strong shape while highlighting the grand landscape of the site.
PHOTOVOLTAIC PANELS
The photovoltaic power plant project addresses a dual challenge: performance and landscape integration. It offers a possible response to the question of context respect in the framework of on-site electricity production through a unique implementation.
We sought here a stratified effect, rather than a grid, which is often imposed by this type of infrastructure due to their standardized production and installation, often disconnected from the architectural project. This effect is achieved by a slight variation in the slope of the panels, creating gaps between each horizontal row.
To avoid any overhang at the edge, we chose to save on a steel tray by placing the rail directly on wooden panels. This solution, outside the DTU, is only possible due to the quality of the secondary roof covering and the presence of well-established waterproofing on the insulated volume.
To ensure the durability of the wooden framework, metal caps are strategically placed to protect the wood from rainwater. The UV-resistant rain screen has been doubled to ensure its long-term viability.
At the gable, the choice to highlight the panels evokes traditional frameworks. Visually, the panel appears to be "just placed," balanced on the roof. Forming layers, the panels interact with the distant landscape of the mineral cliffs of the surrounding massifs.
TECHNICAL LOTS
The building, measuring over 60 meters, adopts a horizontal stance to serve as a base for a grand panorama.
The challenge regarding the height of the insulated volume was significant, both to respect this stance and to showcase the wooden framework, which extends from the volume and supports the secondary roof.
To maintain this choice while offering a ceiling height consistent with use, the various ventilation networks have been placed between the two roofs, at the lowest point of the slope, so they are never visible. Each network is individually insulated.
The technical challenge mainly lies in creating multiple air-tightness connections before installing the main roof. These networks circulate inside the building, within the benches of the locker rooms, to minimize their impact on the volume and habitable height.
FRAMEWORK AND CLADDING
The framework consists of 25 trusses that rhythmically advance the building and its covered extension.
The rafters are slightly oversized to accentuate this effect of succession and alignment. Three different systems succeed one another to accommodate the three main programs. The cladding slides in front of this structure to encompass the locker rooms.
A large bay, appearing to rest on the base, is designed to open the Club House to the vast landscape. At this point, the trusses rest on a metal profile to avoid interfering with the view.
Finally, the Grenette allows for a view of the entire framework; only a large storage unit, designed as a giant sideboard, slips between the columns. The joints have all been concealed, except for a brace on the east gable, left there as a witness.
The choice was made for a spruce structure, for more sustainable and respectful exploitation reasons, offering a more neutral wood tone and respecting the financial envelope.
Exposed parts have been autoclaved using a colorless process. Finally, the entire secondary roof is inverted, allowing for a three-ply panel on the underside and a structure for the aforementioned photovoltaic panels. The cladding consists of large 36 cm three-ply panels that are nailed to T-joists.
These maintain them and prevent warping over time. This method also avoids the presence of grooves and rebates on the façade, rendering the insulated volume very smooth from a distance, almost abstract. Up close, this smooth surface allows for a better perception of the wood's grain, which shines slightly.
INTEGRATION IN LANDSCAPE
The project is located upstream of the town center. It is designed as a "gateway" building, upon which the mountains and the Dents de Lanfon sit, and from which the Parmelan massif reveals itself.
It is a building that clearly defines an urban fringe, between agricultural zones and the town center. It fits within the existing surface programs: a stadium, a cemetery, and a parking area.
Thus, it offers a new reference point for those traversing the village, while providing a backdrop to the activity area that features games, a picnic space, a skatepark, and sports fields.
Its architecture echoes its integration, with a framework that opens up to these activities and the town center. It reuses the joints and elements of a vernacular architecture that characterizes both sides of the municipality's central axis.


































