ARCHITECTS
Oyo Architects
DESIGN TEAM / COLLABORATORS
Bea Sierra, Koen Maertens, Ana Correa , Luca Morosetti
MANUFACTURERS
Reynaers Aluminium, Krjst Studio, Lano, Lieven Goetinck, Stukken
FOUNDING PARTNER, PROJECT MANAGER AND INTERIOR ARCHITECT
Veroniek Vanhaecke
LANDSCAPE DESIGNERS
Buro Bossaert
CONSTRUCTION MANAGER
Immohuys
FUNDING PARTNER AND PROJECT MANAGER
Lies Willaert
PROJECT MANAGERS / COORDINATOR
Xander Denduyver
STRUCTURAL ENGINEERS
Lime
PARTNER AND DESIGN DIRECTOR
Ferran Massip, Nigel Jooren
FOUNDING PARTNER AND MANAGING DIRECTOR
Eddy Soete
BUSINESS DEVELOPMENT AND OFFICE ASSISTANT
Roxanne D`haveloose
PROGRAM / USE / BUILDING FUNCTION
Private Residence
PHOTOGRAPHS
Tim Van De Velde, Karen Van Der Biest, Oyo Architects
AREA
369 M²
YEAR
2019
LOCATION
Ghent, Belgium
GATEGORY
Houses
OYO Architects, an architectural studio based in Ghent and Barcelona, is led by Ferran Massip, Nigel Jooren, Eddy Soete, Veroniek Vanhaecke and Lies Willaert. They present DeDe House, one of their most unique housing projects.
Located in Drongen, just outside Ghent, this unique 369 m2 house preserves the soul of the site by fusing it with contemporary design. DeDe House respects the inherent beauty of its surroundings and is fully customizable for the current and future needs of its residents, being the perfect example of adaptive design.
DeDe house is located on a site that was formerly occupied by a derelict barn from the early 20th century. OYO Architects takes a sustainable approach by creatively salvaging materials resulting from the demolition of the barn.
Recycling the original bricks from the construction, combined with a new cast for the upper level of the house, gives the house an authentic and unique appearance that recovers the "spirit" of the place.
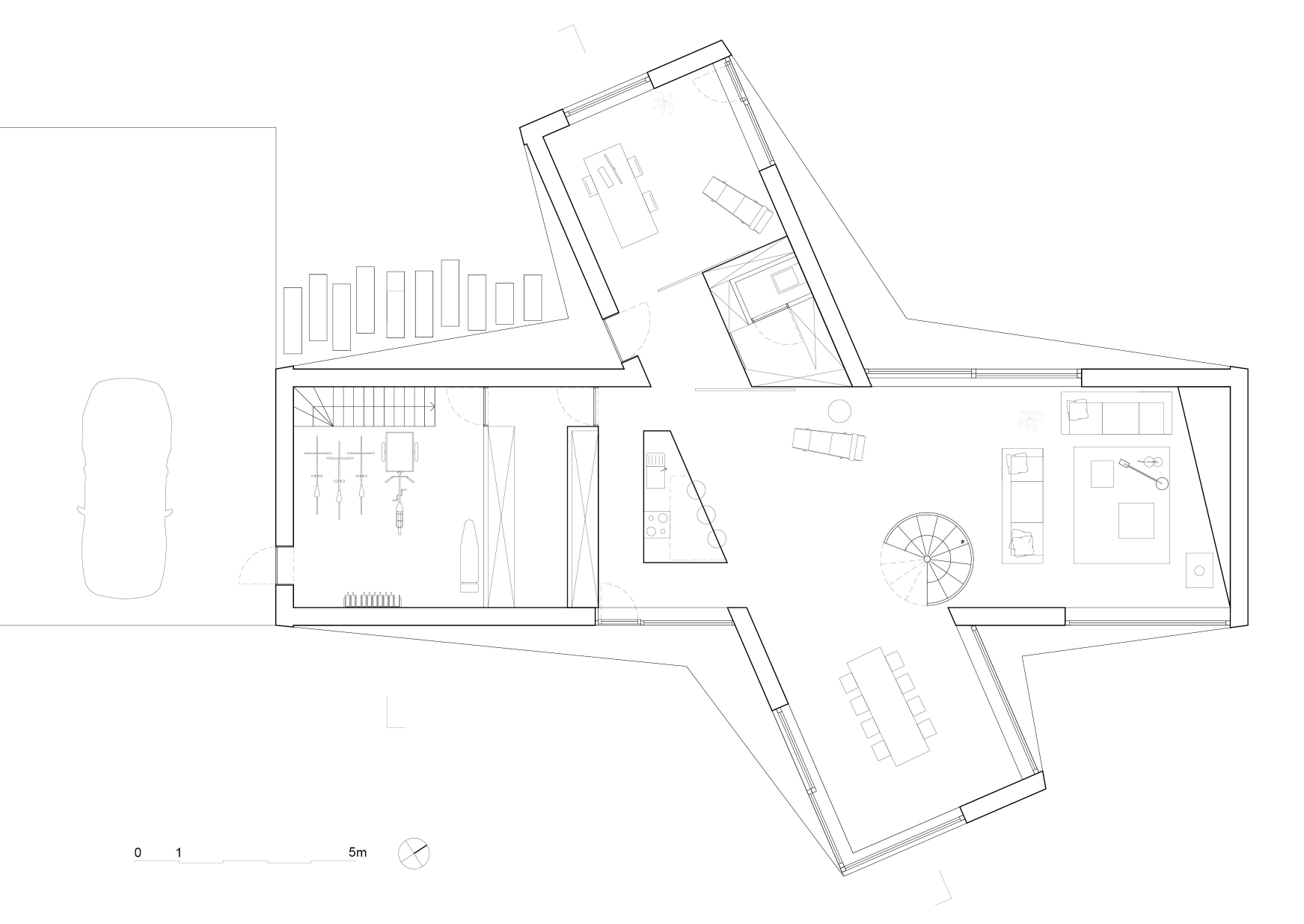
The two-story building is defined by an "X" shaped ground floor topped up with an extra floor that maintains the original rectangular layout of the old barn.
"We overlaid the original rectangular footprint of the barn with an additional cross section. This shape offers private spaces in and around the house while framing views on the outdoors. It seems like a simple design decision, but one that has created a unique living environment" says OYO.
The OYO team has created a bespoke home for a family of two parents and their three playful children, who wanted a house with a direct relationship to the natural environment.
With a focus on adaptive design, which seeks to create spaces that are inclusive, accessible and responsive to the diverse ways in which residents interact and use spaces, every corner of the house has been designed with this concept in mind.
On the ground floor, the open living area offers panoramic views of the garden thanks to the large windows and sliding doors, creating the feeling of being immersed in nature.

On the upper floor, a playful environment has been created that stimulates creativity and exploration. It is conceived as a vast adaptable playground and allows the family's three children to transform and personalize the space according to their needs and desires; the parents' bedroom, separated by the family room, offers greater privacy and privileged views of the natural surroundings. The customization of each space to meet the needs of the family represents adaptive design at its finest.
DeDe House is also distinguished by its attention to detail and use of honest materials such as wood and exposed concrete.
The elimination of superfluous cladding and flexibility in the layout of the spaces reflect OYO's commitment to the integrity of the materials and the natural atmosphere of the house.
According to Xander of OYO, "The materials create an interesting contrast between industrial and artisanal, between austere and rustic."
With a playful and sustainable vision, OYO Architects has created a home where exploration and play are integrated into everyday life. From the recycled materials to its adaptable and characterful design, DeDe House represents OYO's commitment to designing generous homes that respect the inherent beauty of their surroundings.


































