The Home in the Badain Jaran Desert
The Home in the Badain Jaran Desert
SCHOOL OF ARCHITECTURE AND URBAN PLANNING, NANJING UNIVERSITY
DESIGN TEAM
Yushu Liang, Jingwen Gan, Yifan Dong, Shibo Guo, Shilong Wang, Xiao Wang, Yuhao Luo
STRUCTURAL CONSULTANTS
Zhun Zhang, Yue Xu
SUSTAINABILITY CONSULTANTS
Weihui Liang, Yibing Hu
CONSTRUCTION DRAWING
Xuejian Wang, Zhonglou Zuo, Fuchun He, Yiling Pan
LIGHTING DESIGN
Zi’ang Ma, Min Wang, Bo Du
CONTRACTOR
Inner Mongolia Xinzhiyu Trading Co
ADVISOR ACKNOWLEDGEMENT
Wowo Ding, Chen Zhao, Pengju Zhang, Ling Zhou, Xiao Fu, Andong Lu, Huaqing Huang, Mingrui Xie, Xiaodong Miao
SPONSORS
Velux (China) Co., Ltd, Shanghai Collodin Material Scientific & Technology Development Co., Ltd
ENGINEERING
Archi-neering-design Office
PHOTOGRAPHS
Xiaobin Lv
AREA
157 M²
YEAR
2023
LOCATION
Alxa League, China
CATEGORY
Houses
Text description provided by architect.
The Dilemma of 'Home' - Many traditional herding families, mainly Mongolian, live on ranches around the inter-dune lakes. In July 2024, the 'Towers of Sand and Lakes' landscape of the Badain Jaran Desert was inscribed on UNESCO's World Heritage List.
With the ensuing ecological preservation and construction restrictions, how to build homes that meet contemporary needs has become a pressing issue for the local herders.
Delved into the vernacular, the designers intend to retain the indigenous building techniques, providing an intriguing possibility for future sustainable inhabitation in such a World Heritage site.
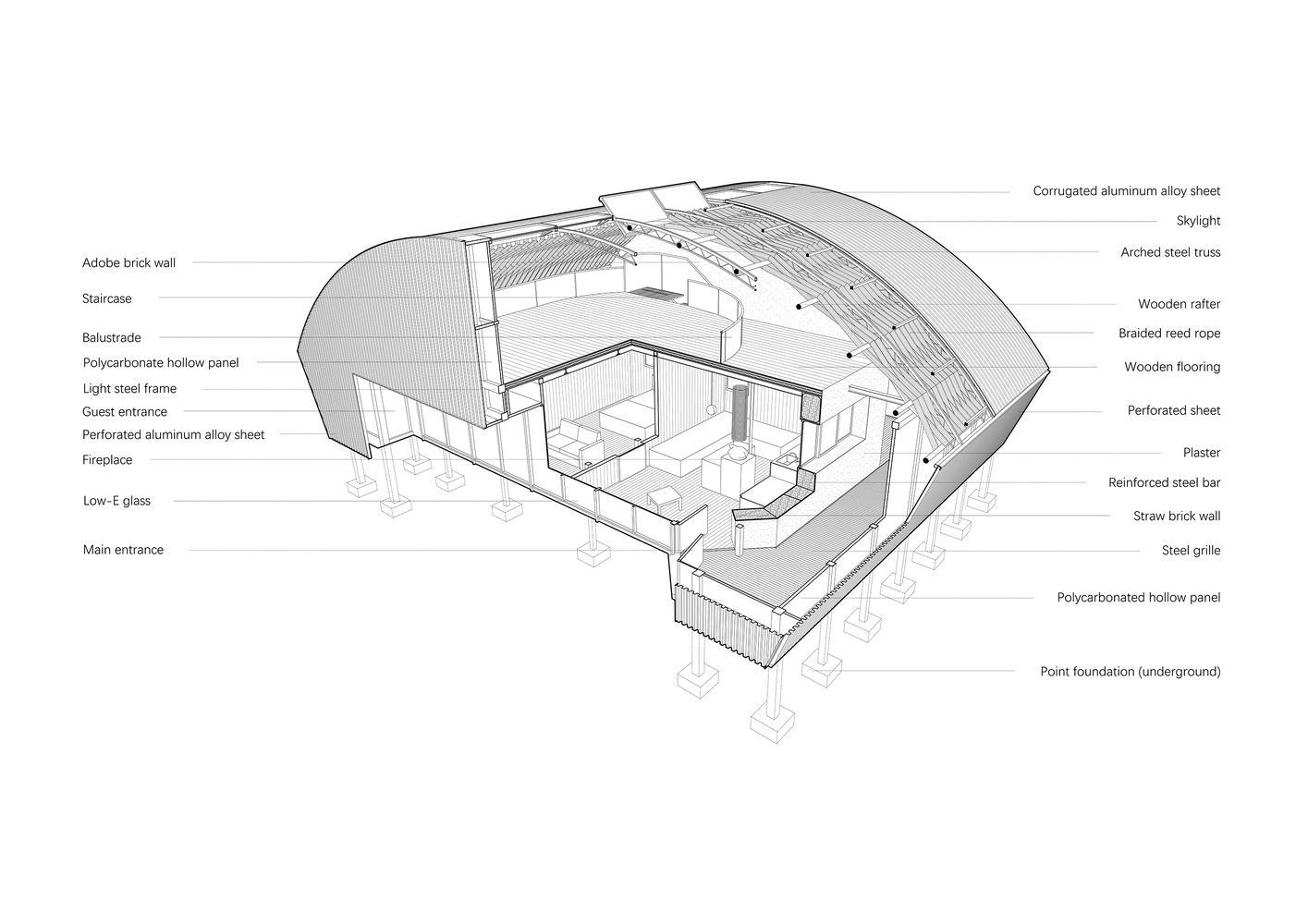
Straw Brick, Metal Shell - The project is a house for a herding family with the potential for tourism hospitality. The core area is constructed with straw bricks to meet the living needs of the family and guests.
A breathable metal shell covers this core, providing space for festive gatherings and storage. While the metal shell represents mature industrial solutions, the straw bricks are directly derived from vernacular architecture in the region.
The fusion of this lightness and heaviness forms our vision of an ideal desert shelter of the future. Herding and Living - The host and guests access their rooms through two corridors covered by the metal shell.
Meanwhile, the corridor is also used for cooking in the summer and slaughtering and storing meat in the winter, fulfilling the needs of a herder's life. The arched roof creates a yurt-like space on the mezzanine floor, evoking a sense of cultural tradition during gathering moments.
Adapting to the Season - The excellent thermal performance of the straw-brick wall and the climatic buffer zone enclosed by the metal shell ensure both a comfortable indoor climate and low energy consumption.
In winter, heat is concentrated in the straw-brick section, while the climatic buffer zone minimizes heat loss to the outside. In summer, the breathable shell provides effective air circulation, keeping the interior cool and comfortable.
Low-tech Construction - The building makes experimental use of locally sourced natural materials such as straw bricks and lake clay, complemented by lightweight prefabricated materials such as light steel frames, perforated aluminum alloy sheeting and polycarbonate panels. This approach significantly reduces the high transportation costs in the desert.
The construction process is relatively simple and was completed through collaboration between designers, students and local craftsmen, making it a model with potential for wider adoption.
Amidst the darkness of the silent night in the Badain Jaran Desert, the house glows like a silver bowl in the Mongolian Festival.
Upon entering, all senses are immersed in the familiar textures of the land. Our herder friend, Hass Bayara, remarked with nostalgia, "This is exactly the house we lived in when we were kids."






































