
Deutsche Bank Headquarters
YEAR
2024
LOCATION
United Kingdom
CATEGORY
Headquarters, Office Buildings
Text description provided by architect.
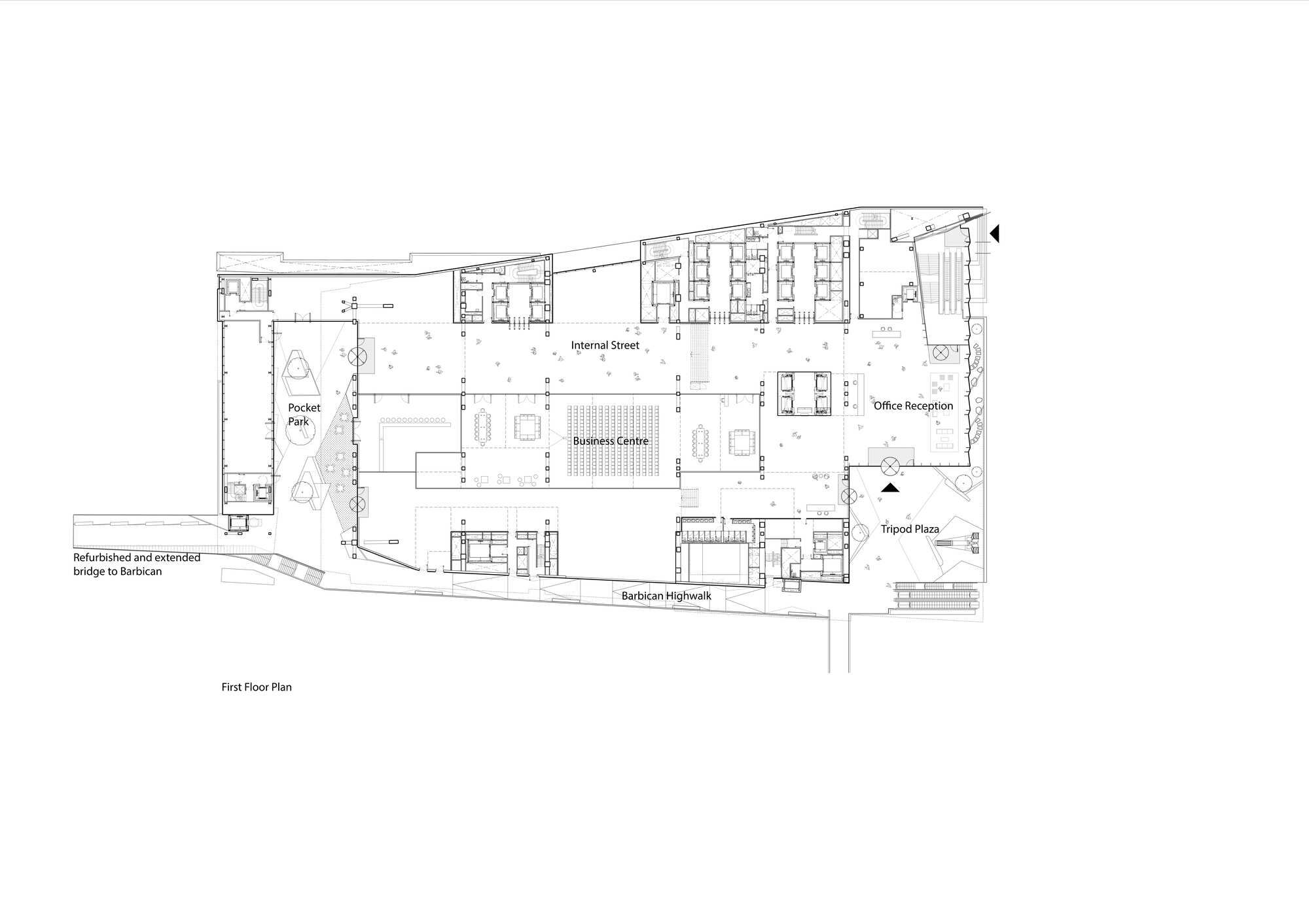
Located above Moorgate station's new ticket hall (also designed by WilkinsonEyre), the scheme brings pedestrianized streets, squares, walkways and an extended bridge to the Barbican.
It is a key development for regeneration in the undervalued Moorgate area, the recent arrival of the Elizebeth Line triggering the re-evaluation of the area.
The scheme incorporates four football field-sized trading floors, which give way to a stepping form of light-filled workplace and amenity floors and west-facing terraces.
A separate five-storey wellness building faces the primary building across this square, housing fitness and health studios, showers and bikes.
An upper 'crown' hiding in the 'shadow' of a protected St Paul's view, houses the executive, plus client meeting and dining rooms.
The public realm has been carefully considered to create a vibrant variety of spaces for both building users and the public.
This gives way to a new route for the Barbican Highwalk, allowing a direct sightline from the Barbican to the newly pedestrianized Moorfields via an extended bridge and new escalators.
Opening off this are two new quiet city squares designed by Andy Sturgeon, with planting, seating and lighting. External staircases, walkways and building facades are also enhanced with planting, adding to the secluded atmosphere.
In the project's journey, the team had to resolve a number of complexities in developing the operational railway. Crossrail commandeered a large part of the site, paving the way for the site's wholesale redevelopment.
This 1.3Ha site is entirely occupied by subsurface rail infrastructure including the Circle line which could not be closed for a single day. The design solution was to span the station in a single 60m jump, leaving the roof of the station untouched.
Crossrail had previously engaged WilkinsonEyre to evaluate solutions for integrating a giant structure into the Moorgate station design that could support future oversite development as it would be impossible to access the new station substructure later.
This 'super-pile' later proved critical to the emerging design creating a giant external tripod, supporting an expressive diamond pattern truss which has become the motif for the building.
A total of 15 piles were bored to support the massive trusses across the station. Due to the limited space available, these are the highest-capacity piles ever used in London.
To minimize steel use, the arched trusses are as tall as possible – up to 10 stories in height. These fill the available space, and the floorplates literally hang within the trusses – from the station roof upward, this massive building is an office within a bridge.
Due to differing constraints of the spans, the location of piles and the varying built volume, these trusses are different on every grid line.
To create an initial span across the station, a two-story 'launching truss' was erected, this created a stable platform for columns and floor beams to follow the main 10-storey arches up the building.
Only once these arches were closed and the structure rigid, could the concrete floors be poured and the cladding and glazing start to be installed.





























