MANUFACTURERS
Hansgrohe, Ardex, Asahi Mas, Ateson, Dp Haus, Daikin, Dekton, Eco Smart Pool, Envara, Ironwood, Kohler, Lixil , Magran, Matsuo, Propan, Skk, Titanium
LIGHTING CONSULTANTS
Erreluce
INTERIOR DESIGNERS
Helen Agustine Studio
CONTRACTORS
Sularno, Rootslab
LANDSCAPE CONSULTANTS
Agusnia
SUSTAINABLE ENGINEERING
Kayu Lapis Indonesia, Muka Veneer
PHOTOGRAPHS
Arte Haus
AREA
292 M²
YEAR
2024
LOCATION
Kecamatan Serpong Utara, Indonesia
CATEGORY
Houses
Text description provided by architect.
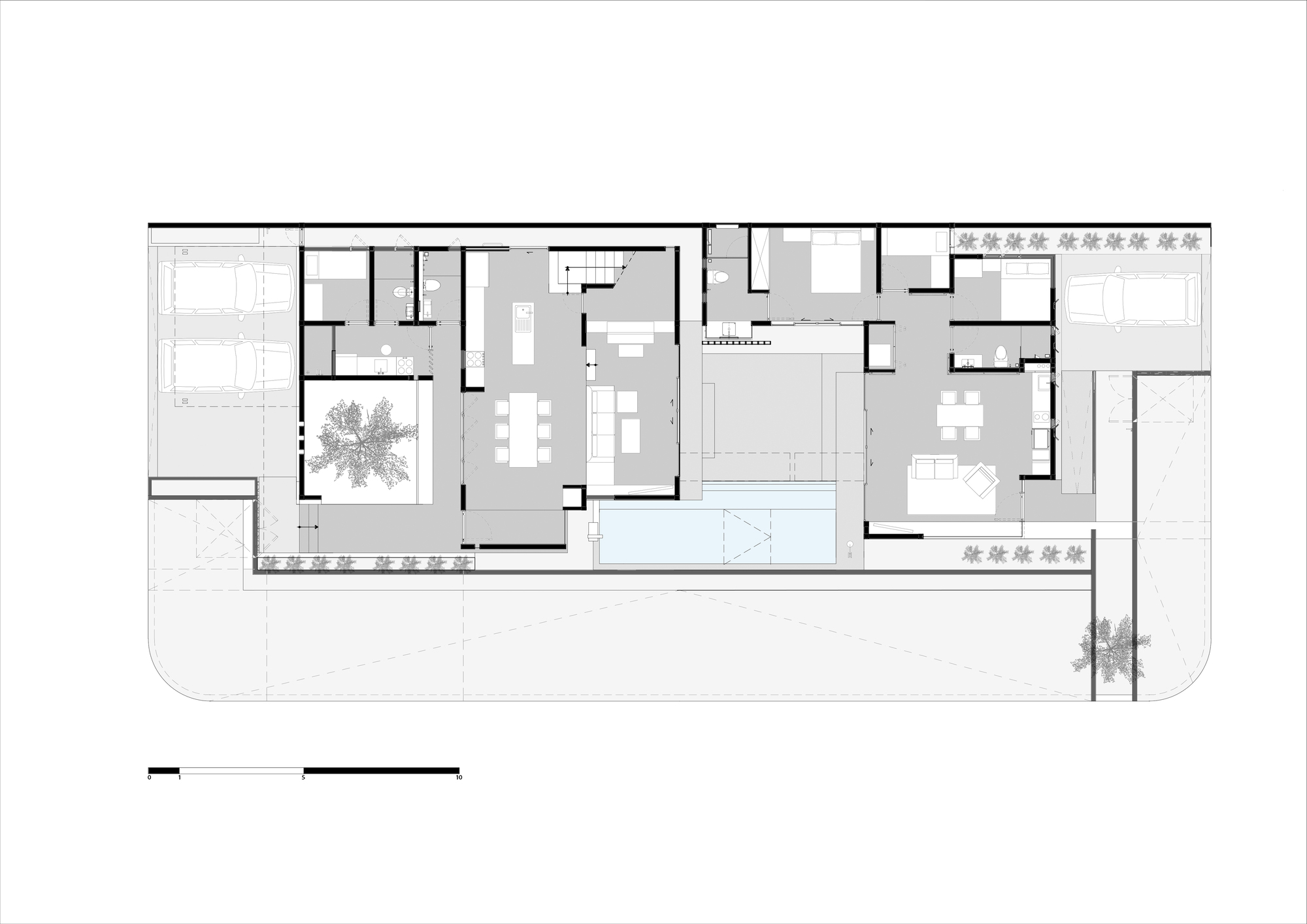
As both architect and homeowner, Helen Agustine designed two residential houses on adjacent corner lots in a tropical climate residential area in South Tangerang, Indonesia.
The two homes are connected by an inner courtyard, with the first house accommodating her family of five, including three young children, and the second house serving as a retreat for her grandmother, who visits occasionally, much like a holiday home.
The design focuses on intimacy and spatial experience, with rooms proportioned simply and modestly to foster closer relationships between the occupants and minimize maintenance work.
The first house, a two-story structure, includes three bedrooms, three bathrooms, a home office, a service area, and an open-plan communal space combining the living room, dining area, and kitchen.
The entry experience of this home follows a concept of compression and expansion, featuring a subtle entrance that avoids direct exposure to the street.
Visitors are first greeted by a small foyer with a low ceiling and a narrow vista of the swimming pool, followed by a spacious and bright living and dining area that opens to two small gardens on opposite sides.
Given the family's introverted nature, the house is intentionally not designed for large gatherings but is suitable for hosting a few guests.
The difference in floor levels between the dining and living areas creates a subtle separation, offering intimacy for small groups.
The surrounding garden serves as a green buffer, sloping upward towards the house to provide additional privacy from neighboring homes.
The grandmother's house, a single-story elderly-friendly home, is designed with disabled accessibility in mind, featuring an ironwood ramp at the entrance.
This house consists of an open living and dining area with a higher ceiling, two small bedrooms, two bathrooms, and a caregiver's room.
The inner courtyard is an open space connecting the two living rooms and the grandmother's bedroom, providing a place to enjoy the luxury of tropical weather, from the warmth of morning sunlight to the soothing sound of rainfall. Sustainability is at the heart of the design, as the architecture aims to connect its occupants with nature.
Generous windows on all four sides maximize natural cross-ventilation, while materials, like exposed ironwood and concrete with wood grain cast, are used in their raw state, embracing the beauty of natural aging for the building facade.
Handcrafted elements, such as three-dimensional rattan weaving, are used for the entrance partition and bedroom ceiling, showcasing the skill and artistry of working with natural materials.
A mini chemical-free swimming pool, safe for babies, is finished with locally sourced natural green Sukabumi stone, enhancing the space with the soothing sound of water flowing into both living rooms.
Sustainable engineered wood covers the interior walls, adding warmth to the rooms, while exposed concrete flooring creates a complementary contrast, balancing modernity with nature. Curtains, rugs, and bedding are made from natural fibers like cotton and linen, minimally processed to enhance comfort and breathability.
Being both the homeowner and architect presents the challenge of continuous experimentation with design and materials, leading to multiple revisions throughout the process.
While this fosters improved ideas and outcomes, it inevitably extends the project's timeline. The design fosters a genuine and timeless environment by focusing on simple forms and allowing the materials to take center stage to celebrate the intrinsic beauty, texture, and character of each material.























