
Paysandú Residences
ARCHITECTS
Bakro-mayorano
LEAD ARCHITECTS
Lucas Mayorano; Ezequiel Bakrokar
YEAR
2024
LOCATION
Ituzaingó, Argentina
CATEGORY
Houses
Text description provided by architect.
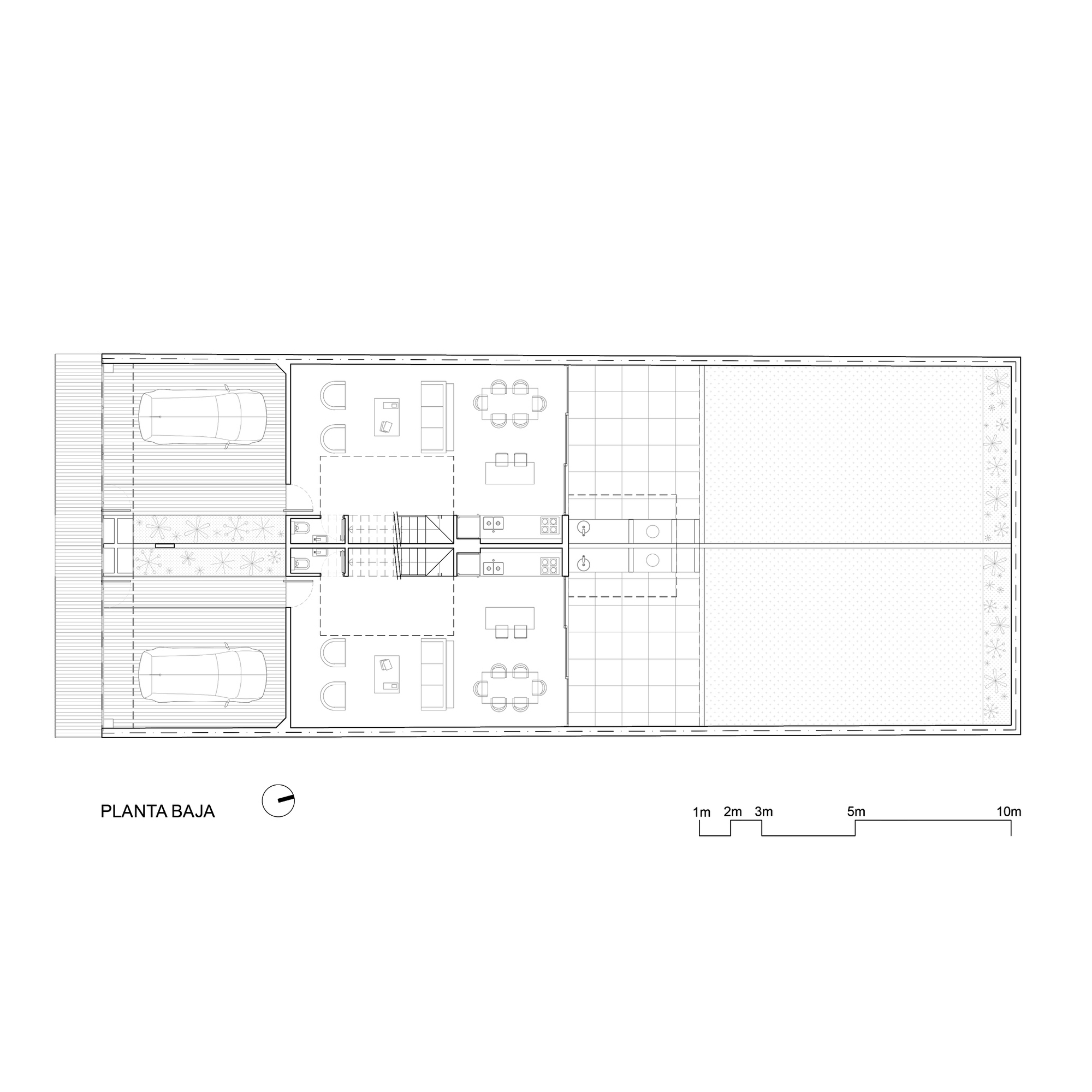
The project is located in a residential neighborhood of Ituzaingó, to the west of Buenos Aires Province. Two mirrored houses are situated on a 12x30 meter lot. A clear pattern is identified in the immediate surroundings.
The transition between the street and the interior of the homes is manifested through a sequence of unchanging elements: sidewalk, fence, flower beds, patio, and door.
Although the project requirements excluded the front yard, the proposed architecture acknowledges this transition through the gradual view of the different elements that compose the facade.
The facade is not defined by a single element that separates the interior from the exterior but by a succession of alternating elements that add depth: fence, eaves, flower bed, vegetation, sunshade, wall, and windows.
Inside, the service areas on the ground floor are organized in strips extending from front to back. Three empty spaces organize the functions of each home, defining and connecting them while creating different levels of privacy.
The double height above the living room separates the secondary bedrooms from the master bedroom on the upper floor, which are connected via a metal walkway.
The master suite's terrace fills the interior of the house with light on one side and overlooks the double-height gallery on the other.
The material expression complements the spatial proposal. Exposed reinforced concrete slabs are presented without interruptions, while vertical surfaces are either white or glazed.
Patterns are a constant throughout the project: they are used in cladding, furniture, and as elements that filter light and expand spatial perception. The sunshades have different shapes in each case.
At the front, they are horizontal and fixed for the morning sun. Their uniformity and continuity reflect the repeated use they serve and provide unity to the construction.
At the back, the symmetry of the design is evident. The sunshades, or privacy screens, integrate the various uses of the bedrooms and double-height spaces. They are movable and respond to the afternoon sun.






























