Housing Complex in Leiria
ARCHITECTS
Bureau Des Mésarchitectures
ENGINEERING
Gravidade Engenheiros, Glfv
MANUFACTURERS
Damásio & Leal, Lda, Eduardo Marques & Rosa Lda, La-luso-alemã Sa, Mercantlis-construções Lda, Sosoares
CONSTRUCTION COMPANY
Ergsilva
LEAD ARCHITECT
Didier Fiúza Faustino
CARPENTRY
Pedrosa & Filhos Lda
YEAR
2024
LOCATION
Leiria, Portugal
CATEGORY
Housing
Text description provided by architect.
Set in the Rua dos M.rtires, a prime area of the small city of Leiria in Central Portugal, the site of the new housing complex is wedged between a wide modern avenue featuring new construction and a narrow old street that leads to the city's historic district.
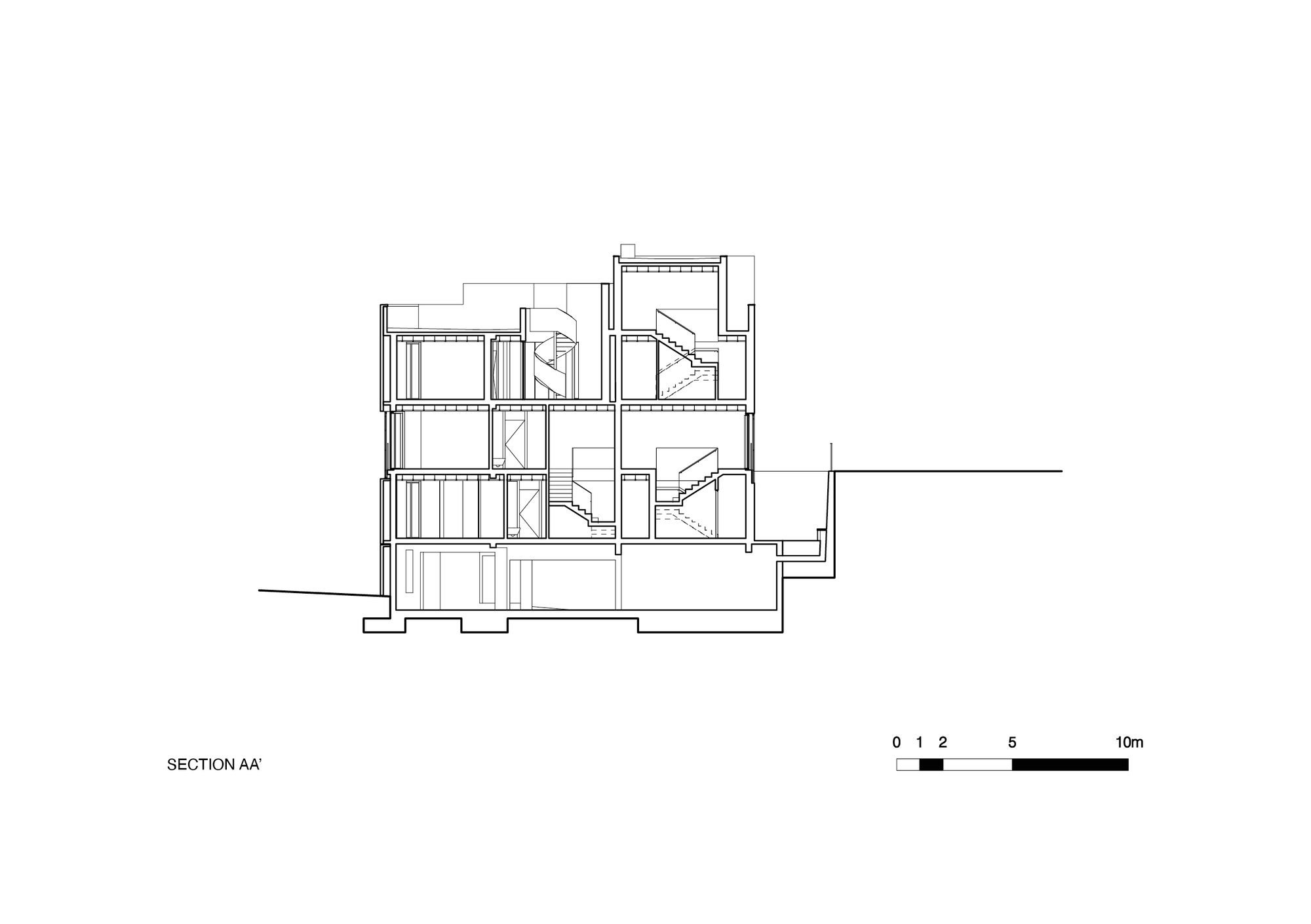
The project combines the renovation of a pre-existing small house with a new extension and features seven apartments as well as a shared private parking zone.
The four-storey building serves as a hinge between these two urban conditions – a developing area with tall buildings and a narrow street with squat houses.
This urban friction is addressed by Bureau des Mésarchitectures with a panelled facade of precise geometry, materiality and rhythm. The curved footprint and overlapping concrete panels of the building address both sides of the site's conflicting realities.
The pre-existing building, an early 20th century house with a characteristic tiled roof and yellow fa.ade, has been transformed into two apartments, a two-bedroom apartment on the ground floor and a one-bedroom apartment above.
Meanwhile the new extension includes five apartments, two four-bedroom apartments, two two-bedroom apartments and one three-bedroom apartment. The old and new parts of the project are connected by a common stairwell.
The facade of the extension building is made from a very strict grid which combines lightweight and moveable elements –golden windows and aluminium shutters – and heavier, fixed elements – natural deactivated precast concrete panels.
Sometimes open and sometimes closed, the building works as a living structure in constant flux, which becomes especially noticeable as sunlight travels along the curving facade, colouring it with ever-changing hues and reflections.
Inside the building, each apartment has its own identity which is reinforced either by features such as surrounding views or the architectural details of the pre-existing house.
Some of the apartments are cosy and intimate, with small windows connecting to the interior backyard of the building. Some are generously open to the outside with big windows and roof terraces.
The apartment interiors are defined by soft colours: light gray walls and comfortable epoxy floors and wall paintings.
They feature exposed elements of the concrete structure, birch doors and furniture mixed with alpinina stone, offering a warm, soothing and comfortable ambience.
The building makes manifest and negotiates some of the major tensions of urban housing, such as the interplay between protection or introspection and openness.
The structure clearly belongs in the city; its expressive fa.ade serves as a gesture of publicness and could be mistaken for a different typology, such as a school or gallery.
But the project also serves to shelter its inhabitants with privacy from the outside, a key feature of any domestic architecture. In this sense, the project aims to reframe how bodies inhabit the city through our domestic structures.
To a certain extent, its large windows and bold fa.ade put the act of living on a stage – one performance alongside all the dramas of the city unfolding at once.
As Didier Fi.za Faustino, conceptual artist, architect and founding director of Bureau des M.sarchitectures puts it, "Architecture allows us to create friction, address contemporary questions and design stages for the body: the individual, the social and the collective."































