
CEPT University Foundation Hall, Lecture Hall and Kund
ARCHITECTS
Ccba Designs
LEAD ARCHITECTS
Prof. Christopher Benninger
STRUCTURAL
N. K. Shah Consulting Engineers Llp.
ACOUSTICS
Sonics
RAIN WATER HARVESTING
M. S. Consultants
FURNISHINGS
Tdw Furniture. Pvt. Ltd, Ismet Khambatta
DESIGN
Christopher Benninger, Daraius Choksi, Shivaji Karekar, Neeraj Nijampurkar, Ramprasad Akkisetti, Rahul Sathe
MEP
Prachtvoll Engineers Pvt. Ltd
PROGRAM / USE / BUILDING FUNCTION
Educational
LANDSCAPE
Angsila Oyster Scaffolding Pavilion / Chat Architects
LOCATION
Ahmedabad, India
CATEGORY
University
“Originally from the USA, celebrated Indian Architect and Planner, Prof. Benninger's architectural journey mirrors the life of a dedicated scholar. His firm 'CCBA Designs' based in Pune, is a multi-disciplinary design company renowned for its innovative and contextually sensitive creations.
Since its inception, the firm has created a great number of institutions around the world, harbouring the identity and symbolic relationship between the built environment and the social fabric. Their latest endeavour brings them back to Benninger’s beginnings in India.
THE SYMBOLIC ENDEAVOUR: NEW ACADEMIC BLOCK IN CEPT UNIVERSITY
Located adjacent to the School of Architecture, the new block is designed to reinforce the cultural continuity of the existing campuses architectural language and consists of rectangular juxtaposed volumes containing three components.
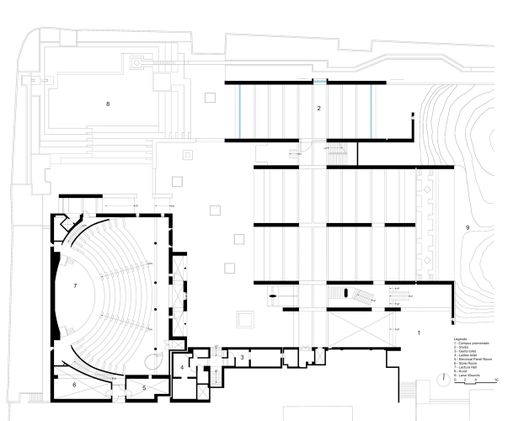
The new block fosters a sense of physical and visual connectivity with the iconic grass hillock and School of Architecture next door. The Foundation Centre and the Lecture Hall are perched in an L-shaped layout on the site and envelope the Kund that ties the two together by harboring a new activity hub for the campus.
THE FOUNDATION CENTER
The Foundation Center is a double-storey structure that continues the play of open-plan layouts of the existing campus. Designed to house six studios and six classrooms that accommodate around 300 students, the design follows the celebrated material palette of exposed bricks and concrete, synonymous with the identity of the campus and the architectural language of modern Ahmedabad.
Two staircases at either end of the structure lead to the Foundation Studios upstairs. They are set deep inside the volumes to tackle the harsh Ahmedabad heat and open up to balconies that frame the facade of the building.
The spatial functionality of the studios adopts a similar open layout borrowed from its sister building, the School of Architecture by B. V. Doshi.
Reflecting the traditional architectural heritage of the city, exposed concrete jack arches are incorporated and flanked by skylights on either side to improve the natural lighting.
Frosted glass flooring is used in the passageways to increase light filtration through the volumes. The Lecture Hall: an Auditorium - The Lecture Hall is a single-story structure with a capacity to accommodate 450 students.
Its warm interiors are further heightened by its wooden furnishings, which were conceptualized and designed by Ismet Khambatta’s 'The Design Workshop.’ The use of colored glass for its boxy openings creates a colorful chiaroscuro effect in the backdrop.
THE KUND: A HUB FOR ACTIVITIES
The Kund is an open-air amphitheater and student activity center. It takes on a dual role of function through careful space planning by primarily functioning as a gathering space for students year-round while quietly transforming into a rain-water pit during heavy monsoon, mimicking traditional Amdavadi step wells. The water from the whole campus is drained here and is used for ground-water recharge later, thus making the design intervention adapt to the seasonal changes of the city.
THE MURALS: AN ARTISTIC EXPRESSION
For Prof. Benninger, murals play a very important role. The new academic block features a large number of murals cast in situ on its concrete ceilings.
These act as personalized notes given by the architect himself to the young students to foster an ever-growing curiosity to learn and observe one’s surroundings.
Some of them include Le Corbusier’s famous 'Modulor Man', and Benninger’s own 'Principles of Intelligent Urbanism'.
The Modulor Man is a human figure synthesizing a universal system of proportions, while the Principles of Intelligent Urbanism is a theory composed of a set of ten axioms intended to guide the formulation of city plans and urban designs.
The architectural vocabulary of the new block is dictated by the context of modern architectural heritage in which the structure has been built.
The building borrows materiality, scope, and expression from the site and builds upon the environs to create a masterpiece that would not only blend with the fabric but complement the aesthetic and legacy of the campus.”
Thus, instead of diverging from the material palette, the project uses standard materials in innovative ways.




















