ARCHITECTS
Atelier WOA
ARCHITECTS
Atelier Angel Architecte , Studio Martial Marquet
PROGRAM / USE / BUILDING FUNCTION
Game and multimedia library
LANDSCAPE ARCHITECT
Agence 22°
MANUFACTURERS
Barthès bois, Briand Bois Construction, Philippe d’Art, Pouget Consultants
PHOTOGRAPHS
Salem Mostefaoui
AREA
2227 m²
YEAR
2023
LOCATION
Herblay, France
CATEGPRY
Library
‘‘L’échappée’ (or the ‘escapade’) stands for a place of meetings and exchanges, and a call to culture.
A contemporary forum where both younger and older generations should feel at home.
“L’échappée” of Herblay-sur-Seine embodies the simple paradox of a landmark building that seeks to blend into its environment.
It maintains a strong relationship with its topography. From the ground, the forecourt transforms into terraced steps, gradually becoming a structure.
The construction changes as it rises, transitioning from a mineral base with massive stone (extracted from the quarry of Saint-Maximin located 30 km away) to a fine metal mesh, culminating in a landscaped roof.
This gentle curtain cascading from the roof offers nuances depending on the glazed or opaque sections it covers.
The dynamic effect of this uplift is a call—an invitation to enter, to be entertained, informed, and share.
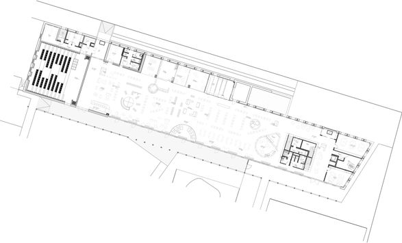
The expansive interior volume consists of a completely open plan, providing maximum flexibility and adaptability for future uses.
Completely green and free of technical elements, it integrates the building into the landscape, offering a qualitative and unobstructed view to the surrounding structures.
In the manner of Haussmannian buildings, wood and stone come together and interlock to form a durable and high-quality construction principle.




















