
The Monolithic House
STRUCTURAL CONSULTANTS
912 Consultants
MEP CONSULTANTS
Jhaveri Associates
AREA
11025 Ft²
YEAR
2023
LOCATION
Ahmedabad, India
CATEGORY
Houses
The site is on the outskirts of Ahmedabad with farmlands around. The brief given by the owner was to design a house that would have open spaces within and a greener patch on the outside.
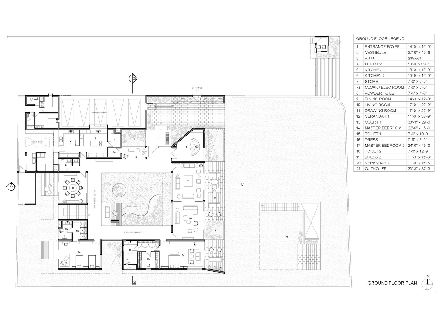
The proposed design is a central courtyard house with spaces around it and interspersed by open to sky spaces to connect the central court to the peripheral open spaces.
The central court is the soul of the house having a sitting deck and bit of plantations surrounded by loose brown mandana kapci.
The court has remote operated fabricated roof which is mostly kept open during the day for natural light and ventilation.
One enters through arrival court into a vestibule which is fused with passage to lead to other spaces.
On the left of vestibule is the pooja space that open into the east garden, while adjoining this space is the drawing area and living area.
To the right of vestibule one can go to the kitchen in southeast part, adjoining it on west is the dining which open into a small outdoor space.
The stair to the first floor sits adjoining the dining space while the south wing holds the grandparent’s bedroom on south west and parents room on south east which overlooks the east garden.
The upper floor houses bedroom for the 2 son’s bedroom which spill into terrace and overlooking the east garden.
Further it has 1 guestbedroom and 1 kid’s room. All tied through a semi open passage overlooking the central courtyard.
The house has a monolithic feel, with concrete structure and cement finished walls and kotah stone flooring.
Wood complements the concrete through wood ceiling, wall paneling and reclaimed wood door windows.


























