
Housing In Bad Aibling
ARCHITECTS
Florian Nagler Architekten
STRUCTURE ENGINEERS
Merz Kley Partner
PROJECT MANAGEMENT
Tilmann Jarmer
TIMBER CONSTRUCTION
Hebensteiner Holzbau GmbH
PHOTOGRAPH
Schels, Lanz, PK Odessa
AREA
2364 m²
YEAR
2022
LOCATION
Bad Aibling, Germany
CATOGARY
Houses
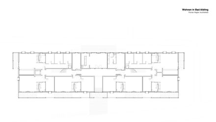
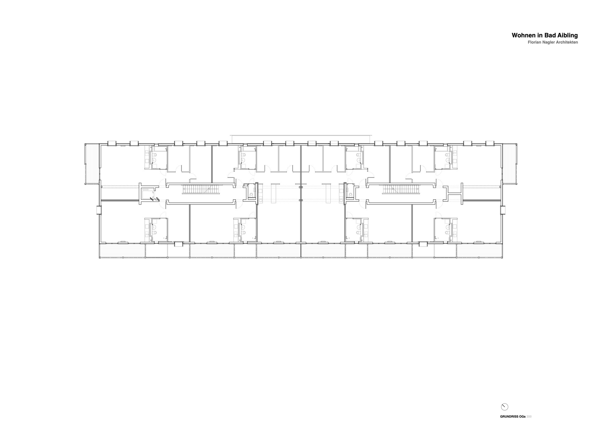
Against the background of "Build Simply", we developed a simple type of house for the WOGENO property, which is accessed via a common entrance, that leads to two central stairwells.
The house is based on a clear grid of 3.10 m, which relates well to planned timber construction.
The supporting structure is reduced to the solid, elongated access core, and the supporting outer walls are made of solid (and insulating) cross-laminated timber panels, which contain a minimal proportion of glue.
Eight apartments are planned for each floor. The number and variability of the different possible apartments is considerable despite - or perhaps because of - this very simple basic structure.






















