
Luz house
ARCHITECTS
Ihouse Estudio
MANUFACTURERS
Hansgrohe, Dekton, Genebre, Hunter Douglas, Summa
LEAD ARCHITECTS
Marcelo Mederos, Andrés García
DESIGN TEAM
Luciana Cano, Agustín Sica, Lucas Toledo
PHOTOGRAPHS
Aldo Lanzi
AREA
386 M²
YEAR
2022
LOCATION
Montevideo, Uruguay
CATEGORY
Houses
This project came as a particular assignment to the studio from the clients who presented us with the challenge of designing a house located in the heritage district of Carrasco in Montevideo to become their family's home as a permanent residence.
Despite being dedicated to housing and prefabricated modular constructions, we are always open to new challenges, which is why this proposal that was out of the ordinary captivated us with the rigor of facing a world that we already knew but that we had not manipulated for a long time: traditional on-site construction.
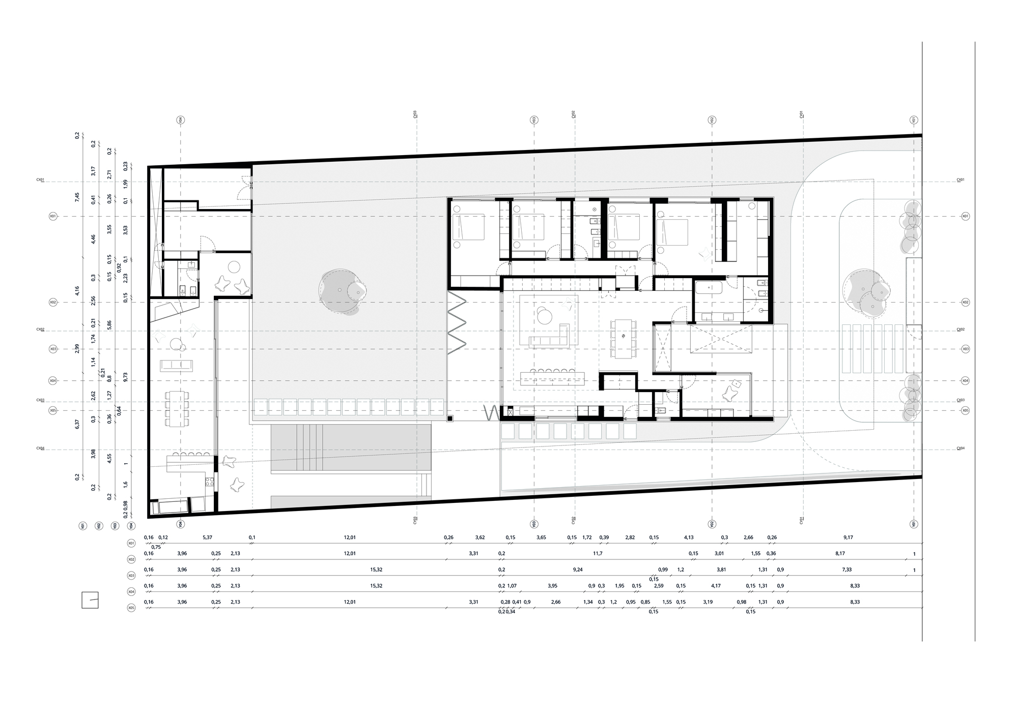
The requirements were clear: to develop the house on a single level with four bedrooms, an office, a gym, and a playroom.
In addition to containing the bedroom area in a wing that could function independently from the social area and finally maintaining the maximum possible privacy with respect to the exterior without sacrificing glass areas. Taking into account from the design the integral security of the house.
With these premises, the basis of the design started, which sought to reinvent the predominant modern estate in the garden neighborhood where it is located.
The land consists of 1036m2 with its front facade facing north and is surrounded by existing buildings with heterogeneous architecture.
The house maximizes the use of the land and is composed of two strips that determine the degree of privacy.
The first extends along the length of the land towards the west facade and concentrates all the private areas such as bedrooms and sanitary services.

A loggia of patios and skylights provides natural light to the wide social space in addition to generating a strong connection with the exterior and nature.
At the back, there is a large glazed barbecue, which contains the gym and playroom as well as serving as support for outdoor activities.
Formally, the house is composed of two reinforced concrete slabs that contain a permeable skin in between that increases or decreases its perforation according to the program behind it, thus grading privacy without needing another means.
The hard and noble materials make the house look robust and secure, in addition to minimizing the need for external maintenance.
Inside, a minimalist design turns this 250m2 house into a cozy home. The polished monolithic floors recall the classic estates located in the neighborhood, while the carpentry and furniture in wood and shades of gray and white modernize the interior, making it classic but modern.
The historical coexists in perfect harmony with the vertiginousness of modernity, thus generating a spacious yet cozy home.



















