
Brainport Human Campus: The Atelier
PRODUCT DESIGN
Hal2 Projects, Studio Maatwerk, Spidersigns, V3rs, Jeroen Schreurs
LANDSCAPE CONTRACTOR
Visser Hoogeloon
MANUFACTURERS
Metsa Woods, Arturo Unique Flooring, Desso, Greensand, Heraklith, Is Wand En Plafondsystemen, Iboma, Jansen Beregeningstechniek, Mbi, Monocoat, Reynaers, Sab Profiel, Trisoplast
CONTRUCTOR
Rooijakkers
ELECTRICAL ENGINEERING
Hoff
LIGHT DESIGN
Lichtmeesters
INTERIOR ARCHITECT
Bart Waasdorp, Geert Willems
INTERIOR DESIGNER
Evi Bakermans
LIGHTING
Studio Berk
LANDSCAPE DESIGNERS
The Dutch Wave
PROJECT LEADER
Geert Willems
LANDSCAPE DESIGNER
Martin Buijtels, Hans Van De Kam
GRAPHIC DESIGN
What A Guy
PROJECT MANAGER
Roy Dieker
LOCATION
Helmond, The Netherlands
CATEGORY
Office Buildings
HAPPINESS AT WORK.
Founded by the family business driessen groep, brainport human campus is a place where people are central, and happiness at work seeps through every detail. It ensures a balance between the focus on technology in the region and the challenges in the labor market for education, care, and welfare.
Happiness at Work. Founded by the family business Driessen Groep, Brainport Human Campus is a place where people are central, and happiness at work seeps through every detail.
It ensures a balance between the focus on technology in the region and the challenges in the labor market for education, care, and welfare.
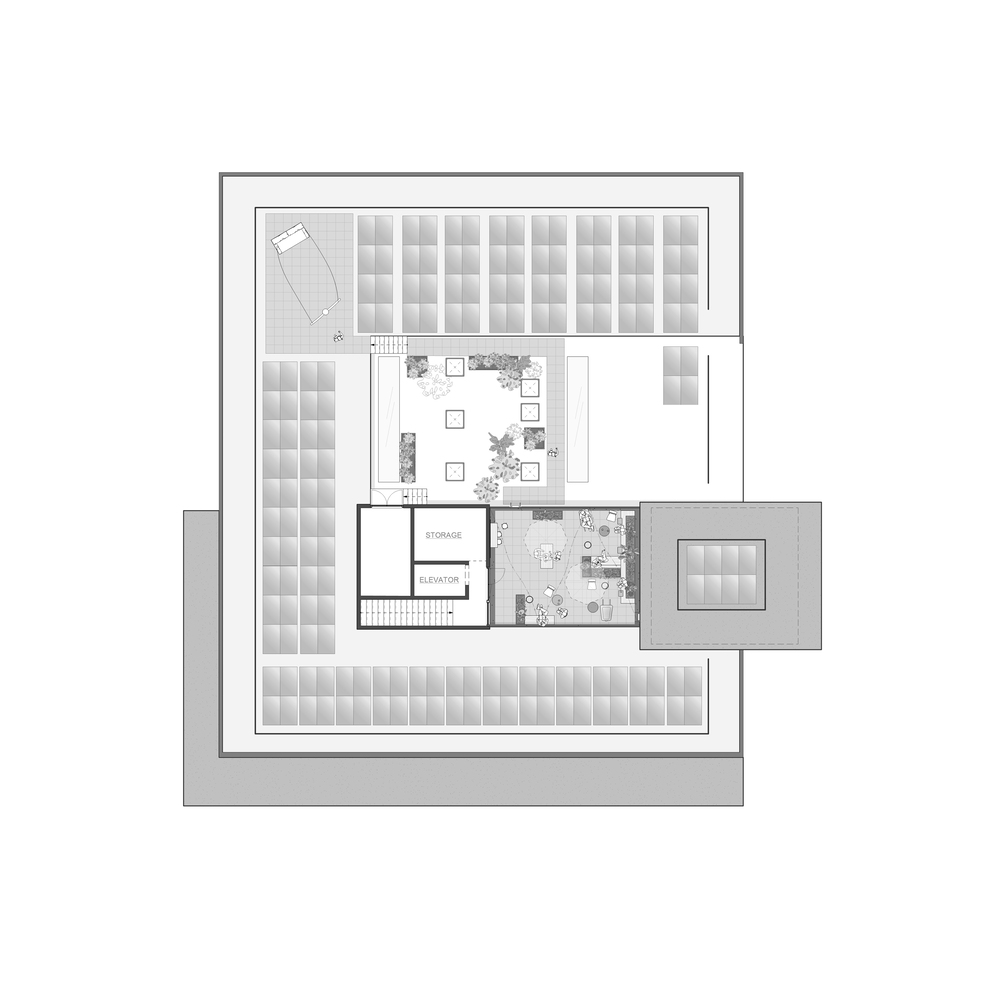
TERRAIN:
From parking lots to eco-principles. The first step in creating a happy workplace was to give a significant part of the parking lot back to nature and people.
The Dutch Wave transformed this area of 3100m2 into a multifunctional recreational place that contributes to the work-happiness statement.
The new master plan with a total of 10200m2 includes two outdoor dining zones, several recreational areas, two event stages, a pond with a beach, and a natural route around the campus.
The MBI concrete seating elements are placed in various locations on the site, providing unity in the landscape design and offering various experiences and opportunities for recreation amidst nature.

Two concrete stages at the entrance and in the middle of the plot are designed to be focal points for outdoor events.
The dominant lines of the landscape ensure that even new visitors can navigate from point A to B effortlessly.
SUSTAINABILITY IS KEY.
All old materials from the site have been reused or recycled on-site. Rubble from the ground has been sieved, and the old pavement has been removed and repurposed as secondary hardening at another location.
The choice of gravel fell on Olivine from Greensand, a unique mineral that absorbs CO2 when it comes into contact with water.
The average tree on campus is 15 years old and has been transplanted 5 times. This approach by Ebben Trees Nursery acts as strength training to deliver extra strong trees.
Just adding up the numbers: 22 trees with an average age of 15 years means that more than 330 years of trees have been planted so far.
THE ATELIER:
Inside a concrete bunker lurks a secret. Connecting factor. The atelier is an exemplary example of how the design & build process can transform a characterless building into a warm and inspiring entity with a distinct function.
The continuous cooperation between the Driessen Group and Hal2 and the resulting bond of trust moved the management of the Driessen Group to let go of the reins during this project.
THE RESULT ASTOUNDS.
Transforms every original form, feeling, and function. The emergence of the "Concrete bunker" into an inspiring and stimulating business building also led to the birth of the brainport human campus.
An incubator where cross-pollination between young entrepreneurs, start-ups, and small businesses is the common thread. Which at the Driessen Group is embedded as a concrete foundation.
LOOKING DIFFERENTLY.
To manage the immense transformation, hal2 played an integral role; art director for the diverse visual applications, project coordinator for the close coordination between builder and client, and recruiter of a team of young creatives.
A, specially assembled for this project, a creative team of young professionals in the fields of architecture, interior design, public space, product design, and graphic design.
The unlimited drive, customized solutions, and constant flow of creativity endorsed the right choice. Inspiring visits, together with the Driessen Group management, to similar projects form an image that serves as a starting point for the design.
The combination of accurate planning and organization of the in-house Hal2 team results in a truly special and unique concept.
"Transforming this featureless concrete cube into a warm, dynamic, inspiring entity and thus the birth of the Brainport Human Campus.
Nothing is cast in concrete. During the concept phase, the starting points for the new design are determined. Transparency, flexibility, connection, and circular construction are fundamental core values.
In-depth brainstorming sessions further shape the design. Despite the characterless concrete exterior, little daylight, illogical layout, an energy label G and the nickname "the concrete bunker," there is enormous potential.
The application of high-quality climate engineering solutions results in an energy label A. The new routing and thoughtful design of the layout result in a logical whole.
The warm Finnish spruce wood that adorns the previously gray facade contributes to CO2-friendly construction.
POWERFUL CONTRAST.
The interior has become a stimulating, dynamic whole that contrasts powerfully with the original gray concrete through a coordinated palette of patterns, structures, and colors.
Circularity has been translated in detail into up- and recycling, vintage furniture has been given a second life, and old building materials, crates, and street objects have served as the basis for sustainable interior elements.
Polish pine not only brings the outdoors inside, but it also provides a warm touch to various custom objects. Workplaces are activity related; sit-stand desks, flex-work tables, comfortable couches, high tables, and quiet focus workstations are available to everyone 24/7 and ensure a sustainably responsible and above all pleasant working environment.











































