
Diamond Tree
CLIENTS
Penta Service, Simioni Family
LEAD ARCHITECTS
Alessandro Lazzari, Marco Mazzetto
MINIMALIST WINDOW
Sliding
MANUFACTURERS
Oikos, Vitrocsa, Antonio Lupi, Fabbio Design, Gse, Lapitec®, Marconati Impianti, Salvatori,
Tecnosystem, Verde Profilo, Vimar
YEAR
2018
LOCATION
Ponzano, Italy
CATEGORY
Houses, Sustainability
Diamond Tree is a villa designed by 3ndy Studio for Simioni family in Ponzano Veneto, in between the residential and rural north-west areas of Treviso.
The concept develops around an idea of decomposition, subtraction and rotations of volumes, in order to create several ways to perceive the space.
The lack of corridors in between the living and night areas suggests a stereoscopic view of a hybrid and fluid space, with no fixed hierarchy and filled by the light coming from a large ceiling window.
All paths inside the villa are continuous with no confines nor interruptions, so that the inhabitants can move freely without passing through any doors from one room to another.
The main bedroom is separated from the rest of the house by a very special sliding wooden wall.
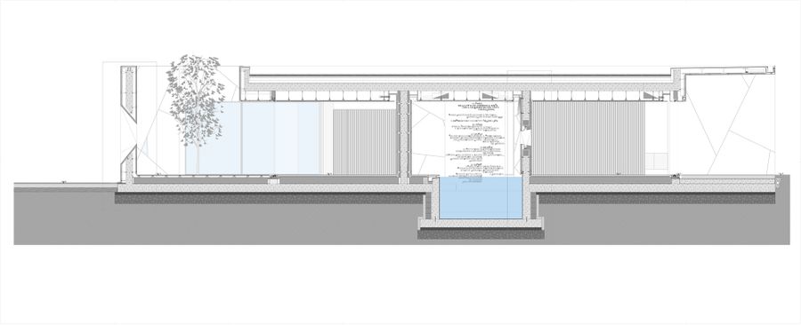
The living area is partially emptied by an internal court, illuminated by zenithal light that projects shadows of trees on the internal walls.
The house is coated by different natural high quality materials, selected for their chromatic and physical peculiarities, i.e.
“Canaletto” walnut wood engraved with slats and flamed black granite, mixed with hi-tech materials as sintered stone and solid surface, specifically used for their esthetic peculiarity.
Sintered stone has been used in its “absolute black” variety on the back wall of the indoor swimming pool, where the Italian artist and sculptor Giorgio Milani impressed the history of Simioni family.
It really looks like a stela emerged with running water and irradiated by natural light.
Solid surface material instead, with its absolute white color, has been used to cover the house, inside and outside.
Its monolithic feeling, is interrupted by unexpected prismatic fissures engraved on the walls, that reflect the sunlight as a diamond.
A big challenge with this project was represented by the usage of solid surface on the facades.
It was really hard to cut and to shape the solid surface slabs in order to follow the polygonal windows openings.
This moment of the construction process required an analysis of the panel attachment systems and an accurate manual savoir faire of a selected team of craftsmen.
At the end the result is excellent, the purity of the white material and its hardness give the house a unique and weatherproof shell.
The view of the building from above represents a landmark of the Ponzano Veneto country, while the photovoltaic and solar panels, along with the geothermal plants affirm the ecological and sustainable character of the project.



































































