
AGU Presidential Museum And Library
ARCHITECTS
Eaa - Emre Arolat Architecture
MECHANICAL PROJECT
2y Yapi Engineering, Rönesans Construction
CURATORIAL APPROACH
Hasan Bülent Kahraman
LIGHTING CONSULTANT
Lighting Lab.1
LANDSCAPE DESIGN
Ds Architecture
CONSTRUCTOR
Rönesans Construction
EXHIBITION APPLICATION
Hypsos
FACADES
Axis
ACOUSTICS
Sey Consulting
INFRASTRUCTURE
Rönesans Construction
TRAFFIC
Raa, Yön-sis
RESTORATION ARCHITECT
Gülsün Tanyeli
SURVEY RESTITUTION
Çağ Construction
FIRE SAFETY
Abdurrahman Kiliç
STRUCTURAL ENGINEERING
Feridun Çili
MAIN MATERIALS
Bekir Pekmezci
ELECTRICITY
Sila Engineering
ARCHITECTURAL TECHNICAL SPECIFICATIONS
Zafer Engineering
STRUCTURAL PROJECT
Göktem Engineering
FIRE CONSULTANT
Abdurrahman Kiliç
EXHIBITION DESIGN
Raa – Ralph Appelbaum Associates
LOCATION
Kayseri, Turkey
CATEGORY
Museum, Library
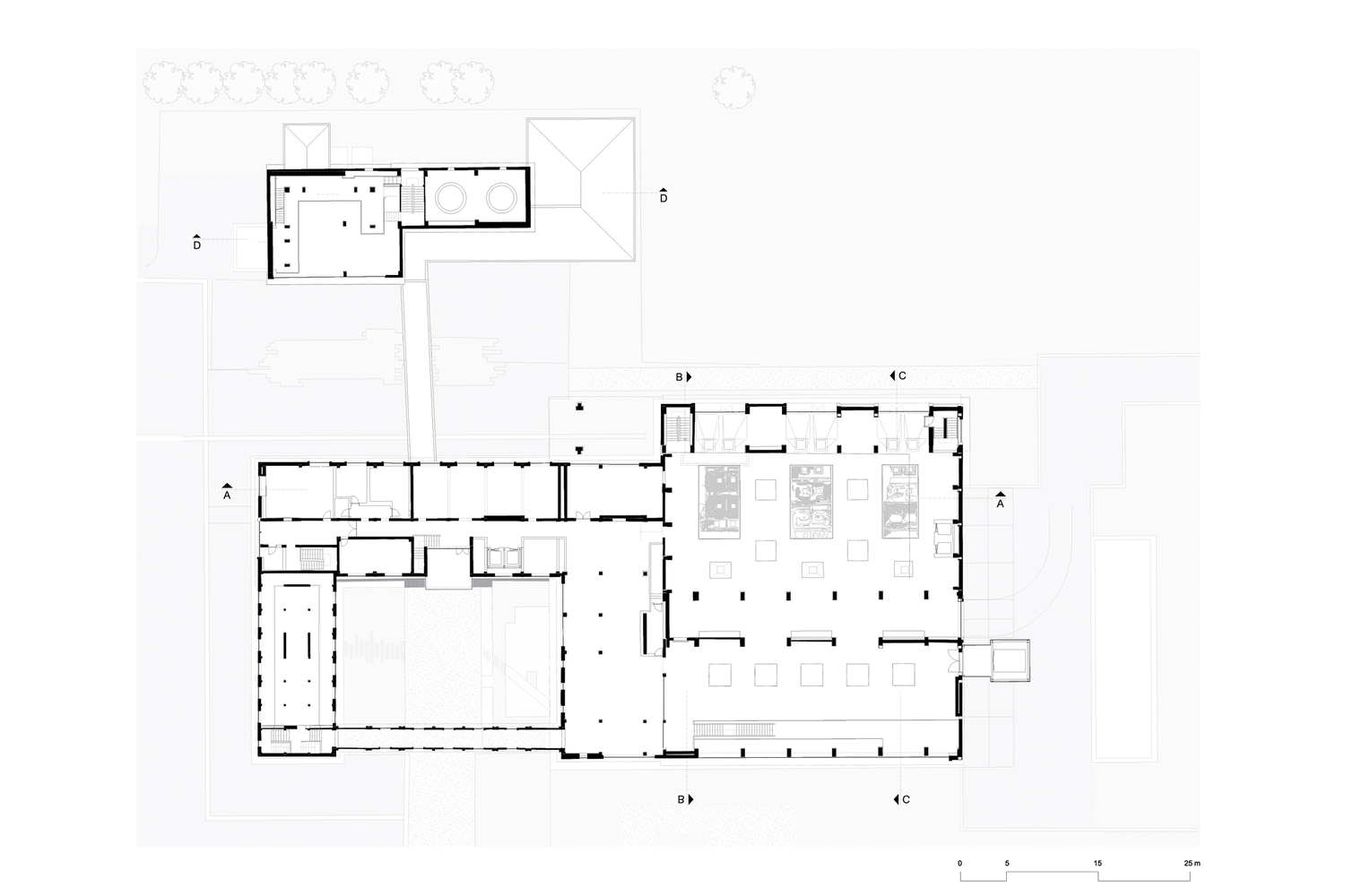
The buildings that were renovated as the Presidential Museum and Library are just two of the many units that formed Sumerbank Textile Factory, in Kayseri, Turkey.
Built between 1933-1935 and designed by Russian architect Ivan Nikolaev, this production facility has been one of the most significant symbols of industrialization and modernization in the Republican period of Turkey.
After its close down in 1999, the industrial complex, containing unique examples of Russian Constructivist Architecture, has gained modern monument status and in 2012 registered to AGU, a newly established university to be its main campus area.
The same year Emre Arolat was invited by President Abdullah Gul to execute the architectural design and re-use strategy for the whole Complex.
In 2013 two buildings within the Campus, the Power Station and Steam Plant were decided to be regenerated as the Presidential Museum and Library, and EAA was assigned to execute the architectural design.
Each building, surviving years of neglect and decay, boasted generous volumes of space while preserving some of the authentic patina. The general approach was to conserve whatever substance has survived over time and preserve the original features.
The architectural strategy of combining old with new was not trying to emphasize the contrast between parts that belonged to different eras but rather to create a coherent architectural whole.
In this sense, a great deal of effort was paid to maintaining existing elements and finding the best way of dealing with the building services while meeting the necessary safety and accessibility codes.
The principle of preserving the buildings to the highest extent possible is depicted in the selection of the materials.
The interiors of the Power Plant were organized according to its new use as a museum and simultaneously designed to let the visitors experience the origins of the building.
Hidden under several layers of cladding were found the original ash pits which were left visible to become a significant part of the exhibition experience.
The Steam Plant was renovated as a modern information center with library and archive sections that are in strong relation with the museum. With a bolder intervention, a 3 story bookshelf structure is positioned neatly in the main hall of the Steam Plant, combining plausibly with what is already there, both in form and spatially.
The Steam Plant was renovated as a modern information center with library and archive sections that are in strong relation with the museum. With a bolder intervention, a 3 story bookshelf structure is positioned neatly in the main hall of the Steam Plant, combining plausibly with what is already there, both in form and spatially.
Similar to the ash chambers in the power station, existing concrete silo bases have been preserved, now in relaxed reading rooms accentuating the volume of the space.
The exhibition design was led by using semi-discrete spaces to create a thematic visitor journey, the exhibition design took inspiration from elements of Turkish values, tradition, and culture with a respectable stance for the building’s inherent features, such as its volumes, texture, and natural light.

Completed in 2016, Abdullah Gül Presidential Museum and Library is a unique and global example of a welcoming urban center.





































