
Katrinebjerg - Dept. 76 Student Housing
YEAR
2020
LOCATION
Aarhus, Denmark
CATEGORY
Dorms
Text description provided by the architects.
A sense of community, visible sustainability, and integrated artwork are among the most important elements in this student housing association department that shows a well-designed example of how to build dense, relevant, and green.
Copenhagen-based ADEPT is the design architect behind the 130 DGNB Gold-certified studios and small family homes in Aarhus DK.
Completed in 2020, Dept.76. was designed for a local housing association, with the aim to reduce loneliness through opportunities to engage in social activities within the complex.
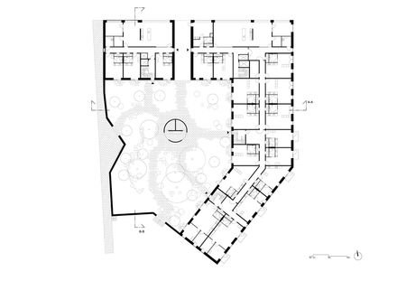
From the courtyard to the roof terrace, the complex is characterized by community-based solutions and by building-integrated art, which adorns walls, corridors, and stairs throughout.
The 130 units are organized in four clusters forming an L-shaped building that embraces the shared courtyard. The simple design is varied by shifts in the building height and by the partly angled facade towards the street, which breaks down the scale of the whole volume. Reddish-brown screen tiles and clearly marked openings detail the exterior facades.Towards the courtyard, the façade is clad with vertical wooden lamellae, which in time will be greened with climbing plants.
The gables of the complex continue as a low wall encircling the courtyard. Dept. 76 is a good example of how community creation, and a sense of belonging, can go hand in hand by optimizing square meters and materials.
Quite simply, the architecture embraces the social element by prioritizing areas for communities to form and unfold.
At the same time, a quite narrow material palette and carefully chosen solutions contribute to strengthening the complex’s identity.
Dept. 76 was built with a limited budget but prioritizes a varied architecture with quality materials and design solutions.
Among the choices that have resulted in the DGNB Gold label is the choice of certified or eco-labeled materials where possible, focus on durability, and the possibility of material recycling as part of a circular mindset.
Another important focal area was to make the building literally green by including greened facades and roofs with rainwater local handling, as well as a garden-like courtyard with integrated climate adaptation and good conditions for micro-local biodiversity.
Furthermore, the overall operating economy is an integrated part of the design through optimized processes and accessible supply infrastructure.

























