Villa Cumulus
DESIGN TEAM
Weliam
STRUCTURE ENGINEERS
Anscon Ce
MEP CONSULTANT
Amep Design
BUILDING CONTRACTOR
Wkon
PROJECT ARCHITECT
Yenti Amelia, Weliam, Diandra Zahra
TECHNICAL ARCHITECT
Weliam
DRAFTER
Made Swastika, Ilham Gusti Syahadat
LOCATION
South Kuta, Indonesia
CATEGORY
Houses
Cumulus Villa is a tropical-contemporary-style family villa in Ungasan, Bali. Like a villa that is used for vacation and taking a break from routine, Cumulus Villa is designed with a wide-open green space area on both sides of the building.
They have stunning views from inside the building. Cumulus Villa is dominated by the outdoor area. Not only have gardens, but we also combine them with a swimming pool, gazebo, and a tree house. Moreover, we tilted the mass of the building to get a wider green space.
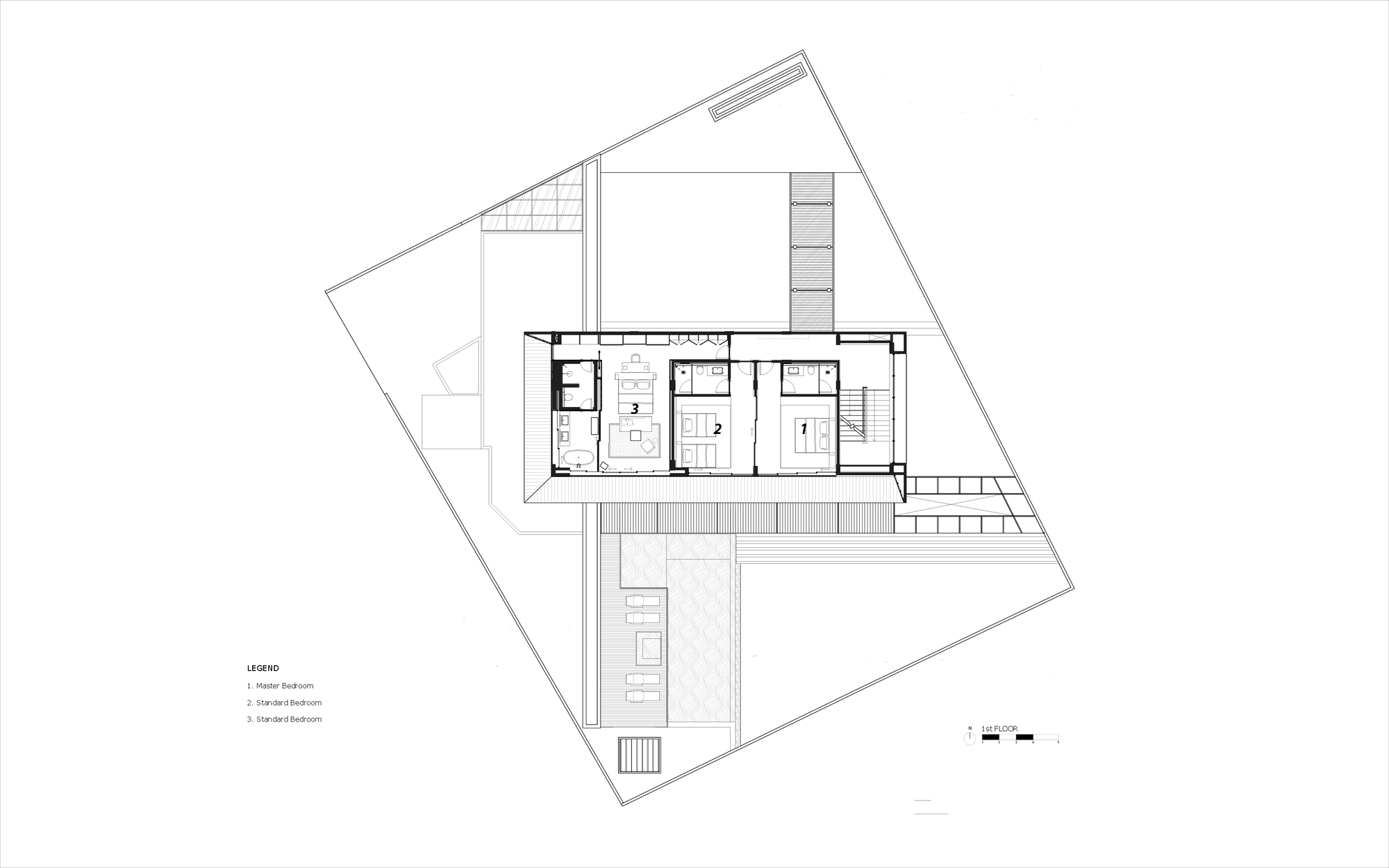
Another good news is that this diagonal shape also allows the living, dining, and kitchen areas to be wider. Even the living room is placed in the middle of the lower floor to create the perfect relaxing space.
The view of the garden from two sides makes our clients free to determine the direction of their view. Here, we use a transparent sliding door.
When the sliding door is fully opened, the two green space areas that are designed in one straight line axis are directly connected without any obstacles. Fresh air also enters and leaves the building freely.
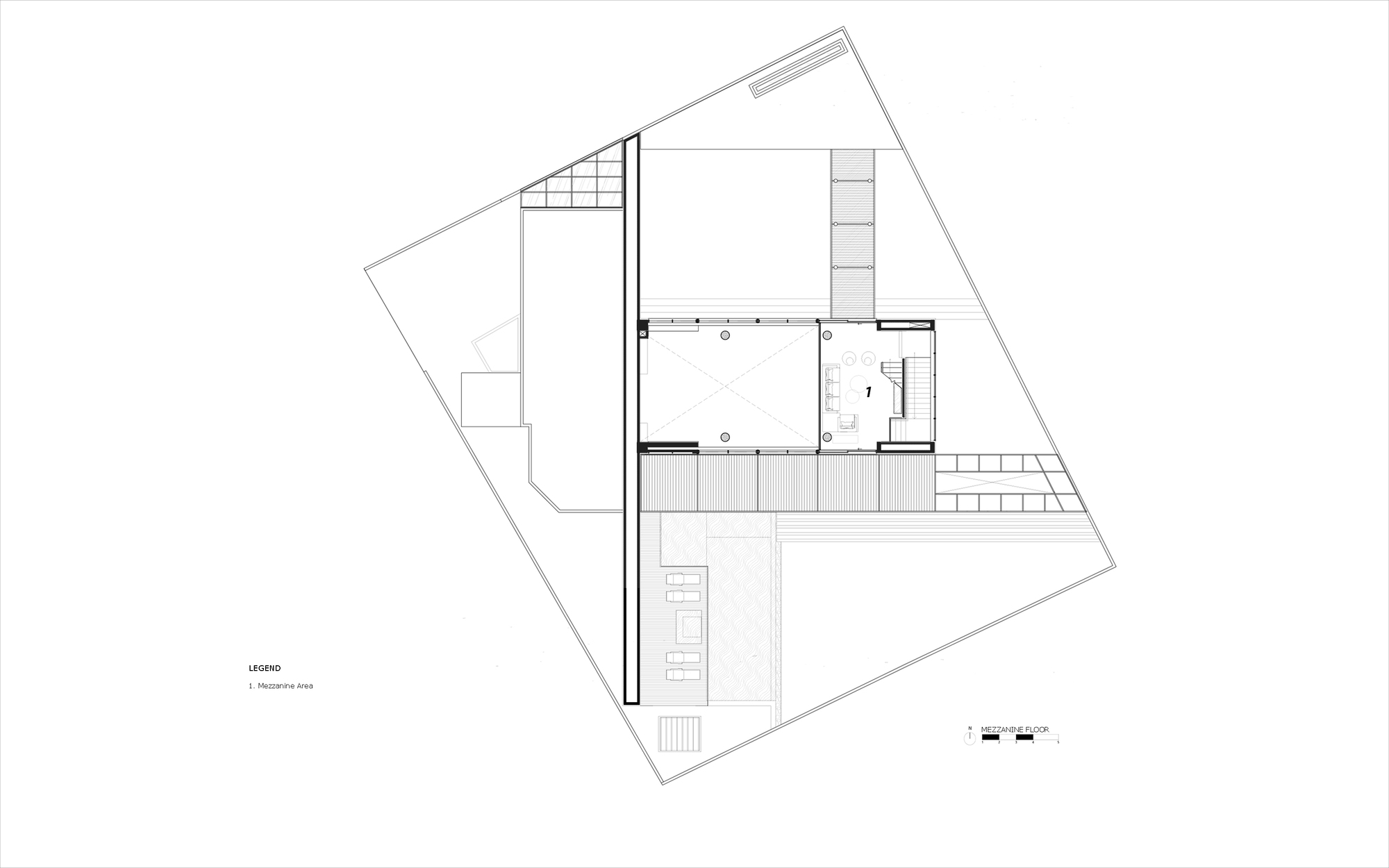
It doesn't stop there; users will have a direct view of Melasti Beach which can be enjoyed from the mezzanine floor to the rooftop area. Also, we designed a floating bedroom.
Interestingly, from this point, we can enjoy the streets as well as other beautiful views. Surrounded by glass, this floating box seems to welcome anyone and anything that comes before your eyes.
A pleasant space experience and not to be missed here. Still the same as the ground floor, we also apply a sliding door for connection between rooms in the mezzanine area.
The difference is that the sliding door is designed with a cumulus clouds-laser-cutting decoration. This is one of our clients' works. Surprisingly, this artwork will reflect aesthetic shadows when exposed to sunlight.
The design of Cumulus Villa is even more beautiful with the game of shadows. Not to mention if we go to the rooftop of the building.
Vista is thoroughly present here. The large rooftop area also allows for a lot of activity. Everyone can relax, mingle while having a BBQ party, or do other exciting activities here.
Although Cumulus Villa is dominated by an openable area with transparent facades on each side, there is one corner of the building that also becomes a point of interest.
That is a stone wall that rises from the ground floor to the rooftop. It is the client's request for the use of Stone House-style stones in America.
So, we realized it here. This area is the core of the vertical circulation in Cumulus Villa. When going up and down the stairs, we will be surrounded by piles of river stones.
Then, the use of stone also appears in other parts of the building. Besides river stone, there is also andesite stone.
We got these stones from Bali, Sumba, to Lombok. Then, we also applied teakwood to some of the interior corners of the building.
From the walls, ceilings, and even the facade area of Cumulus Villa. While as the main structural material, we use steel.
The combination of Indonesian natural materials with more modern building materials further strengthens the concept of the Cumulus Villa which has a contemporary tropical style.
Nevertheless, in terms of building systems, Cumulus Villa is interesting because they implement a smart home system to make everything easier there.
Our clients also can even keep an eye on this villa when they are not in Bali through their smartphones.






































