Chengdu Tianfu City Planning Hall
CHENGDU TIANFU CITY PLANNING HALL
CONTRACTOR
Chengdu Construction Engineering Group Co., Ltd
DESIGN TEAM
Qinyi Li, Tien, Yutong Ma, Xin Sui
ENGINEERING
Cscec Aecom Consultants Co., Ltd
CONSULTANTS
Cscec Aecom Consultants Co., Ltd
COLLABORATORS
Cscec Aecom Consultants Co., Ltd
PHOTOGRAPHS
arch-exist Photography, Tianfu Cultural And Creative City
AREA
1190 M²
YEAR
2022
LOCATION
Chengdu, China
CATEGORY
Cultural Center
Surrounded by wetlands and forests, the Tianfu New Area is located along south of the Tianfu Avenue, the central axis of Chengdu.
With fields, shallow hills, woodlands and rivers around, Chengdu Tianfu City Planning Hall is lighted perched on a wetland hill, blending in with nature.It will become the distinctive identity of Tianfu New Area.
The design concept is derived from the wild goose flying south and perched on the hill.Lead architect Wang Ning shared his idea "If the architecture is just a glass box, it would have no presence from a distance, and the highly reflective glass would be very incongruous in a farmyard.
Thus, we wanted to create that 'imaginary' body from the outset, like a bird's feathers that can breathe and through which sunlight and sight can cross it."
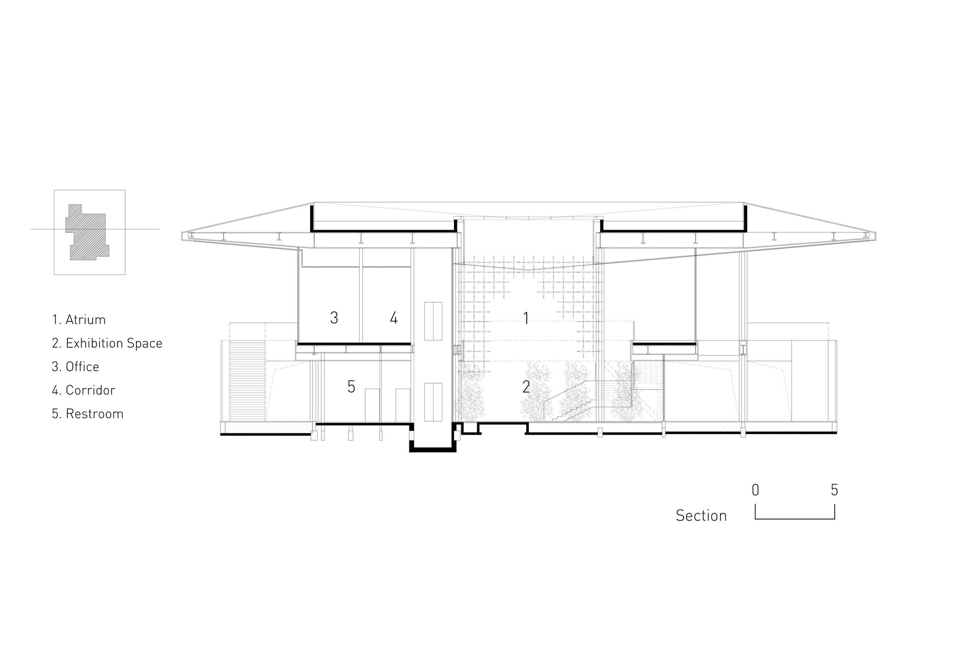
The ground floor is elevated and has colonnades under the eaves that project outwards to allow for a stroll underneath.The building façade adopts a large area of hidden-frame glass ribbed curtain wall.
This extends the outdoor pleasant view into the interior, dissolving the boundary between architecture and nature.The interior atrium uses a patio to bring in natural light and the interior bamboo landscape on the ground floor allows people to feel surrounded by nature even within the building.
The distant view from the second floor platform reveals a large expanse of greenery and the lake.The partially accessible rooftop is a great place to get a panoramic view of the entire core area of the Tianfu Cultural and Creative City.
Meanwhile, looking back over the Tianfu Avenue, the curved roof is set against the sheltered wetland landscape, like the feather of the wild goose.
The ceiling decoration of the roof is considered from the aspect of low carbon and sustainable construction.
Relying on the culture of Sichuan, the traditional material of bamboo has been selected to be formed into wooden bamboo through a new process.
The modular wooden bamboo cross members are mortised and pinned to each other to form multiple layers of ambiguous timber frame space.
After continuous refinement of the structural connections and the overall architectural aesthetics, a total of 20 columns and approximately 30,000 pendants are used to complete the final effect by means of cross-over bite links.
The design team has explored a new pattern of light construction on the plains of western Sichuan.Ning Wang says:” I think it fits particularly well with the life of Chengdu people: relaxed, local, colorful but not static."




























