
JR House
PROJECT TEAM
Lucas Padovani, Bruno Padovani, Raquel Azevedo, Israel de Marco, Victória Ribeiro, Fabio Wetten, Giovanna Verdini, Giovana Ferreira, Felipe Vedovello, Daniella Theodoro, Manoel Prieto, Isadora Aleixo, Ana Clara Lambert, Leonardo Martins, Renata Barros, Maria Antonia Mondelli, Isabel Recamon, Laura Zago, Gabriela Salvador, Marianna Cavalcante, Laura Lacerda, Angelo Montenegro, Gabriel Vidal, Cecília Sestari
YEAR
2019
LOCATION
Bragança Paulista, Brazil
CATEGORY
Houses
The JR Residence project, located in Bragança Paulista (SP), originated from a family’s desire to enjoy their weekends surrounded by nature, in contact with a serene and broad landscape, outside the busy city of São Paulo.
Therefore, the design of the residence was committed to create a cozy environment allowing a direct relationship with nature and new sensitive experiences for the family.
Set in the highest level of the terrain, with a singular view of the horizon, the house extends through a large plateau to enhance the view.
The volumes are either cantilevered, landing and extending over the land, or with openings that frame the landscape, giving the residence a feeling of infinity and, at the same time, unity and warmth.
A sinuous and elegant ramp allows access to the main volume of the residence and draws the front facade along with the landscaping, providing privacy but also visibility by gradually revealing the social area of the house.
Assuming our premise to merge natural and built, the main goal in developing the social area of the JR Residence was to open up the entire common space, dissolving the boundaries between interior and exterior.
The gourmet space, pool, and living rooms face the most privileged view of the surroundings, oriented to the front of the site and the amazing views that compose the vast scenery of the landscape.
The common area configures as a central courtyard by connecting the service area on one side to the entire private area on the other side, reinforcing the permeability and its relation to the outside.
The detachment between these two volumes provides structural support for the metallic roofing to rest lightly between them, allowing natural light to permeate inside the central environments of the residence.
The service area consists of a kitchen, pantry, laundry room, and staff accommodation, while the private area comprehends six suites, a home theater, and an atelier.
Inside, mimicked white panels allow the separation and integration of spaces such as the kitchen and home theater with the main living room.
The light and neutral tones of the furniture, which relate to the slatted panels in wood-colored aluminum, convey lightness to the interior of the house, revealing the nature of the surroundings more intensely.
On the outside, the volumes have elongated walls covered with concrete cladding, reinforcing the horizontality of the design and its relationship with the exterior.
Also, metallic panels allow the movement of the suites’ facade, the passage of natural light and ventilation to the private area, providing privacy to the family as well as connection with the social area and landscape.
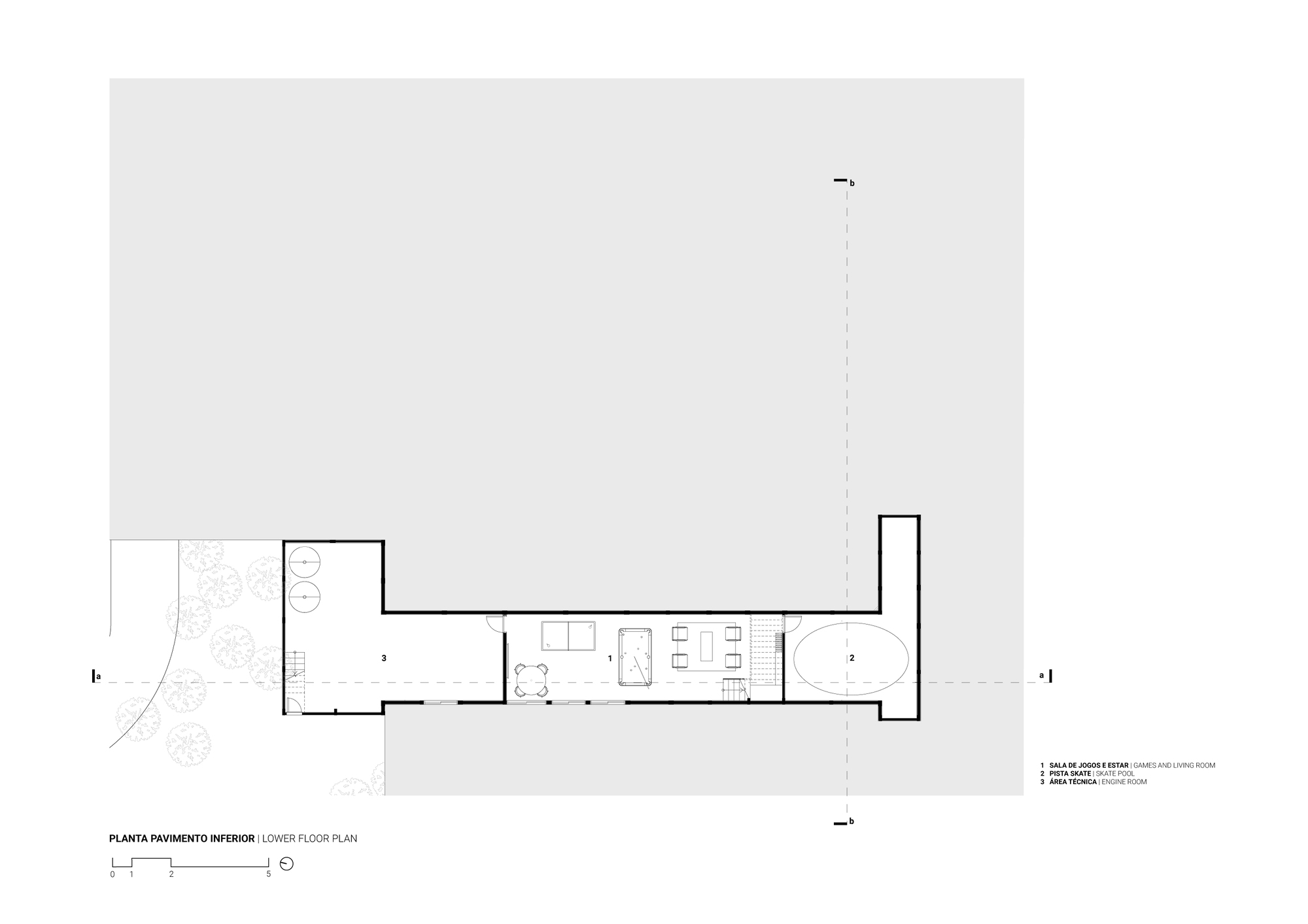
Furthermore, the house has an exclusive gaming area situated on the lower floor, with a skate court and game tables.
The use of concrete in these spaces, especially in the skate lane, harmoniously dialogues with the other materials of the project.
The residence also contains environments destined to relaxation and entertainment, such as a music studio on the ground plan, a sauna, a dressing room and a beach tennis court, which form the JR Residence and contribute to the family’s desire to build a refuge for the weekends connected with the broad landscape and nature.






























