Smart New World Innovation Center
TEAM MEMBERS
Yilin Zheng, Xinxin Guo, Jun Sun, Yiyuan Shi, Jing Zhang
INTERIORS
Gad
STRUCTURES
Renqian Song, Zhouneng Zhong
WATER SUPPLY AND DRAINAGE
Bin Zhang, Ting Hu
HVAC
Jinniu Li
LANDSCAPE
Zuhang Zhuo, Haiyang Yu
OWNER
Hangzhou High-tech Investment Holding Group
PHOTOGRAPHS
Architectural Translator
AREA
89891 M²
YEAR
2023
LOCATION
Hangzhou, China
TYPE
Mixed Use Architecture, Office Buildings
The Smart New World Innovation Center project is located in Hangzhou High-tech Zone, on the north bank of the Qiantang River, and next to Zhijiang Bridge.
It is a gathering area and incubation base of the wisdom industry integrating commercial services and business office functions, which will attract a number of high-tech industries and strategic emerging industries to settle in the future.
The unique location of the site and the gathering of specific talents in the future have put forward new demands different from traditional offices.
Why Modular
The base is located at the gateway of Zhejiang Bridge to Binjiang, and the riverside has already a background of urban buildings, and across the river are rolling mountains.
The lack of greenery has caused the new buildings in the city to lose their connection with nature. In the face of the surrounding environment, we came up with the idea of introducing nature and simulating the mountain.
By splitting the form in a pixelated way, multiple platforms are created, creating a scene that enables climbing and resting like a natural mountain.
Modular Mountains. We set up two separate high-rise buildings to meet the needs of different companies for office space.
The towers are staggered in front and back and naturally form two interconnected plazas at the entrance and the river.
Simulating the stacked form of the mountain, the two towers are set back from the center of the site, floor by floor, to obtain the maximum distance between the two buildings and minimize mutual interference.
The setback blocks are further staggered due to the influence of the expressway and the adjacent planned high-rise; at the same time, a roof garden and a shared viewing platform are introduced to spread nature from the riverside to the interior of the building. Resilient growth. The development of high-tech industries often surpasses the general perception of the current society and has certain unpredictable factors, which require the design of the building space to be "flexible" in order to adapt to the needs of various new enterprises in the development process of office space expansion.
Each "box" is set up as a standard column network and modular units of 3-5 floors, which can be used as a single floor or leased out as a whole to accommodate the different stages of development of small businesses.
Three-dimensional garden. The sealed form of traditional office towers creates a dull and boring office environment due to the lack of natural activity space. We have used a series of flexible blocks to create a rich outdoor terrace space.
The implantation of rooftop greenery and sky gardens breaks the rigidity of the usual standardized office space, and the open and unobstructed activity space adds vitality to it.
It brings a positive experience while reinforcing the concept of a green office, establishes a dialogue with nature, promotes social interaction among users, and stimulates the cohesion and creativity of corporate employees.
How to make the module
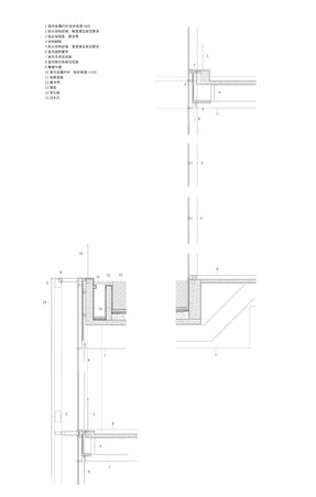
Make modules more like modules. The image of the Innovation Center building is a set of stacked white modules. In the traditional structural practice, when the slabs are flush on the same level, the overhanging part hangs down and the terrace part is stacked on top of each other.
The staggered blocks will show an occluded form. However, in this project, we wanted to pursue a more extreme flat appearance and achieve a clean and clear surface for the modules to meet each other.
We controlled the upper limit of each module elevation at the height of the ceiling closure of the overhanging part of the upper floor, and the exterior elevation of the terrace on the same floor is also controlled by this line.
The terrace section lowers the panels to allow for sufficient surface and interior and exterior waterproofing height differences.
The top panels of different elevations are linked as a whole by inclined beams to achieve the stacking effect of flush top of perforated panels in three positions:
overhang, common floor, and terrace. Meanwhile, in order to avoid the influence of outdoor equipment and the protruding elevator punching shaft on the levelness, we divided the core barrel into high and low zones for decentralized arrangement.
The elevator of the core barrel in the low zone is closed one floor in advance, and the stairs are reserved to meet the evacuation demand.
Using the height difference area between the terrace and the lower panel to set up a descending space as a buffer for the elevator rushing top.
The original equipment that should be placed outside the terrace is also integrated and hidden in the lowering space.
Ventilation louvers are set on the top, which improves the spatial quality of the terrace and makes the boundary between the "boxes" clearer and the building form lighter.
From modules to modulus. On the façade, we adopted a double-layer curtain wall system with internal glass lined with perforated panels to reduce the optical impact on the bridge traffic.
In order to fit with the ultimate presentation of the form, the form staggering and the building facade both follow a certain logic:
the staggering distance corresponds to 1/3 and 1/4 of the structural column network calculation, and then the entry and exit dimensions are broken down into smaller units to control the facade with the smallest common divisor.
A 3m north-south and 2.8m east-west façade modulus frame is set, so that the façade division and staggered position are strictly controlled by this frame to form a top and bottom correspondence.
The frame is then covered with 1/4 width perforated panels with gradual texture, which are gradually peeled off to the corner through-high space.
A series of control measures achieve a sense of precision and purity of the building form, and at the same time, the modal control is also implemented in the landscape, equipment, and other aspects, forming a unified order.
CONCLUSION -
The Smart New World Innovation Center was finally presented under the insistence of the designer's pursuit of refinement and paranoia about delicacy.
It represents the cutting-edge face of high-tech corporate offices and expresses our thinking about the new generation of urban space.
As a model of a sustainable, innovative, and future-oriented workplace, we expect it to become a microcosm of the high-quality development of the Riverside Hi-tech Zone, forming an office garden where nature and technology coexist harmoniously along the river area.

















































