
Danubio Budapest Building
ARCHITECTS
T2.a Architects
MANUFACTURERS
Technowood, Alukönigstahl, Schüco
STRUCTURE ENGINEERS
Lapidárium Engineering Ltd.
MEP ENGINEERS
Agorex Kft.
LANDSCAPE DESGIN
Gardenworks
PROJECT ARCHITECTS
Gábor Balla, Tamás Fülöp, Bálint Laczkó-pető
STRUCTURE ENGINEER
Zoltán V.nagy | Lapidárium Engineering Ltd.
FIRE ENGINEER
Lajos Takács | Takács-tetra
MEP ENGINEER
Csaba Makáry | Agorex Kft.
LANDSCAPE DESIGNER
András Kuhn | Gardenworks
FIRE PROTECTION
Takács-tetra
TEAM MEMBERS
Renáta Gyurcsó, Péter Oravecz, Dániel Pauer, Gábor Sziki, Zita Belevári
YEAR
2022
LOCATION
Budapest, Hungary
CATEGORY
Housing, Residential
Designed by T2a Architects and completed recently on the site of a former river gravel pit on the banks of the Danube in Budapest, the Danubio residential building responds to the unique urban and natural environment, partially overriding the rules of Budapest real estate developers, and realizes a concept that treats sustainability not only as a slogan but also revives many pre-existing but now forgotten architectural solutions and recreates them in a modern, timeless form.
LOCATION
The site is located north of downtown Budapest on the southern side of the FOKA Bay, a former industrial area and harbor, which was created around the 1960s as a result of gravel mining and named after the former operator and abandoned in the 1990s.
The aim of the invitation to tender launched by the developer in 2016 was to draw up a complex development plan for a residential building with around 360 apartments and its surroundings, to be built on a unique industrial "brown site" to revitalize with a direct connection to the Danube and a panoramic view.
To make the former industrial site suitable for housing and public areas, major infrastructure investments and a complex development strategy were needed.
From the very beginning of the planning process, our concept included the natural rehabilitation of the FOKA Bay and the provision of physical connectivity and public access to the public areas.
Together with the development public areas have been created thus the Bay and the Creek areas are now connected, and all the flood protection, road, and utility systems have been completed.
CONCEPT
The architectural concept was first approached from an urban point of view, mapping scale and mass and urban connections. The aim was to design not just a condominium with an attractive façade, but a building that could be viewed from multiple angles and distances, responding to both the natural and built urban environment with equal detail.
As a solution, a building volume consisting of two connected superstructure parts was created, which on the one hand follows and exploits the strange geometric features of the site and on the other hand reacts dynamically to the adjacent mass of the National Swimming Centre.
The building's volume has a practical functional and energetical purpose in addition to its urban presence. The mass of the two parts of the building and their relationship to each other allows the maximization of the frontal surfaces towards the Danube and the Bay.
The dynamic, 'stepping outwards' mass of the building also acts as a passive energy device. The accentuated white cornices on the edges of the floors, offset by 53 cm per level to the south, shade and protect the surfaces of the façade windows from direct sunlight while allowing more diffused light to enter the apartments from the north.
The proportion of different sizes and layouts of dwellings within a building is always a particular dilemma for developers.
Therefore, a flexible architectural and structural system was designed by T2.a Architects that allowed for a quick and flexible change in the number of different sizes and types of apartments ("S/M/L/XL").
To dynamically follow the changing client needs, an own algorithmic application was in-house developed by the architects, which allowed the change of the modular apartment units quickly and freely during the design process.
The most distinctive element of the building's façade is the white-colored horizontal cornice, the "wing profile", which runs around each level.
This custom-designed and manufactured aluminum structure, curving around the corners is a trademark, a strong design and functional element that emphasizes the dynamism of the building and provides rain protection and shading.
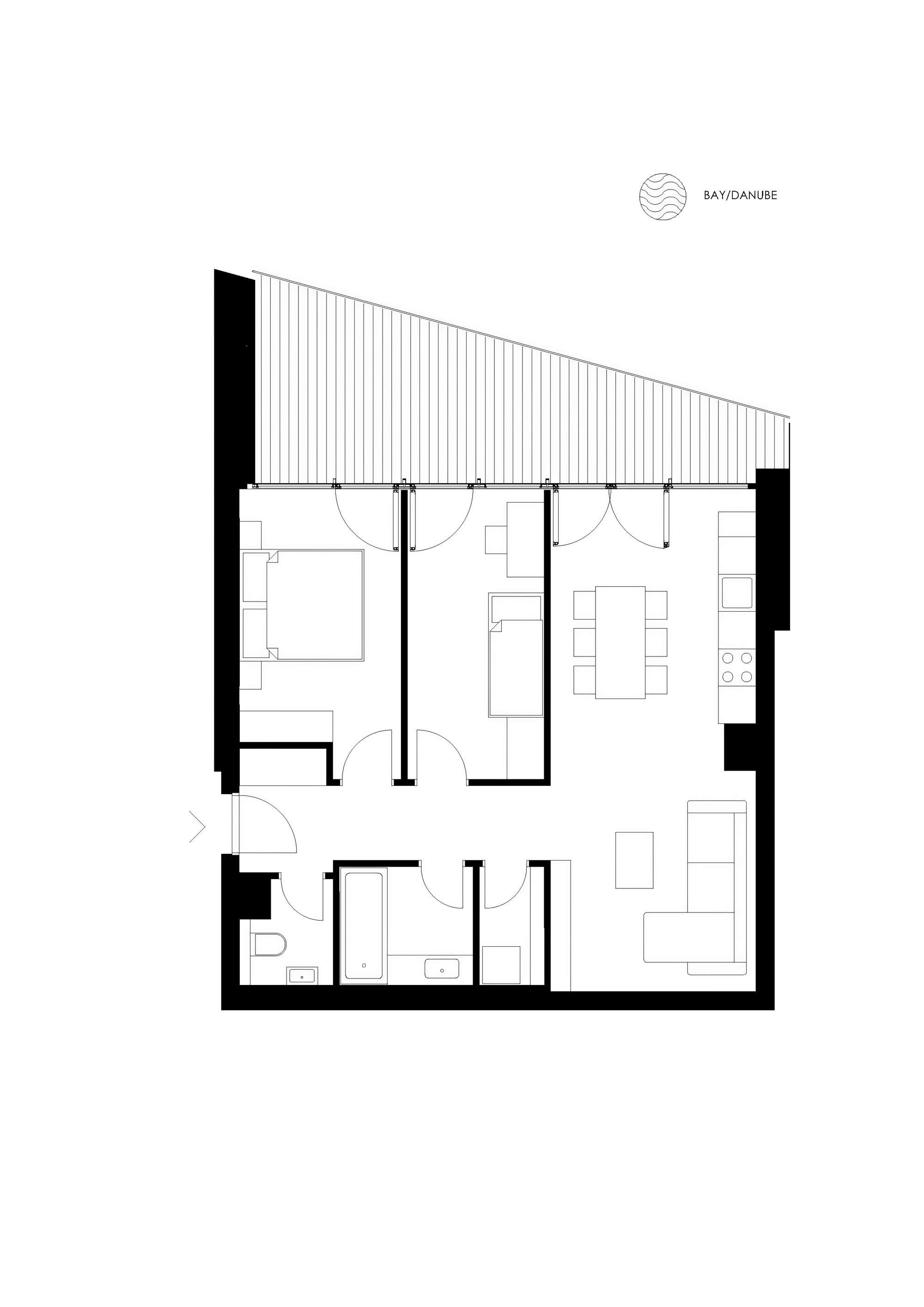
The apartments are arranged in a clustered system around the vertical cores, with a total of nine residential levels, including the ground floor, with typically four or five apartments per level and staircase.
The large dwellings are connecting the two opposite facades, while the smaller dwellings face the south elevation.
The V-shaped 'A' building part next to the Danube and the L-shaped 'B' building part facing the Bay have a total of around 350 apartments, including car storage on the two basement levels.
The basement garage levels are elevated a half level above the ground so that the watertight reinforced concrete structure of the garage also acts as a flood protection structure.
The windows of the apartments have been rotated at 90 degrees to the angle to the longitudinal axis of the building structure, thus the "sawtooth" façade orients the terraces towards the river and the panorama while providing visual and acoustic separation between the terraces of the apartments.
Each apartment has a large, covered terrace space, which is a direct continuation of the interior spaces. The terraces have been designed as outdoor living areas for the apartments, as real utility areas. These well-protected surfaces are less exposed to the weather, therefore are dominated by natural wood as a typical material.
The ceiling, visible from the public areas as well but also dominant when sitting on the terrace, is an aluminum system with real wood veneer, the flooring decks are made of wood–plastic composite.
This gives a warm and cozy feel but also gives an elegant and quality appearance for the occupants. In today’s building vertical staircases typically serve merely as fire evacuation routes, with elevators as tools for practical and rapid vertical movement thus they are enclosed in closed reinforced concrete cores.
It was therefore an important decision to locate the circulation cores in generous and open spaces on the building's facade, where panoramic elevators are moving in glazed towers in the same space as the levitating staircases.
The apartments can be approached from a common area well-lit by natural light, oriented towards the panorama, creating an exceptional journey for all the habitants.
Sustainability has been a priority from the very beginning of the planning process. The most important aspect is that a building of high architectural and technical quality has a longer lifespan and is more economical to maintain.
From an energetical point of view, in addition to the passive energy control role of massing, the building's energy supply needed to be supplied almost entirely from renewable energy.
Cooling and heating energy is provided by air-to-water heat pumps installed on the roof of each staircase core, while hot water is supplied by a district heating system, also based on renewable energy.
Thanks to several other technical solutions, like to use of locally quarried gravel for the rehabilitation of the adjacent FOKA Bay public area, the building is the first and only large-scale residential building in Hungary to achieve BREEAM Excellent certification.


































