Eyemouth Pavilions – Community Centre
ARCHITECTS
Galmstrup Architects
STEELWORK CONTRACTOR
G. Fitzsimmons And Son Ltd
CAD SOFTWARE USED
Microstation
CLIENT
Eyemouth Harbour Trust
QUANTITY SURVEYOR
Cba
MAIN CONTRACTOR
John Dennis Ltd
MANUFACTURERS
Duravit, Envirograf, Forbo, Glulam Solutions, John Dennis & Company, Rockwool, Rationel, Russwood, Vmzinc
PRINCIPAL DESIGNER
James F. Stephen Architects
CONTRACT ADMINISTRATOR
James F Stephens Architects
STRUCTURAL AND MEP ENGINEER
Arup
BUILDING CONTROL
Scottish Borders Council
LOCATION
Eyemouth, United Kingdom
CATEGORY
Public Architecture, Community Center
Eyemouth Pavilions is a new public anchor at the heart of the Scottish fishing town Eyemouth. It is also an opportunity to reinvent the wider harbor area and create a new type of civic space. We were inspired by the strong authenticity of the working Harbour and Conservation Area, and the harbour's active transformation towards a new sustainable marine economy.
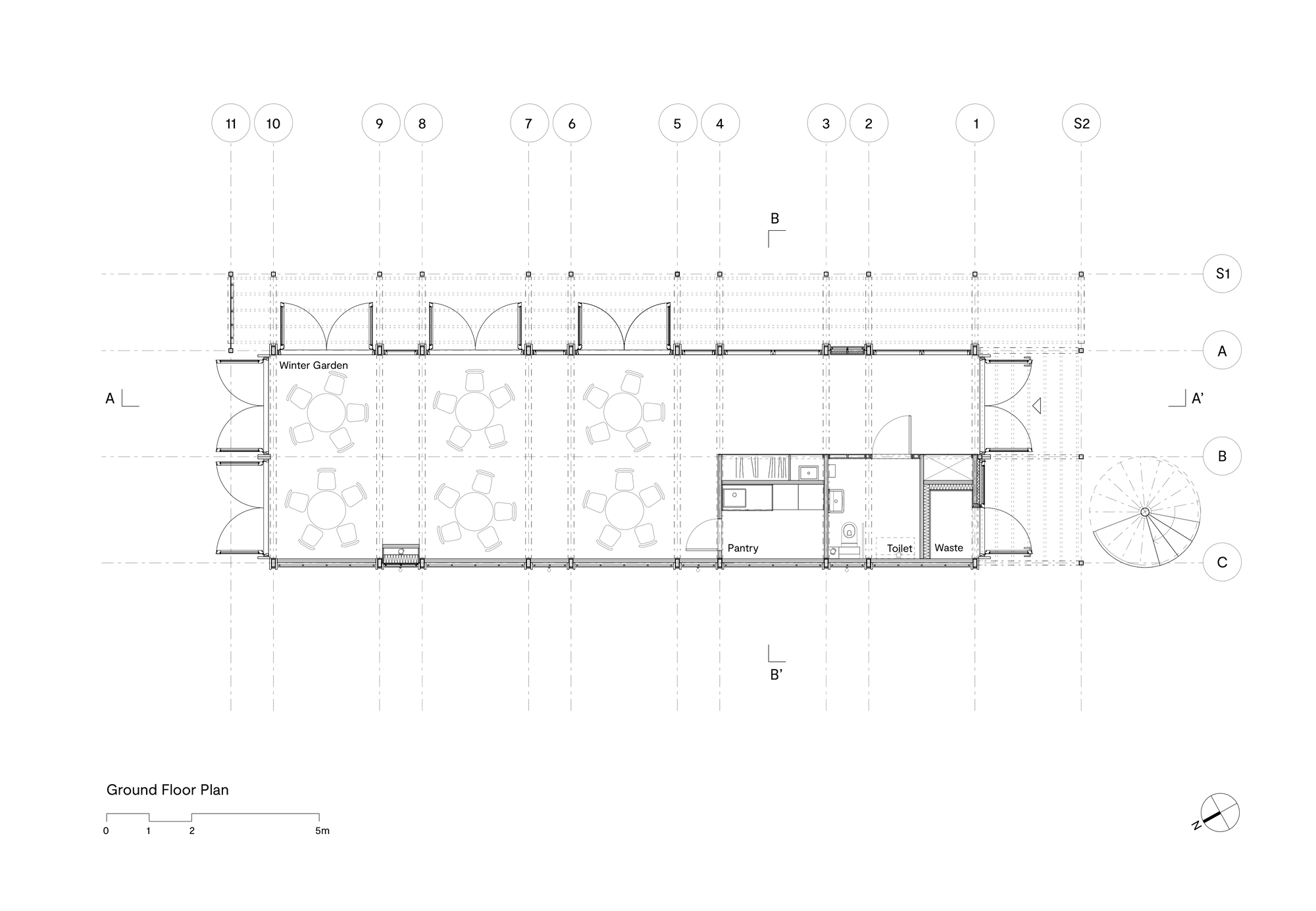
The project consists of a series of pavilions with winter gardens on the ground floor for community use, and self-contained studios for start-up entrepreneurs on the first floor. The first south pavilion is now completed.
The curved zinc roof makes homage to the town's maritime and boatmaking history as well as the traditional gable houses facing the sea. The structure is Cross Laminated Timber (CLT) resting on glulam beams and steel columns.
The envelope is insulated and acoustic regulated by the CLT and high-performance insulation and clad with a ship-lab profile timber on the first floor. The building is naturally ventilated and large openings allow plenty of natural daylight inside.
Overall resulting in a high performance low energy consumption and Co2-friendly construction, alongside a socially sustainable development where people passing by are just as much part of the place as the community activities inside.
Externally a new promenade will connect the natural harbor with the seafront and loop into the old town high street. Interwoven between the pavilions are Sea Gardens underway which are production gardens initiated and co-created during construction with students from the local high school and now cared for by the town’s enhancement group.
CLIENTS' VIEW
The Eyemouth Waterfront Regeneration project is an integral part of our overarching purpose. The innovative redevelopment of what is locally known as the ‘old fishmarket’ site aims to create a place that can help achieve sustainable economic growth in Eyemouth, be welcoming and pleasant for visitors and residents alike, and restore the sense of identity to the waterfront area of Eyemouth.
| Client: Donald Duggan - Chairman Eyemouth Harbour Trust | From the outset, we were blown away by the high level of commitment, professionalism, and enthusiasm of the project team led by Galmstrup Architects. It has been a fascinating journey where challenges were met positively.
Galmstrup Architects took the time to understand the brief fully and how the development would sit within the town, and not just the harbor’s immediate vicinity.
The team ensured this was fully incorporated into the design and construction delivering a stunning, high-quality building, offering maximum flexibility for a variety of uses and delivering a unique waterfront space all year round.
The harbor pavilion is already proving a popular space in town, and we fully expect it will be a catalyst for further waterfront regeneration. I can’t wait to see the buzz it creates as we come into spring and summer when it will be in full use. | Client: Christine Bell - CEO Eyemouth Harbour Trust |
ARCHITECTS' VIEW
We took an urban approach and worked with a long stretch of the harbourfront than the original Old Fishmarket site we were given. The community clearly wanted to open up views and make better use of this central site.
Our proposal was to connect the town center, seafront, and harbourfront as a natural loop within the conservation area. Instead of building one long building, we, therefore, proposed a series of smaller pavilions with gardens and squares in between.
The project hereby gives back large open spaces for civic usage in the town. A place to ‘see and be seen’. A much-needed place for young people to hang out as much as local businesses to cater to the many summer guests.
Typically, community centers already have space and activities in place once they commission an architect. We worked together with our client to explore what activities and functional programs might work for the community and would complement and not compete with existing infrastructure.
Our client took an ambitious decision with this project creating a strong landmark and open community space for their harbor – and it has landed well with the community.
As such, the new Eyemouth Pavilions on the Old Fishmarket site are much more than brick and mortar. It is offering a new type of civic space that will grow and mature with its users over the coming years.
Community building and buildings are important resources for a sustainable and healthy society. Scottish towns and local high streets have become increasingly vulnerable, as larger public and commercial facilities are established in peripheries or between towns.
By diluting the local high streets and eliminating walking from our cities, we become more detached and passive from our fellow citizens. Strengthening retail and leisure facilities in our town centers is vital for local economies and has proven valuable tools for active citizenship. | Architect: Anne Mare Galmstrup – Director Galmstrup Architects |























