Neigles House
ARCHITECTS
Lvph Architectes
LEAD ARCHITECT
Paul Humbert
PROJECT AND CONSTRUCTION LEADER
Delphine Serio, Kevin Salvi
PHOTOGRAPH
Joël Tettamanti, Rolf Siegenthaler
AREA
200 M²
YEAR
2021
LOCATION
Fribourg, Switzerland
CATEGORY
Apartments
The house is located on the edge of the Sarine River, amidst goats, sheep, chickens, and rabbits.
In order to preserve the maximum amount of available land, a small tower is envisioned.
The initial project envisaged two buildings corresponding to the detailed plan of the area.
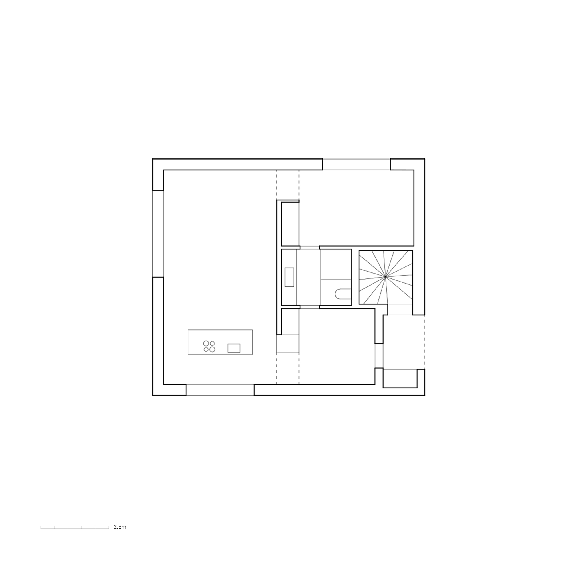
Only one of them was realized. The plan is structured around a central block, housing the bathroom and storage areas.
Three interconnected rooms are organized around this core. Only four windows are present per level.
They open up to the surrounding landscape and blend into the structure.
Made of prefabricated wood, the 3-ply panels are left visible in all rooms.
The regularity of the plan allows for the creation of 1, 2, or 3 apartments.





















