IRH Child Development Support
LOCATION
Fujioka, Japan
CATEGORY
Educational Architecture, Kindergarten, Day Care
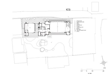
This project is a plan to build new facilities with "child development support" and "childcare support" functions on a site along the front road of an existing nursery.
By creating two places of support in the same location and building along the road from the existing nursery, the goal is to encourage a community of various users and become a place to nurture children in the community.
We created an environment where people can communicate on a daily basis regardless of the purpose of use or generation, and where people can use the space according to their feelings.
The childcare support center is an open space facing the street, and as a local café and childcare support space, it can be used by parents and children attending nursery and child development support as well, making it an easy space to communicate with a variety of people.
The child development support center is open to the community with a view of what is going on inside and with a line of sight and has a varied space that can be used according to the child's feelings.
As a result, an environment has been created in which people can be more positive about child rearing, with parents who are struggling with child rearing naturally having more opportunities to talk with various people and resolve their concerns, and parents who are worried about their children's development feeling less concerned about their children's development because of their children's growth.
The open space facing the street and easy-to-entry design made it as easy for local residents to use as if a real café had been built, making it easier for local residents to stop by on a regular basis, thereby creating a positive cycle of familiarity with a facility that had been difficult to approach.
Many of the child development support facilities are simply interior designed by renovating a part of an existing building and often tend to be closed from the viewpoint of privacy.
These facilities are designed to provide a place for each child to feel at home in various places, and to be conscious of the connection with the local community as an activity environment necessary for children's growth, with good sight lines and ventilation from the street to the playground.















