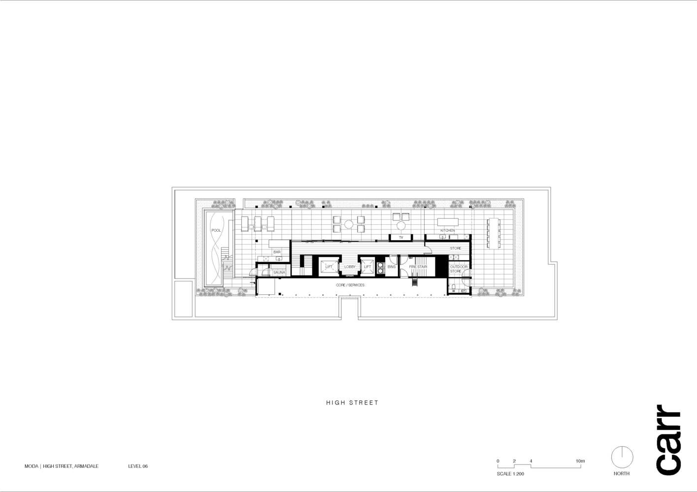
835 High St. Residential Building
MANUFACTURERS
Miele, Apaiser, Astrawalker Tapware, Gibbon Group, Reckli, Signorino
STYLIST
Jess Kneebone
PROJECT MANAGEMENT
Paxpm
ARCHITECTURE AND INTERIOR DESIGN
Carr
BRANDING
Assembly Branding
AREA
9278 m²
YEAR
2022
LOCATION
Armadale, Australia
CATEGORY
Residential
835 High Street creates a new benchmark for medium-density housing by using core design principles, considered apartment planning, and high-end materials.
Site
Located on the busy thoroughfare of High Street, Armadale, the architectural language was approached in consideration of its contribution to the streetscape.
As with all Carr projects, the architecture is not a human gesture by ‘the architect’ but rather one that takes cues from the surrounding context – materializing through scale, rhythm, color, or proportion.
Architecture
Featuring an architectural language of its own, the building is shaped by a distinctive grid pattern.
Every horizontal and vertical frame aligns perfectly from the outside over five levels, one atop the other in a linear pattern.
These applied repeating elements – similar to music or other forms of art where shape, space, color, and texture are used to induce rhythm – give a sense of movement on the façade, which is created by using a well-defined and ordered street wall.
The result creates a sense of place, which aids the building’s identity within the streetscape.
The façades to the east and south are highly refined and detailed, while those to the north and west gradually step back, wrapping around and dissolving the form with the use of the framing. The effect is calmness through consistency and balances through repetition.
Through lush planting, Acre worked to find ways to soften the rectilinear grid of the building, while offering each apartment an aspect of green.
They achieved this by designing climbing structures that over time will see greenery climbing and draping from the large-gridded façade.
This is a building that breathes. The pinnacle is the soaring 13-meter void in the center, clearing a vertical pathway for the private residential lobby.
As each level recesses, the building is punctuated by clear glazing offering sweeping views across Armadale over the city skyline.
In doing so, large terraces reveal gardens and open spaces to further soften the distinctive exterior.
Interiors
The design intent was to achieve a sense of continuity between the interior and exterior spaces.
The static repetition on the facade is in constant conversation with the internal spaces and provides a simple principle of composition.

This affords a sense of coherence and equilibrium between the architecture and interiors. The palette of interior materials and finishes is akin to the external – a sense of order and symmetry.
The texture of the external is brought internally through common spaces and as you enter each apartment that sense is heightened through soft greys and muted tones which helps extenuate the view beyond.
The seasonal change to that view acts as a picture frame.
The apartment planning process was underpinned by biophilic design principles and the desire to provide each home with an axis to external views and ventilation. The resulting ambiance is dramatic.
As you enter each apartment and journey through each room, the omnipresent natural light offers a sense of calming expansiveness.
The building steps back, and the interior planning works in tandem with the external grid, affording many of the secondary spaces Juliette balconies. By having this strong relationship between the exterior and the internal spaces, the interior spaces speak for themselves and take center stage with framed views beyond.
Landscape
For every project, Acre’s objective is to connect residents to nature, and 835 High St was no different.
Working with Carr, the balconies were pushed and pulled to accommodate beautiful garden outlooks from bedrooms, bathrooms, and living spaces.
On the rooftop, Acre designed the penthouse pool and arbors to feel as much like a ground-floor garden space as possible.
The result is a textured variety of plants that spill from planters, combined with overhead greenery that casts dappled shade onto the exposed site.
With time the landscape will merge with the built form, giving a wonderful character and softness to the streetscape. Acre wanted to be smart and creative with their outcomes and feel this project will improve dramatically with age.
Artist
In a natural fit to defer to the rich fabric of surrounding art, internationally renowned artist Anna–Wili Highfield and sculptor has created a 12-meter-high feature piece ‘Bird’ that sees tens of small birds dotted up the walls of the interior lobby space.
The outcome is a dynamic, animated void, created by dancing with light and shadow play.





























