House RZR
ARCHITECTS
Grnx Arquitetos
CLIMATIZATION/AIR CONDITIONING PROJECT
Project: Hpf
MANUFACTURERS
Artefacto, Cls Marmoraria, Castelatto, Drom, Dutra E Palomaris, Divinal Vidros, Ekosgarden, Estilo Dec, K Churrasqueiras, Ldarti, Loja Obra Fácil
STRUCTURAL PROJECT
Mvl
FOUNDATION DESIGN
Mvl
LANDSCAPING DESIGN
Calux
PROJECT/CONSULTING
Club Design
MANAGEMENT/COORDINATION
Grbx Arquitetos
ELECTRICAL INSTALLATIONS PROJECT
Hpf
YEAR
2023
LOCATION
Indaiatuba, Brazil
CATEGORY
Houses
It was with great pleasure that our office took on the challenge of creating a residence for an incredible couple who has been our loyal client from the beginning. This project had a special meaning for us.


The central idea was to design the dream country house, providing seamless integration between the social spaces. We wanted to connect the internal and external environments in a fluid way, thus gaining the spatial perception of a much larger house than the land allowed.
When designing the ground floor, we decided to use concrete latticework elements on the facade to provide privacy and harmonious balance with the blue box of the entrance. We aimed to create a hiatus between the street and the "internal" spaces, with different ceiling heights.
In the foyer, the lower ceiling opens up to the exposed concrete ceiling of the living room, creating a unique atmosphere. Using windows, sliding doors and permeable enclosures such as cobogó provides thermal comfort, cross ventilation, and lighting while ensuring privacy. These are key points for the project.
When the sliding doors are opened, the sensation is a huge and integrated space with a living room, gardens, pool, and kitchen, all incorporated into the ground floor program.

We sought the visual integration of the spaces by choosing finishes that blur the perception of inside and outside, such as the porcelain tiles of the pool and the deck that extends into the living room.
The remaining internal finishes were selected in a neutral palette, enhancing and harmonizing with the collaboratively chosen furniture.
The structural solution deserves special mention, as we faced several challenges that required perfect synergy between architecture and engineering.
The house is supported by a few pillars, with only one visible and prominently shaped like a V.
This pillar supports a span of approximately 12 meters and creates a sculptural element in the transition between the interior and exterior.
Furthermore, it directs the focus toward the cantilevers of the side walls of the house.
These structural solutions also act as frames, framing the external landscapes and enhancing the specially designed landscaping to fill these spaces.
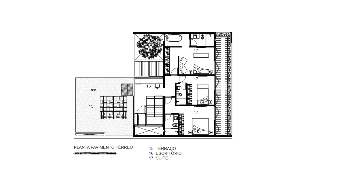
Anticipating the current needs of a home office, we included an office area with an incredible view of an internal tree in the construction, as well as a pleasant terrace to enjoy the late afternoon.

In the master suite, we designed an integrated bathtub with a view of the same tree, providing a relaxing ambiance.
The bathrooms and the winter garden near the vertical circulation areas (stairs and panoramic elevator) have skylights that offer natural light and ventilation, creating comfortable environments.
These skylights also provide a visual transformation with the movement of the sun, generating colors and shadow designs in the house.
The entire roof of the residence houses solar panels for water heating and photovoltaic energy generation, ensuring energy efficiency.
These panels are arranged without affecting the facade's aesthetics. Additionally, the garage has infrastructure for electric vehicle charging.
Regarding sustainability, we implemented a water collection system that is stored in an underground cistern, and used for irrigation and washing.

Furthermore, permeable pavements were chosen to maintain soil permeability in vehicular and pedestrian accesses.



































