35:35 Slope House

35:35 Slope House
77 Studio Architecture
ARCHITECTS
77 Studio Architecture
COOPERATION
Anna Nawrocka, Sławomir Ducek, Agnieszka Osiejewska
MANUFACTURERS
Equitone, Cortizo
LEAD ARCHITECT
Paweł Naduk
PHOTOGRAPHS
Piotr Krajewski
AREA
312 m²
YEAR
2020
LOCATION
Warsaw, Poland
CATEGORY
Houses
The view from this house is simply breathtaking. It has been built on an escarpment by the Vistula River.
“35:35 Slope House” built on an escarpment is the latest design by Polish 77 Studio Architecture studio in Warsaw. The building is an example of the conscious use of unique natural values.
The horizontal block almost grows into the green slope, it also establishes a dialogue with the river, which becomes an important point of reference.
This modern, spacious house is located on the bank of the Vistula River in the central region of Poland. From the plot on which it has been built, there is a picturesque view of the river and the plains of Mazovia stretching to the horizon.
It is these unique features of the surroundings that inspired the owners to choose this place for its construction.
The architect decided to subtly integrate the block of the building into the natural shape of the escarpment.
The individual levels of the house, like earth layers, penetrate the structure of the escarpment, becoming almost invisible from the opposite side of the quay.
It seems that they disappear under the hunched fold of the land. The block blends into the surroundings and becomes barely noticeable from the street and neighboring buildings, providing the residents with a sense of intimacy.
Architecture does not compete with the landscape. It interacts with it, sometimes blending in with the surroundings, other times discreetly giving way to it.
Nature surrounds the building from all sides and even goes up its slope to the roof with a natural garden, from where there is a wide view of the whole area.
Everything in the house seems to be subordinated to an unobstructed view. The block of the villa stretches panoramically along the shoreline and opens with a large glazing to the Vistula River.
And here the most difficult thing seemed to have been achieved - the infinity pool adjacent to the living room and bedroom, from the perspective of the interior, merged completely with the river located 35 m and 35 cm below.
In this way, the effect of the final connection of architecture with the existing landscape was achieved - the immediate proximity of the Vistula River, which seems to almost penetrate inside the house.
In addition, the terrace protruding towards the river, surrounded by the pool water, was suspended in space like a wooden bridge. Hence the name of the building - 35:35 House.
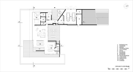
The building’s layout was formed in the shape of letter C, creating a sheltered, secluded zone, necessary due to strong gusts of wind occurring in the open area.
In this way, a patio with a fireplace was created, which is protected from rain and the scorching sun by a sail unrolled on a metal mast. The house has a very clear division of functions.
Most of the usable rooms are located on the middle level with the best exposure to the landscape. There is a living room with a dining area, a kitchen, a study, and a master bedroom with an open bathroom.
The other rooms are located on the lowest level, with direct access to the cozy garden in the escarpment.











































