
House in Alto Grande
ARCHITECTS
Abarca Palma Arquitectos
MANUFACTURERS
Chc, Cubiertas Nacionales, Maderas Lotito, Sudpanel
PHOTOGRAPHS
Andrés Maturana
YEAR
2016
AREA
60 M²
LOCATION
Navidad, Chile
CATEGORY
Houses
A single house located in the municipality of Navidad, VI Region, in the rural area of Alto Grande de Pupuya.
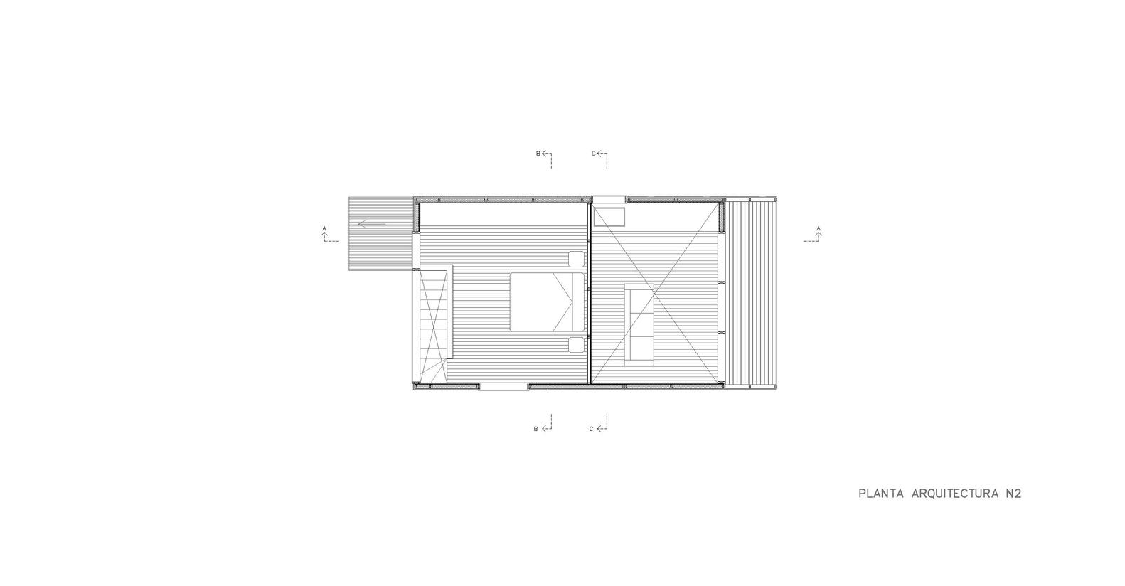
It is a three-level house on a steep slope.
The levels are divided according to the types of spaces within the house, with the common areas of the kitchen, living room, dining room and bathroom located on floor 0, the only bedroom located on floor+1 and the terrace located on the floor-1.
This difference in levels also causes a difference in the volume, generating a tableau-like structure that contains the terrace of -1 and a continuous volume of zinc that wraps the other two levels and that at the same time gives a higher hierarchy of height to the common space which can be understood in the longitudinal section of the house.
The material decisions are taken for this same reason, that is, for the unification of a volume of a single material and also for the relationship with the roofs of the neighbouring rural houses that are visible from the altitude where the house is located and which in turn, visually dominates the entire Pupuya sector.
The house is built with wood carpentry and SIP panels generating modular coordination in all its constructional elements.































