Forschungsbau - Ecap Laboratory Building (Friedrich-alexander-universität Erlangen-nürnberg)
Forschungsbau - Ecap Laboratory Building (Friedrich-alexander-universität Erlangen-nürnberg)
Arge Dichter + Glass Kramer Löbbert
ARCHITECTS
Arge Dichter, Glass Kramer Löbbert
ARCHITECT
Raoul Kunz
FIRE PROTECTION CONCEPT
Hhpberlin Ingenieure Für Brandschutz Gmbh
STRUCTURAL ENGINEER
Krebs Und Kiefer Ingenieure Gmbh
MANUFACTURERS
Geze Gmbh, Knauf Amf Gmbh, Mc-bauchemie Müller Gmbh, Neuform-türenwerk Hans Glock Gmbh, Schüco, Warema Renkhoff Se Sonnenschutz, Wicona
ELECTRICS
Gnuse Ingenieurbüro Für Krankenhaustechnik Gmbh & Co. Kg
CIVIL ENGINEERING
Tiefbautechnisches Ingenieurbüro Glückert
BUILDING PHYSICS
Wolfgang Sorge Ingenieurbüro Für Bauphysik Gmbh & Co. Kg
LANDSCAPE ARCHITECTURE
Egl - Entwicklung Und Gestaltung Von Landschaft Gmbh
LABORATORY SPECIALIST
Deru Planungsges. F. Energie-, Reinraum- Und Umwelttechnik Mb
ARCHITECT TEAM
Johannes Löbbert, Benjamin Villén Paskoff, Michael Nieke, Clarissa Dorsch, Michèle Görhardt, Paul Gössler
PHOTOGRAPHS
Naumann | Friedel Architekturfotografen
AREA
8630 m²
LOCATION
Erlangen, Germany
YEAR
2022
CATEGORY
Laboratory, Other Facilities, Buildings
The detection and analysis of high-energy astro particles and their distant sources set the scientific and technical goal for a new research center at Erlangen University Campus.
The Erlangen Centre for Astroparticle Physics is set up to develop and contribute key soft and hard components for a range of massive international detection programs such as CTA/HESS, IceCube or KM3Net.
The building‘s design has been developed following a successful competition entry in 2017.
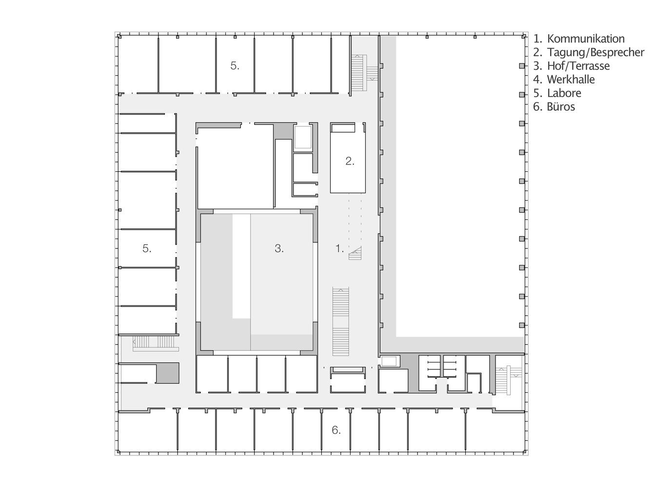
Laboratories, workshops and office spaces are planned to provide a flexible and robust research environment while spatial completion is gained by inserting an open and inviting meeting zone in the center.
Framed by two courtyards on different levels the central staircase spans all three floors, visually and aesthetically connecting various spaces and allowing for easy orientation and communication.
Coffee points, informal desk space and state-of-the-art meeting rooms enhance the main circulation.
This generous spatial quality is continued through the foyer and entry to give a welcoming gesture towards the future campus square in front of the building.
Next to the ECAP two other proposed research buildings turn their „faces“ to a mutual focus, thus creating the new campus square and the entry to Erlangen South Campus.
The architectural design contrasts between a regularly structured façade of almost black aluminum cassettes on all external elevations and a base of white concrete that folds up to form the entry.
Entering the building, the bright mineral surfaces are complimented by wooden inlays to draw the visitor into a light and airy work environment.
Natural light in all relevant workspaces corresponds with a wide view of the green campus around. The design concept is taking a low-tech approach to sustainability.
The gained spatial flexibility will extend the building’s longevity. The compact shape gives it an excellent volume-to-surface ratio, significantly reducing heating and cooling energy input.

























