ARCHITECTS
Ar13
MANUFACTURERS
Blum, Dorset, Jotun, Kohlar, Pluslighttech, Vitra
STRUCTURE DESIGN
Ashok Shah & Associates
LEAD ARCHITECTS
Himalay Goraniya, Hiren Patel, Shivani Chauhan
YEAR
2022
LOCATION
Vadodara, India
CATEGORY
Offices
AR13 is established with the moral of giving back to society through its architectural design. One of the representations is their architectural studio itself which is a convertible space to work, play and congregate in an organized urban patch.
The principal architects of AR13 have their different areas of interest other than architecture and interior; considering the same the space is designed as an open studio with different possible natures.
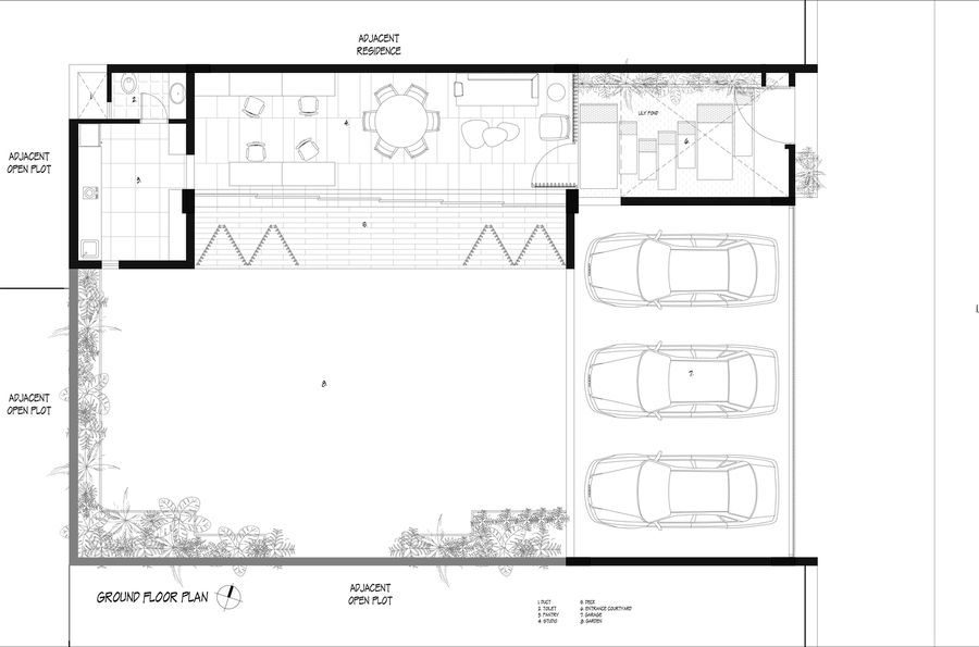
Located on an internal road of a finely defined urban grid of Vadodara, the architectural studio is built in an east-facing rectangular plot with an area of around 2600 sqft shares a common wall with open plots in the west and south direction while the north side abutted with a residential building.
The building is lined up as two linear blocks enclosing the major footprint of green space and setting back to avoid direct south sunlight into the workspace. The building block is juxtaposed in a way allowing liberty to have a maximum usable plot area when opened.
As an initial phase, the ground floor is designed considering the possibility of future extension and the nature of spaces up then. The front elevation is divided into two parts; a pedestal entrance gate and a parking garage gate.
The pedestal entrance in the north-east side is through concrete casted steps on a water body with fishes and foliage. The entrance here is a threshold to calm down senses while entering a creative space from busy roads.
The adjacent parking garage is a multipurpose area with a 30’ wide horizontal bi-fold gate that allows partial privacy when closed and a thoroughfare from the street when opened up, it is designed to serve as a parking space, workshop space, stage, or a back room for an event.
Straight from the pedestal entrance, the studio space is a linear building spatially divided as a waiting area, discussion area, and working space; continuing to the pantry, material library, and washroom as the peripheral spaces.
The enclosed area comprises only walls on the north and west side, else two sides are large wooden openable doors connecting the green spaces.
The basic material palette of wood, concrete, steel, and natural stones makes the interior feels raw, and edgy and belonged in lush green views with a backdrop of Agra red stone and concrete finished compound wall.
The furniture in the studio is designed to serve the ease of work and aesthetic purpose by playing with a combination of materials.
The workstations are designed as a connecting module with a common leg stand and storage with extendable surfaces to open large drawing sheets keeping the desk top intact allowing to flaunt the individuality of each. The building is a journal of experiments the architects wanted to do in material, structure, openings, and finishes.
All the openings are treated differently considering their context and nature, thus all the systems vary from each other in nature and material but eventually, make the whole space as one.
The 32’ wide opening between the workspace and deck is bespoke glass progressive sliding shutters with a frame of the composite material system - wood and steel.
The 32’ wide opening has large wooden sliding folding doors that act as vertical fins to serve as a sunscreen on the south side maintaining light and temperature in the workspace. The parking garage gate is a 30’ wide steel gate and a visual barrier that opens folding up and making a canopy.
The space stays dramatic with an amazing play of light and shadows all throughout the day. The building comprises three different types of slab structures with different methods and finishes.
The garage slab is an inverted beam slab cast with conventional steel shuttering and kept unfinished to keep it a raw semi-open space.
The studio slab spanning 32’ x 16’ with 7” of thickness is cast on a shuttering of handpicked fine pine wood planks to get the natural wooden figures imprinted in the Ceiling.
This slab contains a niche housing the curtain and sliding door. Another is a small pantry area slab that is casted in plywood shuttering with wooden batten grid showing neat and clean finished slab with V grooves.
The studio is still a growing space with blooming plants in the backdrop of Agra red stone lines, rusting rain chains, coming up art pieces and explorations.


















