
Molteni&C Pavilion
ARCHITECTS
Vincent Van Duysen Architects
CATEGORY
Hospitality Architecture
LOCATION
Giussano, Italy
AREA
1146 M²
PLASTER
Matteo Brioni
YEAR
2022
PHOTOGRAPHS
Max Zambelli, Dsl Studio
MANUFACTURERS
Fantini, Molteni & C, Olivari
CREATIVE DIRECTION
Vincent Van Duysen
DESIGN & PLANNING
Massimo Colagrande
CONTRACTOR
Molteni
PROGRAM
Hospitality
LIGHTING
Nemo Lighting
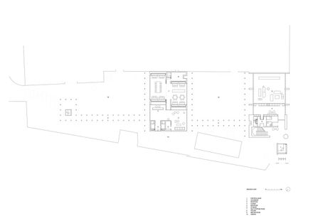
The project comes from the idea of continuing the dialogue between different domestic environments. The transformation of the ground floor of the entire headquarters becomes a linear redevelopment system with the creation of a new courtyard.
Cloister-like, this outdoor space expresses the willingness to accompany all guests from the entrance to the heart of the company showroom.
Columned pathways punctuate and filter the view of the garden where the new outdoor series and future collections, arranged like sculptures, are integrated with the greenery.
Two large horizontal concrete elements, the floor, and ceiling, contain essential dark volumes and emphasize the spaces within.
The idea behind this is that of simple volumes and large glass surfaces of modernist extraction juxtaposed with a careful selection of materials. A pavilion, subtly connected to the main building, reinvigorates the character of the compound thanks to the addition of outdoor spaces.











