
Off Plaza Building
ARCHITECTURE TEAM
Patrice Lebel, David Grenier, Audrey Millette-monier, Philip Staszewski, Olivier Lord, Emmanuelle Dorais,
STRUCTURE ENGINEER
Engineer: Geniex
CATEGORY
Housing, Office Buildings
REAL ESTATE AGENT
Jeff Lee
GENERAL CONTRACTOR
Nicora
LOCATION
Montreal, Canada
YEAR
2019
AREA
1016 m²
MANUFACTURERS
Atelier Gris, Ceragres, Fabelta, Mac, Pierre Mirabel
Since its foundation in 2005, our firm has been looking for a workspace that would allow our practice to blossom.
How to develop a business near downtown with the limited resources of a small firm and the constant increase in rents and taxes? Moreover, with the current boom in Montreal real estate market, the demand for housing allowing families to stay in the city is constantly growing.
In the last ten years, the Rosemont neighborhood has been attracting families who enjoy living close to shops, public transportation, and green spaces. Unfortunately, every year, fewer opportunities are affordable.
To meet these challenges, the firm decided to team up with a general contractor and finance its own office space by building a four-story, 1100 sqm condominium with a mixed vocation that brings together professionals and residential owners.
Charmed by the site of the former Maison du Rotin, a decaying commercial space near Plaza Saint-Hubert, the architects decided to densify the tight 15m x 26m lot by building a multiplex of 8 units including 4 townhouses, 2 penthouses, 2 studios, and 2 shops.
One of the objectives was to create housing accessible to families, it is the dense and unusual organization of the project that allowed his success.
Located on either side of an inner courtyard, half of the dwellings open onto Saint-Hubert Street while the other half faces the alleyway.
In addition to offering natural light and ventilation, the central courtyard distributes all traffic via two exterior staircases that lead to two carriage gates, one in front and the other in the back.
The third floor gives access to the four townhouses and the two penthouses. Residents enter through the living room beside the kitchen and the dining room opening on the alley or the street with generous windows.
Townhouses have an additional level (2nd floor) in which the three bedrooms and their bathrooms are located.
By superimposing the two penthouses on top of the two studios in the center of the building, the architects succeeded in integrating a variety of units despite the regular pattern of the composition and the limited space of the lot. Access to the two studios is directly from the second-floor passageway.
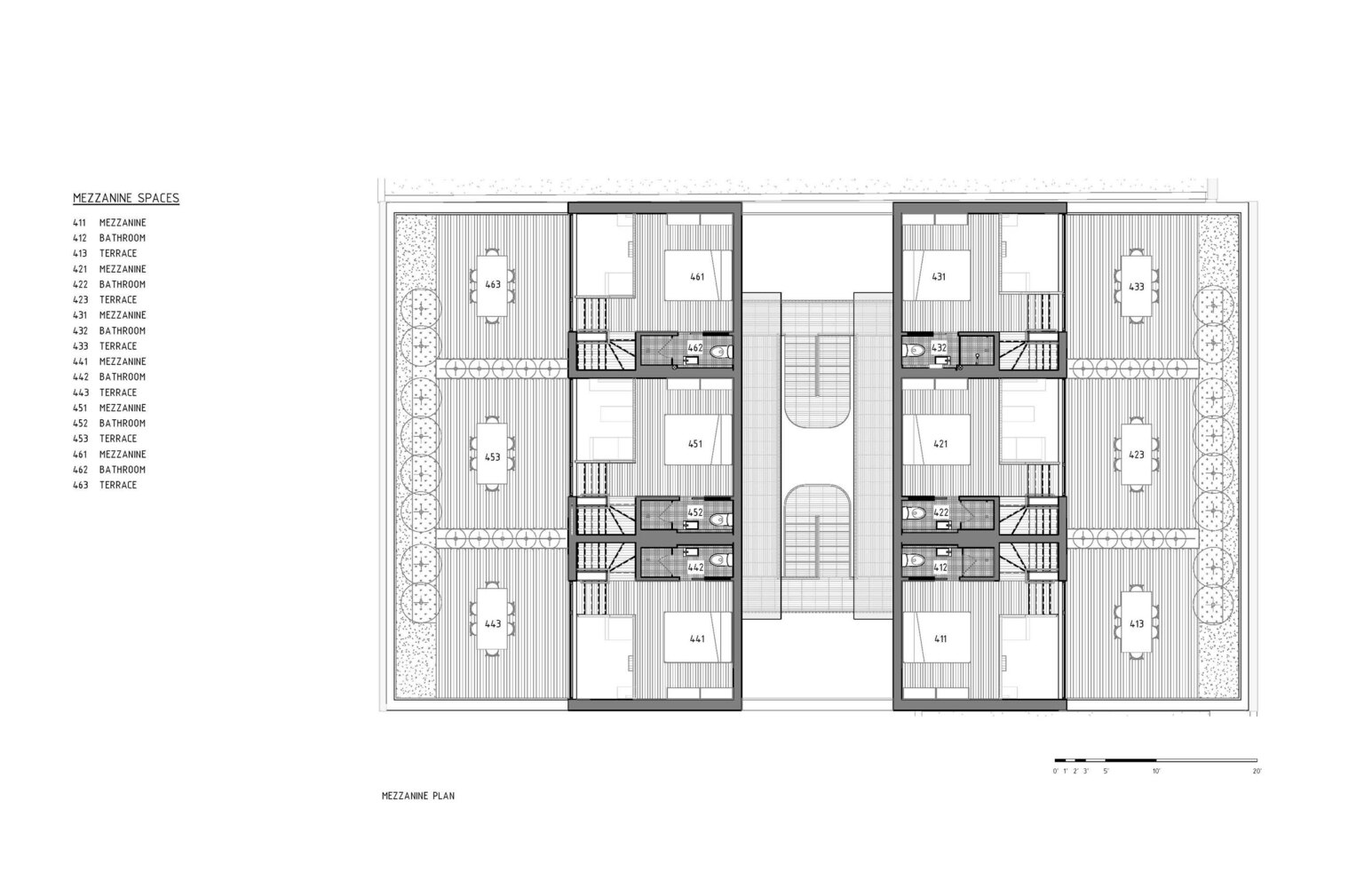
The six upper units all benefit from a bright mezzanine that can be used as an office, boudoir, or bedroom. These mezzanines all open onto a private rooftop terrace whose green roofs and planters offer privacy, freshness, and conviviality.
The double-height opening in the living room adds to the quality of natural lighting in the living rooms.
The district’s requirement to build commercial spaces on the ground floor became an opportunity for the firm. In order to respect the height limits while offering sufficiently high ceilings, the shops are built below the sidewalk level.
Universal access is provided by a long central exterior ramp that also gives access to the residences via the central courtyard.
The Off Plaza is a bold response to the complex constraints of today's mixed-use development. By investing all their creativity in this project, the architects have succeeded in creating inspiring offices while creating quality living spaces for the neighborhood community! Choosing a central location in the city now allows the entire team and its clients to travel by active and/or public transport.
Regarding this aspect, the real estate development of the Off Plaza is a success! Located a few steps away from Plaza Saint-Hubert, the building proves that creating dense housing does not necessarily mean limiting its quality or diversity.





























