ARCHITECTS
Pezo Von Ellrichshausen
ARCHITECT
Mauricio Pezo, Sofía Von Ellrichshausen
CONSTRUCTION
Constructora Natural
STRUCTURE
Sergio Contreras
COLLABORATORS
Emilie Kjaer, Maria Arnold, Isabella Hubsch, Thomas Harlander, Fabian Puller, Olga Herrenbrücks, Torun Stjern, Simon Bohnet, Amelie Bès, Elina Zempetakis, Jeffrey Wu, Jasper Lorenz, Hannah Frossard, Pablo Valsangiacomo
CLIENT
Fundación Artificial
AREA
2400 M²
YEAR
2022
LOCATION
Yungay, Chile
CATEGORY
Houses
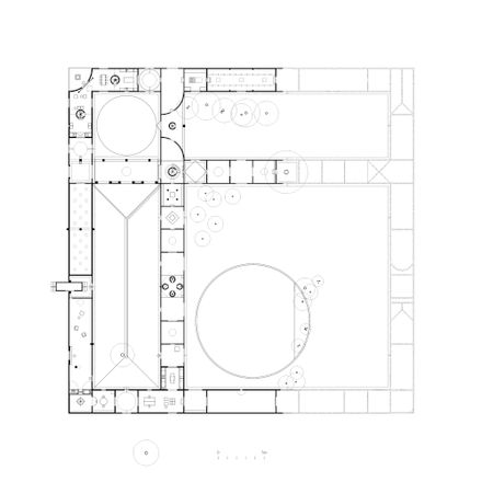
This is a large and small building located at the foot of the Andes mountain range. In fact, it is a collection of twelve different buildings separated by visible seismic joints. To say that this collection of concrete blocks is a house would be too simple.
To say that it is a museum would be too humble. Aside from its secular character, this group of buildings is more of a cloister. It has a severe profile, (once again) a square footprint divided by an asymmetrical cross, with rooms on the perimeter and in its core.
These rooms unfold horizontally around four different courtyards: one, elongated, that follows the natural terrain along with the sunrise and sunset; another, also elongated, oriented to the north and completely flat, with a stream of water that connects a solitary hazelnut and two triangular ends; another, directionless, with a circular flower garden; and a last one that triples its size, with a pond and several old trees.
The name of this intricate structure is given by the size of this largest courtyard, which is equivalent to that of a bullring (called 'medialuna' in the Chilean rural tradition). But names are the least of our concerns.
The spatial quality of each room, both interior and exterior, is marked by unique openings in multiple directions. A tenuous functional division line is thus established: there is almost no contrast between living and working rooms (for painting, writing, or gardening).
In some corners there are nuances of intimacy; in others, weight, emptiness, and opacity become, in a way, monumental. The unfolded format of the system makes evident the flat horizontal extension of the roof, although with an almost imperceptible transition from one to two floors.
The fortified presence of the building - despite the exaggerated lack of thickness of its handmade concrete walls - is divided by horizontal strata of regular cornices. In opposition to these rough surfaces, the walls of the courtyard are crowned by thick eaves, some straight and others rounded.










































