MANUFACTURERS
Hansgrohe, Aluplast, Baba Marbles, D'décor, Diakin, Hafele, Incredible Garden Art, Jjb Bricks, Nirvaana, Prato Kitchens, Tectona Grandis Furniture
HOME AUTOMATION
Dti Automation
ARCHITECTURE DESIGNING, DETAILING AND DRAWINGS
Dhaval Mistry Vidhi, Kapadia
CIVIL
Shailesh Mistry
TEXT BY
Devyani Jayakar
STRUCTURAL ENGINEERING
Ambekar Associates
ARCHITECTURE DETAILING AND DRAWINGS
Nikita Patel, Heena Sata
INTERIOR DESIGNING, DETAILING AND DRAWINGS
Nidhi Shah, Farheen Lanewala
LANDSCAPE DESIGN
K.n.associates
FACADE DESIGN
K.n.associates
HVAC
Advantech
LEAD ARCHITECTS
Narendra Joshi, Pritesh Patel
CHANDELIER
Kaanch By Hemanshi Patwa Shah
A three-level bungalow in Vadodara designed for a traditional Gujarati joint family. This home by K.N. Associates was built with exposed brick and RCC; the structure is contemporary while being rooted in its site and context.
EXTERIOR
Exposed brick, as well as RCC, come together in this home, with pergolas visible on open terraces. An open courtyard is nestled within the C-shaped footprint of the structure.
Semi-open spaces abound, acting as buffers between the living areas and the garden, to be enjoyed in conducive weather. Wooden columns, arches, and brackets salvaged from old structures have been used strategically, on an occasional porch or a balcony, to create a jharokha.
The extravagant detail in their carvings contrasts with the straight lines of the architecture, which is without frills. But in this bold, unexpected gesture, the tones of the old wood and the terracotta of the brick come smoothly together without jarring.
In India, such columns can be sourced from Gujarat, Rajasthan, or even the south. We were careful to choose the ones from Gujarat, to root the home to its location.
ENTRANCE
Wide “floating” steps pass by a metal sculpture of a cowherd. Prancing in joyous abandon, the figure has been frozen in motion by sculptor Avinash Gondaliya.
The quiet detailing on the main door has a diamond-shaped pattern in a wood finish, the handle echoing the same shape in an oversized iteration.
PUJA ROOM
Located just inside the entrance, the puja room is surrounded by a waterbody on three sides and is connected to the family room, separated by an L-shaped brick jali. This insulates it from voices and the sounds of everyday activities which are unavoidable when an extended family shares a home.
LIVING ROOM
The two sides of this room provide an unhindered view of the garden. An antique swing and a jharokha add local flavor, while the furniture is from Tectona Grandis, Ahmedabad. Curtains are from D’Décor, with chandeliers and lamps from Kaanch, Vadodara.
A multitude of masks makes up a seemingly random display on a brick wall. In various parts of the home, textured kota has been laid in a pattern to simulate a carpet; polished green kota teamed with its yellow cousin in a leather finish sweep over the floors.
We were particularly careful about the joints where a brick wall meets one in RCC. The edge of the brick was chamfered, so that you see only one continuous material when you view the wall.
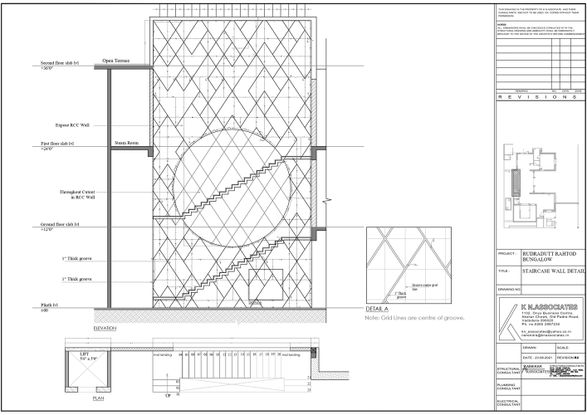
DINING AREA AND STAIRCASE
The pièce de resistance is a large round cut-out in the wall. With a 20-foot diameter, it is set with textured glass in blue, yellow, and green in a geometrical pattern that carries through the diagonal lines of the pattern on the surrounding RCC wall.
Dominating the space, it connects all the floors of the house. The metal supports which bear the weight of the glass, have been clad in wood. Adjacent to it, a 16-foot-tall suspended art installation brings color to the space. Created by Hemanshi Patwa, its lotus leaves are 18-24 inches in diameter and made of blown glass, with a metal structure for support.
FIRST FLOOR
The first floor has three bedrooms; the common space is furnished in reclaimed wood. The double-height space enjoys a large window and is protected from the sun by motorized blinds sandwiched between glass. The master bedroom has a wicker ceiling, brass etching on the bed back, louvered wardrobe shutters, and its own study.
The attached terrace from which the garden is visible, has outdoor seating topped by a pergola. An old Champa tree grows through a cut-out provided in the slab of the terrace.
The brother’s bedroom also has a wood and wicker ceiling, brass inlay on the bed back, and an antique jharokha with a view of the garden, while the children’s bedroom has artwork featuring their own portraits.
SECOND FLOOR
This floor houses a gym, a guest bedroom, and a home theatre. A fun space with exposed brick walls, the floor and ceiling of the home theatre are in wood.
The wall at the rear is painted with monuments of Baroda, while another wall has a collage of children playing with marbles. Although acoustics have been considered there is no fabric paneling or high-tech soundproofing since there was no requirement for replicating sound studio specs.
With sculpture and installations befitting its scale, this home reduces its carbon footprint with the use of local materials to create an enduring, meaningful space. Drama and glamour convincingly rub shoulders with tradition.


























