
Han Pao‐Teh Memorial Museum
PHOTOGRAPHS
Record The Truth, Jeffrey Cheng, Chris Stowers
ARCHITECTS
Kris Yao | Artech
STRUCTURAL CONSULTANTS
Chuang Wei Structural Engineering Inc.
MEP CONSULTANTS
Majestic Engineering Consultants Inc.
AREA
690 M²
YEAR
2022
ARCHITECT
Kris Yao
HVAC CONSULTANS
I. S. Lin & Associates Consulting Engineers
CONTRACTORS
Shyh Auh Construction Co., Ltd.
INSPECTION ARCHITECT
Glen Lu
LOCATION
Tainan, Taiwan
CATEGORY
Museum
CONSTRUCTION INSPECTION TEAM
Jui‐hung Lin
PROJECT ADVISOR SUPERVISOR
Willy Yu, Jun‐ren Chou
DESIGN TEAM
Albert Liu, Naiwen Cheng, Kai‐chih Chang, Megle Lin, Eden Sung, Yuan‐heng Shih
Han Pao‐Teh is widely recognized as one of the seminal figures of modern architectural theory in Taiwan.
In honor of his work and contributions to the arts field, a memorial museum at the Tainan University of the Arts, an educational institution established by Han himself, was brought forth to house and display his collections.
As an embodiment of Han’s take on museums and values of education, the memorial museum seamlessly merges the exhibition and teaching spaces together.
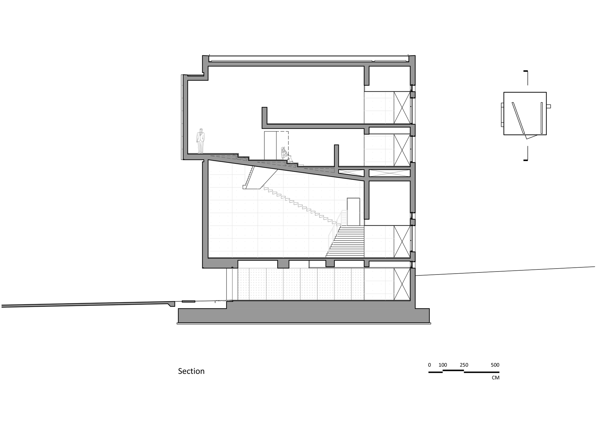
Abiding by the architectural concept of ‘a cube within a cube’, the simplicity of its geometric configuration brings great strength and power to its metaphoric meanings ‐ multiple faces of the two cubes’ collision points to Han’s many faces of knowledge; and the robust quality of architectural concrete refers to his indomitable spirit.
In terms of spatial arrangements, visitors enter the building from a low‐rise stairs above the reflecting pool to the side of the cube.
The main student exhibition space, an impressive 13.5-meter tall space is pleasantly intruded by an imposing cubic mass, as if untouched by the law of gravity.
The floating cube holds the ‘Han Pao‐Teh Permanent Exhibition Room’, a two‐story, auditorium‐like space that diagonally protrudes a little from the larger cube.
The rotated cube caused a split in the wall where light ferociously came through. The sharp contrast of light and shadow creates a melodramatic atmosphere in the tall exhibition space.
The large window with a view of the greenery leads the visitors to the theatrical staircase traveling between the interior and the exterior on an ascending counter‐clockwise journey.
Standing on the overhanging stairs outside the building, visitors can look back at the scene where they came from, then make a turn into the ‘Han Pao‐Teh Permanent Exhibition Room’.
A narrow, gorge‐like path draws an end to the ascending journey and brings visitors to the top level of the building.
This memorial pays homage to the late Mr. Han Pao‐Teh, a revolutionary architect who left a tremendous impact on Taiwan’s culture and education in both the arts and the architecture field.
In 2015, Han’s family commissioned Yao to design the Han Pao‐Teh Memorial Museum on the campus of Tainan University of the Arts. Han was greatly involved in the design and founding of the university and took the pivotal role of its first superintendent.



















