House with Hooked Multi Level Crossing
PHOTOGRAPHS
Takahashi Nao
AREA
104 m²
MANUFACTURERS
Ioc, Porcelaingres Gmbh
LEAD ARCHITECTS
Ihara Masaki, Ihara Kayo
STRUCTURAL ENGINEER
Komatsu Hirotoshi
CONTRACTORS
Kikuhara
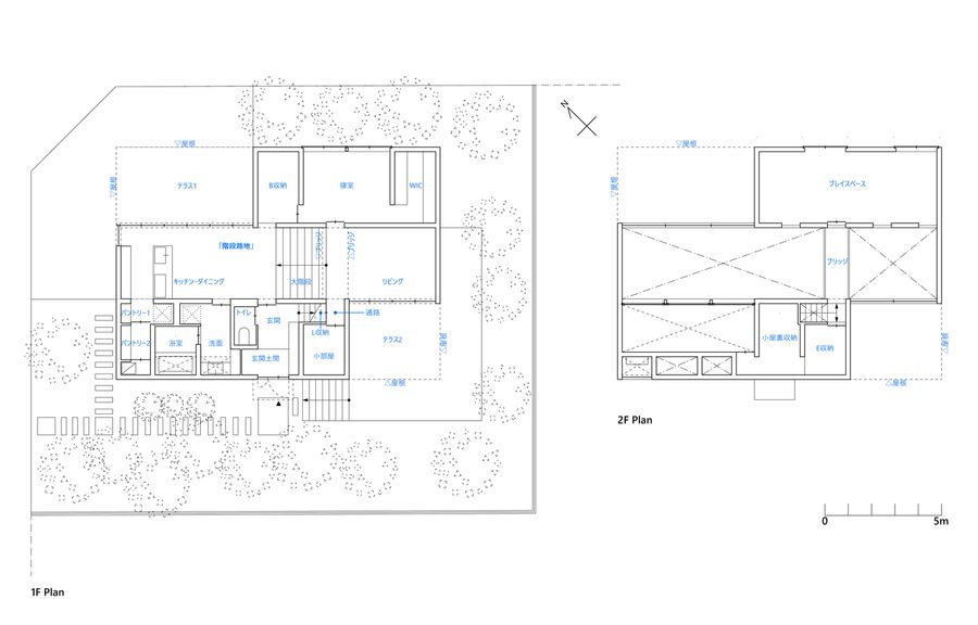
Visible or not visible - This is a house for a couple and their children on a corner of a residential zone in Miyoshi City, Aichi.
The front road of the house is used by the people of the community as a space where neighbors enjoy their daily chat and children’s playground.
Considering the environment surrounding the house where one could constantly feel the presence of someone or being watched, we usually close ourselves inside the house.
Instead, we tried to create a house with a hook-shaped open space that crosses laterally and vertically to form visible and invisible surfaces, where we could keep an adequate distance and connection with the surroundings.
Stepped Alley and Crossing Bridge - The corner site is around twice the size of that compared to the surrounding houses, and we decided to avoid giving an oppressive feel and meeting the eye of our neighbors.
Consequently, we embedded a half-story of the 1st floor underground, arranging two building masses and an open space under a single roof, of which the height is 1.5 stories above ground.
The open spaces: dining kitchen space on the same level as the front road, a two-story atrium living space below the grand stairs, roofed terrace spaces on the north side of the dining space and on the south side of the living space, become a hook-shaped (Z-shaped) alley space which half of the alley is interior while the other half is outside space.
We arranged two building masses diagonally, a southwestern block of sanitary spaces on the 1st floor and a northeastern block of the master bedroom and 2nd-floor playroom (future children’s room), and built a bridge between the two masses that accesses the playroom.
We came to think that the comfortable distance between the kitchen and living spaces, passings on the bridge, relaxing on the grand stairs, and natural light and wind coming from the two terraces created by the lateral and vertical layering and crossings of the hook-shaped circulation can change the open space to an active “stepped alley” from what used to be just a leftover space between the two masses.
The central “stepped alley” that acquired vague visibility and connection to its depth became an invisible “back street” from the city while becoming a “main street” between the two building masses inside the house.
We expected that it would become an intermediate area that shows a bilateral character according to one’s standing point.






















