The House of Lights
INTERIOR DESIGNER
Prasanna Parvatikar
LANDSCAPE DESIGNER
Prasanna Parvatikar
STRUCTURE ENGINEER
Prasanna Parvatikar
LEAD ARCHITECTSLEAD ARCHITECTS
Prasanna Parvatikar, Roopashree Parvatikar
MEP
Cubism Architects
LIGHTING SUPPLIER
Lumination
Cantilevered planes and projected volumes fulfill the demand for a sense of openness within the enclosure. Brick and concrete are exposed on the elevation to emphasize the character of the house.
To allow penetration of natural light and fresh air, a clean composition of internal volumes and voids was designed which also enables the spaces to flow into each other while merging with the outdoors.
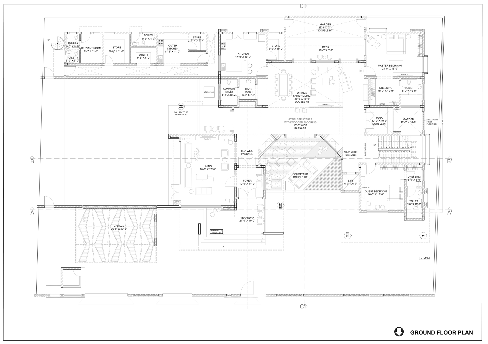
The house is in a north-facing site and is essentially a two-story structure with courtyards and light wells.
The route from the foyer directly leads to the passage which flows to the kitchen, dining, and family living spaces with the formal living space to the left and glazing on the side walls to give a glimpse of the open-to-sky green courtyard to the right.
Beyond the kitchen to the left, are located the maid’s quarters and a table tennis room. An artificial pond followed by seating with a lush plantation looks back towards the house.
At the first story level, a master bedroom and two other bedrooms in addition to a home theatre and a gym room are linked by a wide corridor.
The focus is to design a space that allows the client to live a relaxed open lifestyle with verandas, terraces, and a courtyard.
The house embodies a hierarchy of privacy with a public facade that seeks not to attract undue attention and shelter its occupants while opening out to courtyards and terraces. It acts as a screen and provides calm and protects from the frantic pace of life in the city.
The entrance to the home is a space built with green landscaping and stone. The addition of exposed concrete blocks along with the plantation serves as a visual treat as they lead up to the main porch.
The wooden ceiling in the sit-out area and the raw textured flooring blend with the landscape beautifully to provide a stunning experience to the user.
The union and subtraction of geometries create an interesting play of lights and shadows, dramas in solids and voids. The entrance foyer has a mild colored background with the bright mustard seaters really brightening up the space.
The foyer visually leads up to a feature wall with marble accentuated with wall decors to welcome people upon entering the house. The foyer leads to the wide passage that flows into the other spaces of the home.
The house is designed where every space was able to relate to nature and the exterior. The corner space is chamfered to provide a view of the garden. The double-height dining hall provides ample natural light with two attractive garden spaces on either side offering a multitude of spatial experiences for the user.
An opulent ambiance is created with the use of both marble and wooden flooring. The rich blue fabric of the dining chairs contrasts and complements the contemporary palette used throughout the interior spaces.
The family living space is a light-filled space, double height for an expansive view with a small garden space filled with lush plants as the backdrop. The staircase which is cladded each with wood and marble for the two alternating risers gives access to the upper floor.
The skylight on the ceiling above with wood finish frames matches the wooden steps and breaks the monotonous white ceiling. By placing a large mural of rich colors of red and blue hues contrasts and co-relates with the interior spaces and adds character to the space.
The skylight open present in the toilet area along with plants makes the space bigger and provides the user the feel of calmness and sophistication. Natural light flowing through from the sky adds on to the patterns created by the walls and flooring.
The garden space at the south corner of the site features a water cascade wall that fills with splashing water sounds thus creating a serene environment for enjoying one's evenings. This space is also double heightened with a balcony overlooking the garden from the first floor.
The stone features add a sense of exposure. The west end of the site is filled with an artificial koi pond with a lush plantation surrounded by it. The deck area provides access to the table tennis room enclosed by glazed sliding doors.
The courtyard space is a perfect area for having a relaxing time with family and being close to the greener surrounding. The seating space around the garden area is surrounded by lush plantations and water bodies contributing to the creation of an ambiance with nature.
A swing is installed in the garden at the east corner of the site flanked by plantations. The swing is placed in a way that offers an unobstructed view of the building blending in with the garden through floor-to-ceiling windows.
The open-to-sky court with double height has creepers climbing through and around the grill, with a view out to the landscape that offers a calm aura for the user utilizing the space.
The double-height courtyard with plantation and open to the sky really opens the space and is aesthetic to the eye. The careful placement of the custom-made curved seater in contrast to its surrounding catches one's attention.
The grills with several patterns and bricks spread the climbers and create a natural visage and its shadows create various patterns throughout the day on the floor.





























