YEAR
2015
LOCATION
Rue de Lourmel, Paris, France
TYPE
Commercial › Retail, Educational › Nursery, Government + Health › Aging Facility, Residential › Apartment Multi Unit Housing
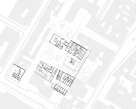
The project is located in the heart of Paris’s 15th arrondissement, on the corner of rue Lourmel and rue de l’Eglise.
The plot, formerly the property of France Télécom, was previously occupied by a disused factory.
The project is composed of three buildings, each comprising two distinct programmes, with a total surface area of almost 11,000m²:
- 30 social housing units and a large commercial unit, - A shelter and 24 social housing units, - A retirement home with day centre and crèche.
In these three edifices, the project explores the question of the picturesque, but not the usual, superficial picturesqueness mimicking the complexity of contemporary cities using formal artifices and façade styles.
Instead, the project explores the capacity of strong typological variations to create the genuine complexity necessary on such a transformation scale.
The project therefore involved a detailed examination of the intrinsic typological elements of each edifice, stemming both from their different programme combinations and each construction’s distinct situation.
As a result, the three edifices construct a picturesque system interacting powerfully with the extremely heterogeneous architecture of this part of Paris’s 15th arrondissement.


















