30 passive Housing Units
ARCHITECTS
LAN Architecture
SIZE
10,000 Sqft - 25,000 Sqft
STATUS
Built
BUDGET
$5m - 10m
YEAR
2014
LOCATION
Paris, France
TYPE
Residential › Multi Unit Housing
Bordered by rue des Orteaux, rue de Fontarabie, and the Passage Fréquel, the Fréquel-Fontarabie block is the last stage of the development of the mixed development zone of the la Réunion neighborhood.
This effort has sought to reduce the visible level of inhabitability, build new housing, value existing resources, and design nearby public facilities in an effort to create quality public spaces.
The project to build thirty housing units has pursued a dual goal: to reconstruct the older urban fabric through small interventions within an overall framework of sustainable development.
Located at the edge of the former village of Charonne, the Fréquel-Fontarabie block is a palimpsest that reveals an older layout of small, rather elongated parcels.
There are also traces of a “Faubourg” type of architecture, characterized by low-slung buildings consisting of urban houses situated at the edge of their parcels, with an interweaving of alleys, courtyards, and pedestrian walkways.
At the corner of rue de Fontarabie and the Passage Fréquel, one can see the vestiges of this small-scale, private allotment of land. Today the neighborhood also includes vast housing complexes that sit on much larger parcels.
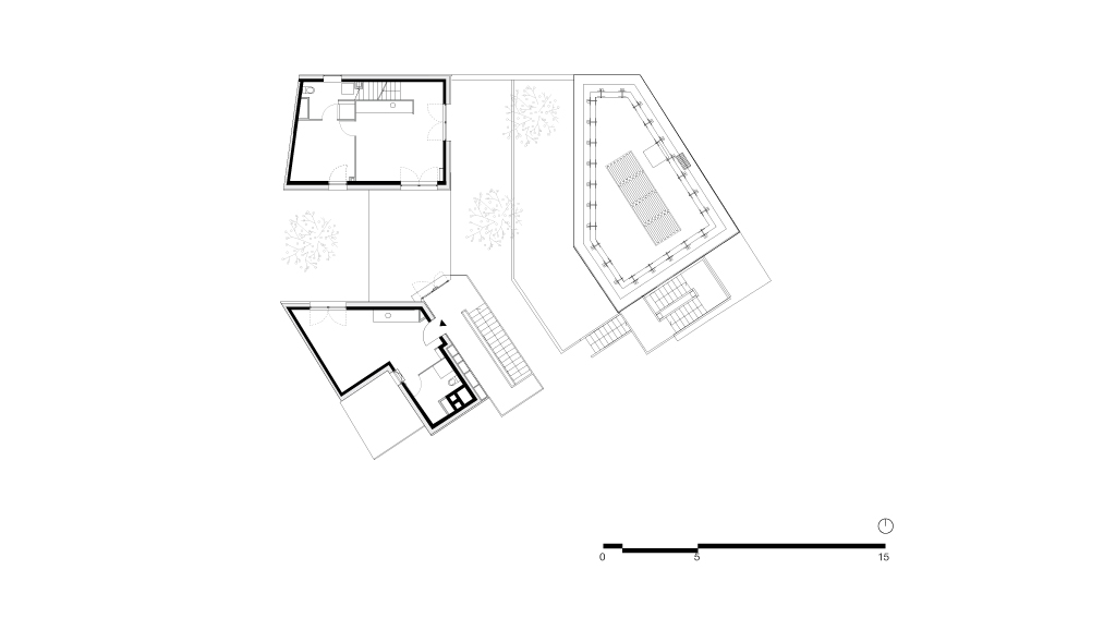
The project to build thirty housing units is separated into four lots across the block. It aims to reconstruct the urban fabric by drawing inspiration from the old structure and type of building.
Although the four lots of the project belong to the same program (public housing with community activities or a child services center on the ground floor), their role in the urban development of the area differs according to their location: while lot 6A, which leans against a five-story existing wall, and lot 6B demarcate the edge of rue de Fontarabie and close off the small square, lot 6C echoes the existing constructions in its scale and balance between fullness and empty space. Particular attention was paid to the shared spaces, which include the hallways, courtyards, and stairwells, especially to their size, lighting, and materials, all in order to transform them into places of life, in the manner of the Faubourg style of architecture that characterizes the eastern parts of Paris.
Thus, lot 6B has a stairwell that is naturally lit by a large picture window, which in turn renders the stairwell visible from the street. Lot 6C is made up of two small volumes of two to three housing units each that surround a partially shared, partially private courtyard.
A picture window at the end of the alley allows one’s eye to jump to the central garden area. Lot 3, at the end of the parcel located at 35b rue des Orteaux, is split into two equal volumes separated by private garden areas.
The stairwells and the galleries are on the outside, which provide the residents with a view that sweeps across the entire block in all its density. All of the lots sit around the garden. The buildings are three to four stories tall, but lot 6A has five.
The two upper levels are set back to render it harmonious with the adjacent building and help minimize the overly monumental character of the whole block. The very favorable, overall orientation of the façades creates a large opening into the small square and the garden reserved to pedestrians.
The architectural style put a premium on sobriety: the facing of the façades is a thermal cement double wall that has been tinted black for lots 6 A-B-C, and for lot 3, a siding in larch.
Folding steel shutters along the south and west-facing façades of lots 6 A-B-C allow one to either filter the natural light, or to create more privacy.
The wooden window frames (sills, jambs, and arches) soften the black, rather closed façades that look out onto rue Fontarabie. The building’s morphology and materiality distinguish the character of each individual building. The design of the façades limits energy loss.
The northern façades, pierced by small openings that illuminate the bedrooms, are rather closed, while the south-facing façades look mostly out onto the garden and thereby provide an almost panoptic view.
The four lots are certified according to French sustainable construction standards (BBC 2005, option Effinergie et Cerqual H&E, Profil A).Balconies extend the apartments’ living rooms. Metal shutters allow for the filtering of natural light. Solar panels on the roof provide energy to the building.
































