YEAR
2014
LOCATION
Tokyo, Japan
TYPE
Residential › Private House
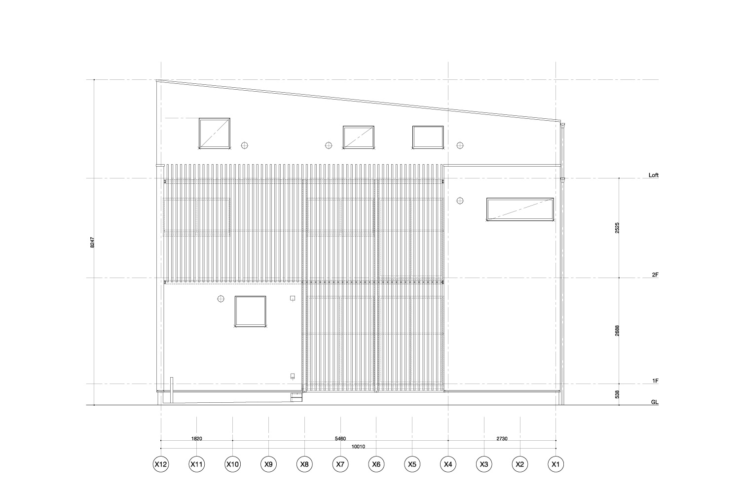
This house is on a site located in a high-traffic area, surrounded by residences on both sides and directly behind.
To create privacy, the plan consisted of designing a large wall that would block the line of sight on the roadside front, and mounting an elongated box extending east-west.
The bedrooms were arranged on the south side, where large windows were centralized to take advantage of the sunlight.
The front wall and the building were connected by a louver, and the in-between space was made into a deck and a balcony.
In contrast, the north side was designed with narrow, slit-like windows which makes the building appear to shift its eyes.
Next to it is an open living room and a kitchen-dining area; thin stairs made from steel are placed in such a way as to create a gentle separation between the two spaces.
This stairwell continues to the loft, and provides lighting to the first floor. The second floor consists of a bathroom, toilet, and bedrooms, and leads directly out to a balcony.
























