
Dalias House

Dalias House
Grupoarquitectura
YEAR
2015
LOCATION
Mexico City, Mexico
TYPE
Residential › Private House
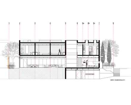
The house consists of two separate highly geometric volumes made of limestone Moca Fino that binds with a glass with wooden pergola double height general lobby of the house where all the spaces are attached.
The volumes are too much closed to the outside and almost entirely open to the gardens and terraces facing south and west to capture all the sunlight in the pool and terraces, so we designed some aluminum sunshades and we can find an air free shaded seating area.
The house was built with a mixed system of concrete and steel structure system that allowed us to clear 14 meters wide open without support; with the idea of integrating the outdoor to the indoor spaces.
The house has very neutral colors in their volume since all this lined inside and outside Beige Limestone and floors are of absolute black granite completed with leather finish.
This allowed us to apply colors and varied textures on furniture, rugs, in addition we thought that actually the gardens have all the colorful.
All the furniture is imported and includes brands such as Felxform, Ceccotti, Paola Lenti, Meridiani, Gervasoni, Lema, Porro, Modulnova, Maxalto, Casa Milano.
Felxform, Ceccotti, Paola Lenti, Meridiani, Gervasoni, Lema, Porro, Modulnova, Maxalto, Casa Milano.
In terms of sustainability, the house has an optimal orientation for all spaces, so in matters of temperature, it is very comfortable, all the windows are Low-E.
We have a system of recycled wastewater for irrigation and a system of several filters which are state of the art for water purification.
All electrical systems in the house are automated, including lighting, audio, video, security, heating, blinds, etc ... .

Customers have always trust in us and gave us total freedom for all designs, making the process very smooth and fast.
We can say that it is of the very few projects that we have developed in that absolutely changed anything from the first draft to the delivery of the house.




































