
Towada
TYPE
Cultural › Cultural Center, Educational › Nursery, Hospitality + Sport › Restaurant
PHOTO
Kenta Hasegawa (18)
STATUS
Built
YEAR
2014
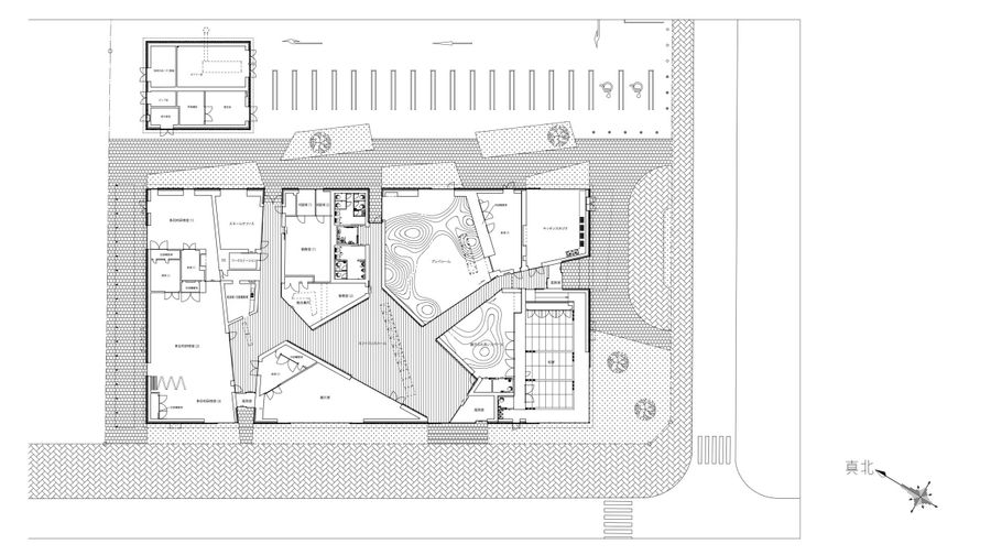
This wooden building was constructed as the city’s community center for people to gather.
We repeated the roofs for the façade so that it could merge into the neighboring townscape of small houses.
On the exterior wall, wainscot panels are applied with spaces in between, and it expresses a warm and friendly face to the street of the land to the north.
The street in front of the building actually extends into the interior, and is given the name “Michi-no-Hiroba (plaza for the street),” around which a children’s playroom, cooking studio and tatami room are arranged.

T +81 3 3401 7721 F +81 3 3401 7778
Kengo Kuma & Associates 隈研吾建築都市設計事務所
2 Chome-24-8 Minamiaoyama, Minato City, Tokyo, Japan 〒107-0062 東京都港区南青山2-24-8 BY-CUBE

























