PHOTOS
Gonzalo Viramonte (1)
TYPE
Residential › Multi Unit Housing
LOCATION
Córdoba, Argentina
SIZE
3000 Sqft - 5000 Sqft
The projects is locates in Los Carolinos Neighborhood , in the northwest of the city of Cordoba.
In a well established residential area, away from the downtown area. It is a responds to current housing needs.
On a lot portion of 22 mts by 36,5mts, and depending on the construction restrictions for the area (significant side and front withdrawals).
The place has a steep topography on the back, that reduces significantly the surface of usable backyard.
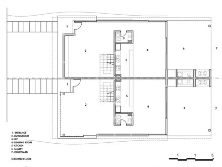
Each unit consists of a ground floor structured around a central bank containing services and organizing independent social roles in the project.
Inside / outside connections where emphasized, through the use of sliding floor to ceiling carpentry.
Upstairs, by the street, secondary bedrooms where distributed.
The master suite owns a terrace of significant dimensions that emphasizes its relations with the outside.
The construction presents itself with pure lines and volumes. Making it appear from the outside as a single unit.
The use of stone and white walls as unique materials, seek to simplify the architectural language. Glass carpentry and railings reinforces the concept.
















