Uppgrenna Naturehouse
YEAR
2015
SIZE
0 sqft - 1000 sqft
BUDGET
Unknown
LOCATION
Uppgränna, Sweden
ARCHITECTS
Tailor Made Arkitekter / Greenhouse Living
ARCHITECT IN CHARGE
Fredrik Olson
AREA
520.0 Sqm (200 Sqm Greenhouse)
CLIENT
Bodil Antonsson
PHOTOGRAPHS
Ulf Celander
PLANTBEDS/SEWAGE/CONTROLLER
Anders Solvarm, Ecorelief / Greenhouse Living
PROJECT MANAGER/CONTROLLER
Niklas Dahlström, Darking / Greenhouse Living
UPPGRENNA NATURE HOUSE
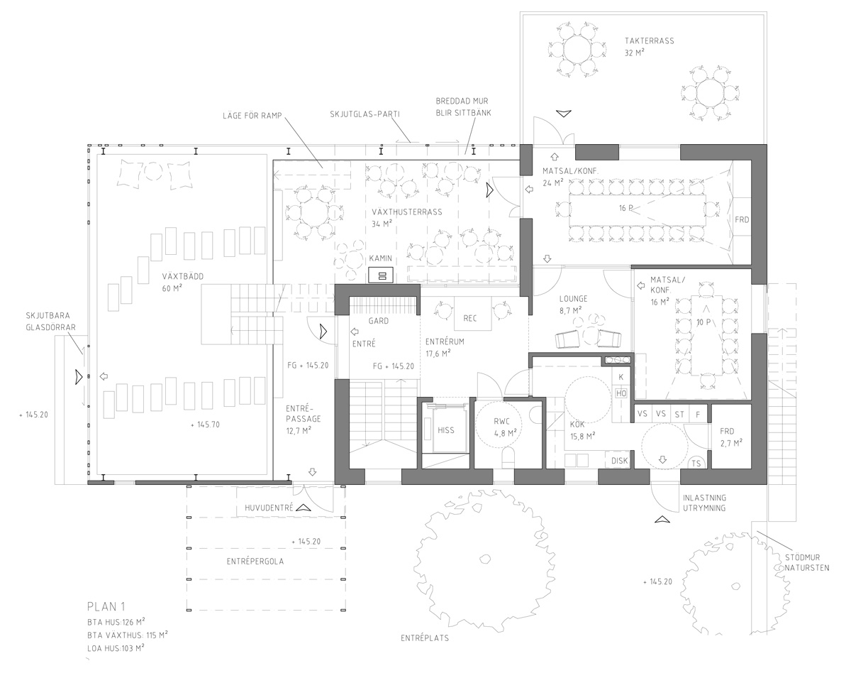
A conference/cafe/event- building in Uppgränna, Sweden. An existing red barn was demolished and replaced by a modern building with ground floor partly submerged in the slope.
The upper entrance level consists of an insulated building partly surrounded by an unheated greenhouse that extends over the entire roof.
The greenhouse includes room for plant beds and shelter terraces with expansive views of Lake Vättern and has a climate comparable to that of Northern Italy.
The exterior is portrayed with inspiration from traditional Swedish barn houses, with its simple doors and shutters. All windows and doors fitted with shutters in a red wooden panel wall. This adds dynamics to the façade and reduces heat radiation when the house is not in use.
SEWAGE RECYCLING SYSTEM
The greenhouse allows for a closed local loop of recycling sewage waste. Large plant beds cleanse and take up nutrients in the wastewater, converting these into fruit and vegetables. The house does not require connection to the municipal sewage system.
Living in a greenhouse encourages a sustainable and non-toxic lifestyle. It becomes very clear why you should not emit pollutants in the environment, as it returns to your own recycling system.
THE NATURE HOUSE CONCEPT
The Nature House concept (or Naturhus in Swedish) was developed by Swedish architect Bengt Warne in the 1970¨s. The houses consist of an insulated core - a living area, that is surrounded by a climate shell - a greenhouse.
The greenhouse sets the inner core temperature to a warmer climate and provides sheltered "outdoor space" from the cold northern winter. It gives you the possibility to grow plants from warmer climate zones and preheats air for ventilation.
The Nature House concept means low energy consumption, environmentally friendly building materials, solar cells and a local sewage recycling system with plant beds.
The vision is to create self sustainable housing that produces food, instead of waste. Houses that generate energy, instead of only consuming it and, ultimately, living spaces that induce reflection and learning thus influencing the behavior of inhabitants towards sustainability.
TEAM
Tailor Made architects is operated since the winter of 2013 by Fredrik Olsson (Architect SAR / MSA).
The Agency started from the desire to maximally focus on the development of the Nature House Concept, a strong personal interest since several years.
We are simply an architectural firm with a passion for sustainable architecture and greenhouse accommodation. Tailor Made arkitekter is a part of the consultancy group Greenhouse Living.
GREENHOUSE LIVING
Greenhouse Living is a consultancy group offering advice and help to realize all the different parts of a Nature House project, including architecture, engineering, energy technology, sewage recycling systems and overall guidance.
To act as a support during the entire process from idea to implementation. Greenhouse Living consists of; Ecorelief (greenhouse expert, plantbeds/sewage), Darking (project managing, structural engineering), Emulsionen (environmental engineering, solarcells), Tailor Made arkitekter (architecture).

















