
Valby Machinery Halls - Assembly Hall
FIRM
C.F. Møller Architects
TYPE
Commercial › Office , Cultural › Hall/Theater , Residential › Multi Unit Housing
STATUS
Built
YEAR
2018
SIZE
100,000 sqft - 300,000 sqft
CLIENT
Phase 1: De Forenede Ejendomsselskaber (Dfe), Phase 2: Jørgen Friis Poulsen
ADDRESS
Valby
LANDSCAPE
C.f. Møller Landscape And Schønherr
LOCATION
Copenhagen, Denmark
The Assembly Hall is a former industrial hall, located on an old industrial site in Valby, which has now been transformed into the lively district of Valby Maskinfabrik.
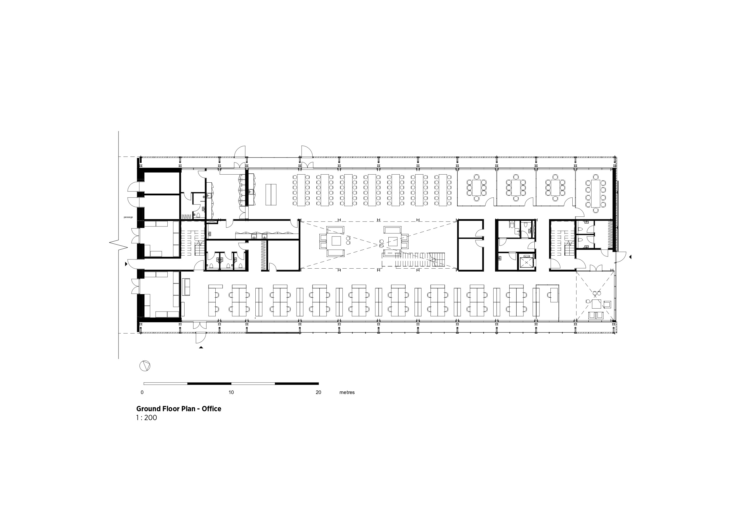
C.F. Møller handled the transformation of Montagehallen (the Assembly Hall), where the original industrial expression has been preserved, while filling the interior with modern commercial premises and homes, and also an event and community building.
The Assembly Hall is a listed building, and in connection with the conversion, C.F. Møller also contributed an analysis of the conservation value of the hall.
This value relates, among other things, to the hall's 200-metre long building volume, the façade’s red-lead steel grating structure, infilled with panels of red brick, and the characteristic gable motif, denoted by the hall's curved roof and prism-shaped skylights.
In order to preserve the hall’s unique patina, the new commercial premises and the event and community building, located at opposite ends of the building, are insulated from the inside by a climate screen of glass.
At each end of the hall a new interior volume has been inserted, supported by an industrial steel structure in line with the building's original expression.
In the middle section of the hall, where the residential units are located, a new set-back façade has been built, ensuring good daylight conditions all the way through the apartments.
With the help of a steel structure mounted on the new façade, the cadence and the long, rhythmic flow of the original façade are continued.
The steel structure is also used to mount the balconies.
Each residential unit has a balcony or ground-floor terrace, and a living room with a large west-facing glass section that spans the width of the entire room.







































