Extension Of The Professional Hotel School Savoy
BUDGET
$5m - 10m
AREA
25,000 Sqft - 100,000 Sqft
YEAR
2015
LOCATION
Merano, Italy
TYPE
Educational › High School
The design for an extension building for the Professional Hotel School in Meran was the winning entry in an open EU-wide planning competition.
Also known as the “Savoy“, the school is situated in an historically significant urban context characterized by the main school building, which is a protected monument, many art nouveau mansions with typical mansard roofs, pleasant green parks, and the covered promenade along the Passer river.
The school’s old building, erected in 1895, was originally a guesthouse that was converted into a hotel in 1900.
It later passed into state ownership and became the seat of the Hotel and Catering School.
The architects’ brief required an extension adjacent to the intricate old building, sharing the same, relatively small site.
The only visible link between the two is a light, transparent bridge on the second floor.
The sloping façades offer a modern interpretation of the surrounding mansions’ mansard roofs and relieve the block structure dictated by the urban context.
The building seems to subtly alter its form as one walks around it, an impression created by the sloping façades and the changing angles of light.
Its tapering shape makes it seem smaller than it really is while allowing plenty of daylight to penetrate the interior and visually widens the rather narrow spaces between the new structure and the adjacent buildings.
The new building’s angled façades also mean that the prominent front of the historic Savoy building remains well visible from all sides.
Around the lower part of the new building, the façades lean slightly outwards, lending the entrance to the underground car park a discreet air while at the same time opening up a generous space around the main entrance to the building.
The site will be car-free; the courtyard that currently serves as parking space will be converted into a park in order to enhance the urban ensemble.
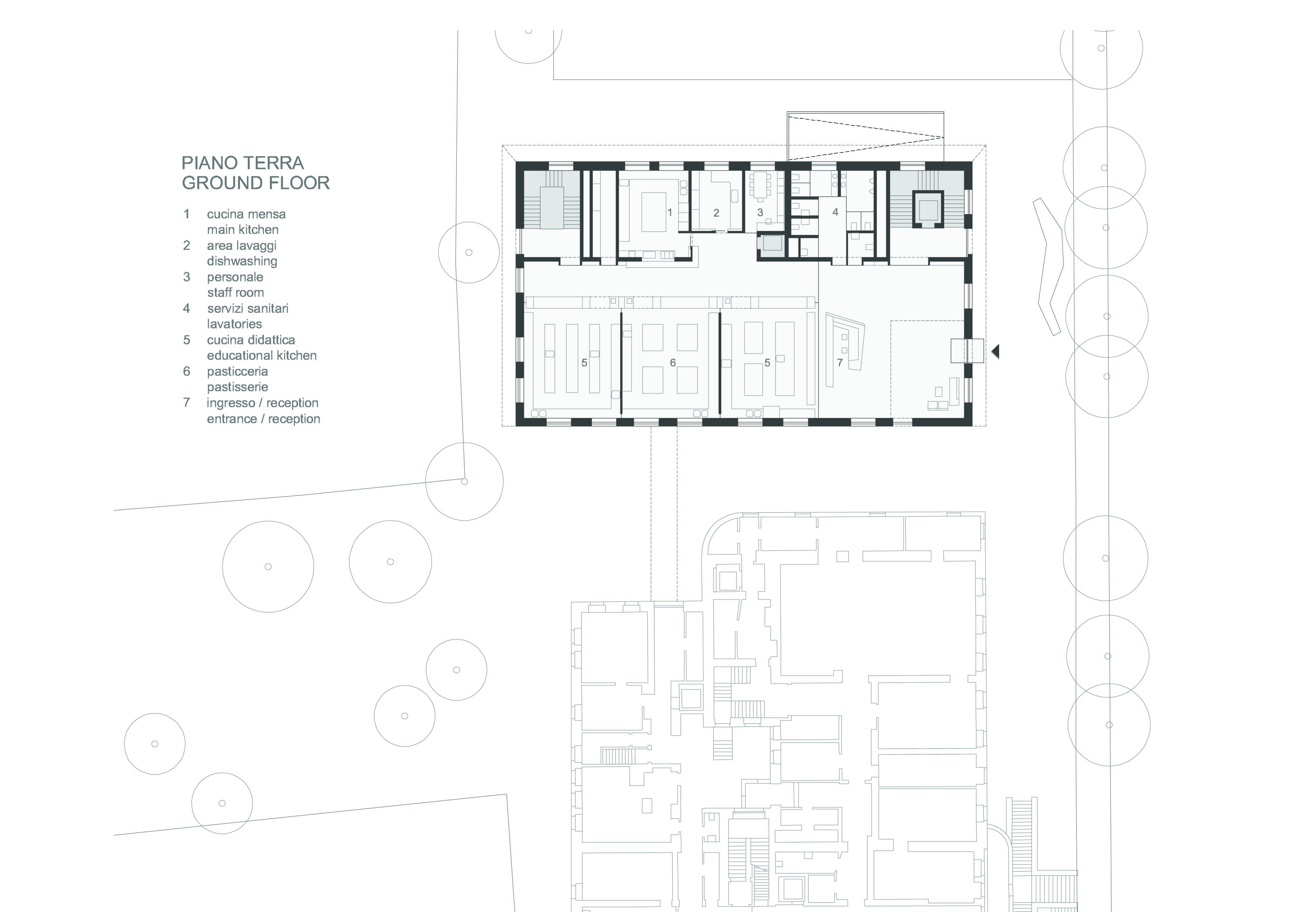
The building’s shell consists of a monolithic façade of cast-in-place concrete with a granulated finish.The urban character of the building is also reflected in the open, transparent, and fluent spatial sequences of its interior.
Light wells, galleries, and atriums create visual links between the individual floors with classrooms, training kitchens, and dining rooms.
The design and material used for the roof show that it was interpreted as a fifth façade.

















