
Casa Club Bosque Altozano
LOCATION
Morelia, Mexico
TYPE
Government + Health
The site is located in the Golf course of Bosque Altozano in Morelia, Mich, Mexico (19°42’10” N 101°11’32” O).
It faces to the south and east the mountain valley of Montaña Monarca (rich in a variety of pine and oak trees).
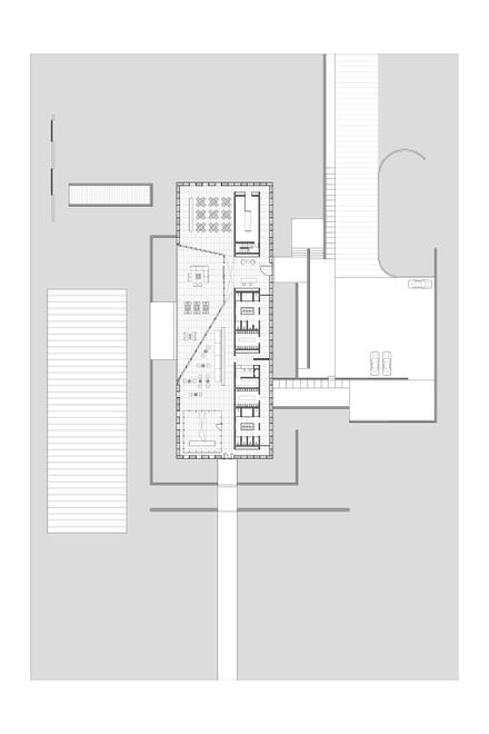
Temperature reaches a 28° C in summer and 6° C in winter Restaurant, kitchen, open terrace, Living space, Golf store, Bath and Dressing The building resides effortlessly on a soft slope with privileged views to the valley of Montaña Monarca, in Morelia, Mexico.
The building has been conceived as a homogenous stone mass, hollowing out a huge opening with an inviting forced perspective effect caused by the asymmetric glassed walls that frames the natural panorama (meant to evoke renaissance perspective drawings).
The amber atmosphere created through the filtering of the natural light through the stained glass, blends with the colored space, generating a chromatic continuity that during the course of the day moves imperceptibly through an endless scale of oranges, red and yellows.
Light also enters through two wooden skylights located in the middle of the room, helping to balance the colored light that comes from the window.
A few rich, tactile materials were used in combination with the light to create the environment.
Lounge area, dining space and an open terrace are the interior program.
This effect is granted by local stone used on the gavion walls and floors apart from the timber on the roof and other wooden objects.





















